愛知県名古屋市中区錦3丁目(栄駅)の貸店舗:物件詳細
交通 所在地 |
駅徒歩 |
賃料 管理費等 |
敷金/保証金 礼金 |
使用部分面積 坪数/坪単価 |
物件種目 築年月 |
|
名古屋市東山線/栄
愛知県名古屋市中区錦3丁目
|
8分
|
28.71万円
55,825円
|
なし / 8ヶ月
なし
|
47.90m²
14.48坪/1.9815万円
|
貸店舗
1987年12月(築38年3ヶ月)
|
|
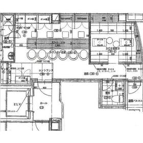
間取図
|
外観
|
その他の画像
|
| 交通 | 名古屋市東山線 栄駅 徒歩8分 |
|---|
| その他の交通 | 名古屋市名城線 久屋大通駅 徒歩8分 名古屋市桜通線 丸の内駅 徒歩9分 |
| 所在地 |
愛知県名古屋市中区錦3丁目
|
| 物件種目 |
貸店舗 |
| 賃料 |
28.71万円 |
管理費等 |
55,825円 |
| 敷金 / 保証金 |
なし / 8ヶ月 |
礼金 |
なし |
| 敷引 |
- |
坪単価 |
1.9815万円 |
| 保証金償却 |
解約時100% |
権利金 |
- |
| 造作譲渡 |
- |
その他一時金 |
なし |
| 維持費等 |
- |
保険等 |
- |
| 使用部分面積 |
47.90m² |
坪数 |
14.48坪 |
| 築年月 |
1987年12月(築38年3ヶ月)
|
階建 / 階 |
地上7階地下1階建 / 5階 |
| 駐車場 |
無 |
バイク置き場 |
無 |
| 駐輪場 |
無 |
土地面積 |
- |
| 接道状況 |
-
|
用途地域 |
- |
| 間取り |
- |
建物構造 |
鉄骨造 |
| アピールポイント |
名古屋市中区錦3丁目、栄駅より徒歩8分の距離にある店舗物件のご提案です。この物件は、活気あふれる繁華街に位置しており、24時間利用可能で、深夜営業も視野に入れた事業展開に適した環境です。47.9㎡の広さを持つ地上5階の空間は、多様な店舗業種に対応できます。また、居抜き物件であるため、初期の設備投資を抑え、効率的な開業が期待できます。エアコンやエレベーター、防犯カメラといった、店舗運営を支える基本的な設備も設置済みです。築年月は1987年12月の鉄骨造りですが、その立地の良さと既存設備の活用で、名古屋の中心地でのビジネスチャンスを掴むことができるでしょう。新たな事業の舞台を探している方にとって、魅力的な選択肢の一つです。 |
| 建物名・部屋番号 |
錦シルバービル 5FA |
| リフォーム履歴 |
- |
| リノベーション履歴 |
- |
| 特記事項 |
24時間利用可、土曜日利用可、土日・祝日利用可、飲食店可、角部屋、24時間セキュリティー、IT重説対応物件 |
| 備考 |
賃貸保証等:利用可(初回契約時:100%、更新時:10%、)
管理形態/管理員の勤務形態:-/-
IT重説対応物件
|
| エネルギー消費性能 |
- |
| 断熱性能 |
- |
| 目安光熱費 |
- |
| バス・トイレ |
トイレ |
| キッチン |
- |
| 設備・サービス |
防犯カメラ、都市ガス、動力あり、エアコン、冷房、インターネット対応 |
| その他 |
エレベーター |
| 契約期間 |
2年 |
条件等 |
- |
| 引渡可能時期 |
相談 |
現況 |
使用中 |
| 仲介手数料 |
1.1ヶ月 |
|
|
| 更新料 |
- |
物件番号 |
1147992013 |
| 情報公開日 |
2025年8月13日 |
次回更新予定日 |
2026年2月10日 |
| ケータイ用バーコード |
- スマートフォンでこの物件を見る
- スマートフォンからもこの物件をご覧になれます。
|
※「-」と表示されている項目については、情報提供会社にご確認ください。
| 周辺施設 |
ドン・キホーテ 栄本店 |
| 距離 |
400m |
写真を見る |
| 周辺施設 |
ローソン 錦袋町通店 |
| 距離 |
60m |
写真を見る |
| 周辺施設 |
ファミリーマート 錦三丁目店 |
| 距離 |
156m |
写真を見る |
ここから簡単にお問い合わせをすることができます。
(SSLでの暗号化での送信を希望されるお客さまは
こちら
よりお問い合わせください)
お問い合わせを行う前に
「個人情報の取り扱いについて」を必ずお読みください。
「個人情報の取り扱いについて」に同意いただいた場合は「上記にご同意の上 確認画面へ進む」のボタンをクリックしてください。
個人情報の取り扱いについて
皆さまが送付された個人情報はアットホーム(株)のサーバを経由し、お問い合わせ先の不動産会社にメールまたはFAXにて転送されるためアットホーム(株)にも保管されます。アットホーム(株)で保管された個人情報の取り扱いについては、【こちら】をご覧ください。
また、本画面でご記入いただいた個人情報は、お問い合わせ先の不動産会社でも保管します。 お問い合わせ先の不動産会社が保管する個人情報の取り扱いについては、不動産会社に直接お問い合わせください。
愛知県知事免許(2)第24206号 |
|---|
- 交通:
- 名古屋市桜通線/久屋大通駅 徒歩2分
- 愛知県名古屋市東区東桜1丁目3-22 ヴィアーレアルベルゴ901
- TEL:
- 052-501-8228
- FAX:
- 052-501-8229
- 所属団体:
- (公社)全日本不動産協会会員東海不動産公正取引協議会加盟
取引態様:仲介  - 40408872
|
- スマートフォンで
この不動産会社を見る

|
- 提携サイト等より掲載されている物件情報につきましては、不動産会社詳細情報にリンクされていないものがあります。
- 物件に関するお問合せは、物件詳細ページの「情報提供会社」に表示されている不動産会社へ直接お願いいたします。
- 間取図は、現況を優先させていただきます。
- 映像は物件の一部を撮影したものです。物件の契約にあたっての最終判断はご自身の判断に基づいて行ってください。
- 仲介手数料について

アットホームは物件情報の適正化に努めております。
内容に誤りがある場合にはこちらへご連絡ください。