愛知県名古屋市中区丸の内2丁目(丸の内駅)の貸店舗:物件詳細
交通 所在地 |
駅徒歩 |
賃料 管理費等 |
敷金/保証金 礼金 |
使用部分面積 坪数/坪単価 |
物件種目 築年月 |
名古屋市鶴舞線/丸の内
愛知県名古屋市中区丸の内2丁目
|
2分
|
25万円
44,000円
|
なし / 1ヶ月
1ヶ月
|
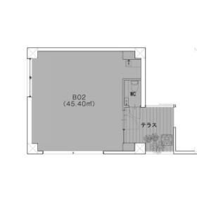
45.40m²
13.73坪/1.8204万円
|
貸店舗・事務所
2025年12月(新築)
|
間取図
|
|
<
その他の画像
>
|
交通 | 名古屋市鶴舞線 丸の内駅 徒歩2分 |
---|
その他の交通 | 名古屋市東山線 伏見駅 徒歩10分 名古屋市名城線 久屋大通駅 徒歩11分 |
所在地 |
愛知県名古屋市中区丸の内2丁目
|
物件種目 |
貸店舗・事務所 |
賃料 |
25万円 |
管理費等 |
44,000円 |
敷金 / 保証金 |
なし / 1ヶ月 |
礼金 |
1ヶ月 |
敷引 |
- |
坪単価 |
1.8204万円 |
保証金償却 |
解約時100% |
権利金 |
- |
造作譲渡 |
- |
その他一時金 |
なし |
維持費等 |
- |
保険等 |
- |
使用部分面積 |
45.40m² |
坪数 |
13.73坪 |
築年月 |
2025年12月(新築)
|
階建 / 階 |
5階建 / 2階 |
駐車場 |
無 |
バイク置き場 |
無 |
駐輪場 |
無 |
土地面積 |
- |
接道状況 |
-
|
用途地域 |
- |
間取り |
- |
建物構造 |
RC |
アピールポイント |
名古屋市営地下鉄鶴舞線丸の内駅から徒歩2分の好立地に、2025年12月竣工の新築店舗事務所が登場します。名古屋市中区丸の内というビジネスの中心地は、交通の便に優れ、多方面からのアクセスが容易。新たな事業のスタート地点として、これほど適した場所はそう多くありません。様々なビジネススタイルに対応する柔軟性を持ちます。RC造の建物は堅牢で、長期にわたる使用にも安心感を提供。最新の設備が整い、入居されたその日からストレスなく業務を開始できるでしょう。エレベーターの設置は、荷物の搬入出や、お客様や関係者のスムーズな移動を支え、日々の事業活動をより円滑に進めます。周辺は活気ある商業地域とオフィス街が融合し、ランチや打ち合わせ場所にも困りません。新しい環境で心機一転、事業の拡大や新規立ち上げをお考えの経営者の皆様に、ぜひご検討いただきたい物件です。2025年12月に完成するこのモダンな施設は、貴社の企業イメージを向上させ、取引先からの信頼にも繋がることでしょう。名古屋の中心で、未来を築くための新たな一歩を、この場所から踏み出しませんか。 |
建物名・部屋番号 |
HARVEY TERRACE丸の内 B02 |
リフォーム履歴 |
- |
リノベーション履歴 |
- |
特記事項 |
24時間セキュリティー |
備考 |
賃貸保証等:加入要(初回契約時:100%、更新時:10%、)
管理形態/管理員の勤務形態:-/-
|
エネルギー消費性能 |
- |
断熱性能 |
- |
目安光熱費 |
- |
バス・トイレ |
- |
キッチン |
- |
設備・サービス |
都市ガス |
その他 |
エレベーター |
契約期間 |
2年 |
条件等 |
- |
引渡可能時期 |
指定有り2025年12月19日 |
現況 |
未完成 |
仲介手数料 |
1.1ヶ月 |
|
|
更新料 |
- |
物件番号 |
1148078813 |
情報公開日 |
2025年9月23日 |
次回更新予定日 |
2025年10月20日 |
ケータイ用バーコード |
- スマートフォンでこの物件を見る
- スマートフォンからもこの物件をご覧になれます。
|
※「-」と表示されている項目については、情報提供会社にご確認ください。
周辺施設 |
ローソン 丸の内二丁目店 |
距離 |
139m |
写真を見る |
周辺施設 |
ファミリーマート 丸の内二丁目店 |
距離 |
302m |
写真を見る |
周辺施設 |
ローソン 丸の内伏見通店 |
距離 |
274m |
写真を見る |
ここから簡単にお問い合わせをすることができます。
(SSLでの暗号化での送信を希望されるお客さまは
こちら
よりお問い合わせください)
お問い合わせを行う前に
「個人情報の取り扱いについて」を必ずお読みください。
「個人情報の取り扱いについて」に同意いただいた場合は「上記にご同意の上 確認画面へ進む」のボタンをクリックしてください。
個人情報の取り扱いについて
皆さまが送付された個人情報はアットホーム(株)のサーバを経由し、お問い合わせ先の不動産会社にメールまたはFAXにて転送されるためアットホーム(株)にも保管されます。アットホーム(株)で保管された個人情報の取り扱いについては、【こちら】をご覧ください。
また、本画面でご記入いただいた個人情報は、お問い合わせ先の不動産会社でも保管します。 お問い合わせ先の不動産会社が保管する個人情報の取り扱いについては、不動産会社に直接お問い合わせください。
愛知県知事免許(2)第24206号 |
---|
- 交通:
- 名古屋市桜通線/久屋大通駅 徒歩2分
- 愛知県名古屋市東区東桜1丁目3-22 ヴィアーレアルベルゴ901
- TEL:
- 052-501-8228
- FAX:
- 052-501-8229
- 所属団体:
- (公社)全日本不動産協会会員東海不動産公正取引協議会加盟
取引態様:仲介  - 40408872
|
- スマートフォンで
この不動産会社を見る

|
- 提携サイト等より掲載されている物件情報につきましては、不動産会社詳細情報にリンクされていないものがあります。
- 物件に関するお問合せは、物件詳細ページの「情報提供会社」に表示されている不動産会社へ直接お願いいたします。
- 間取図は、現況を優先させていただきます。
- 映像は物件の一部を撮影したものです。物件の契約にあたっての最終判断はご自身の判断に基づいて行ってください。
- 仲介手数料について

アットホームは物件情報の適正化に努めております。
内容に誤りがある場合にはこちらへご連絡ください。