埼玉県さいたま市浦和区高砂2丁目(浦和駅)の貸店舗:物件詳細
交通 所在地 |
駅徒歩 |
賃料 管理費等 |
敷金/保証金 礼金 |
使用部分面積 坪数/坪単価 |
物件種目 築年月 |
|
JR京浜東北線/浦和
埼玉県さいたま市浦和区高砂2丁目
|
5分
|
105.6528万円
なし
|
6ヶ月 / なし
1ヶ月
|
198.47m²
60.03坪/1.7598万円
|
貸店舗・事務所
1998年9月(築27年7ヶ月)
|
|
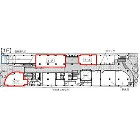
間取図
|
外観
|
その他の画像
|
| 交通 | JR京浜東北線 浦和駅 徒歩5分 |
|---|
| その他の交通 | JR埼京線 武蔵浦和駅 徒歩25分 JR武蔵野線 南浦和駅 徒歩24分 |
| 所在地 |
埼玉県さいたま市浦和区高砂2丁目
|
| 物件種目 |
貸店舗・事務所 |
| 賃料 |
105.6528万円 |
管理費等 |
なし |
| 敷金 / 保証金 |
6ヶ月 / なし |
礼金 |
1ヶ月 |
| 敷引 |
- |
坪単価 |
1.7598万円 |
| 保証金償却 |
- |
権利金 |
- |
| 造作譲渡 |
- |
その他一時金 |
なし |
| 維持費等 |
- |
保険等 |
- |
| クレジットカード決済 |
初期費用可 |
| 使用部分面積 |
198.47m² |
坪数 |
60.03坪 |
| 築年月 |
1998年9月(築27年7ヶ月)
|
階建 / 階 |
地上12階地下1階建 / 1階 |
| 駐車場 |
有 44,000円/月(空き1台) |
バイク置き場 |
無 |
| 駐輪場 |
無 |
土地面積 |
- |
| 接道状況 |
-
|
用途地域 |
商業地域 |
| 間取り |
- |
建物構造 |
鉄筋ブロック |
| アピールポイント |
浦和駅徒歩5分。ホテルの1階になり、他には飲食店やスタジオ、ジム等入居中。業種業態お問い合わせください。 |
| 建物名・部屋番号 |
ホテルグローバルビュー浦和 1-2 |
| リフォーム履歴 |
- |
| リノベーション履歴 |
- |
| 特記事項 |
- |
| 備考 |
管理形態/管理員の勤務形態:-/-
都市計画:市街化区域
|
| エネルギー消費性能 |
- |
| 断熱性能 |
- |
| 目安光熱費 |
- |
| バス・トイレ |
- |
| キッチン |
- |
| 設備・サービス |
- |
| その他 |
- |
| 契約期間 |
3年 |
条件等 |
定期借家 |
| 引渡可能時期 |
即時 |
現況 |
空 |
| 仲介手数料 |
1.1ヶ月 |
|
|
| 更新料 |
新賃料 1ヶ月 |
物件番号 |
1150480908 |
| 情報公開日 |
2026年3月11日 |
次回更新予定日 |
2026年3月25日 |
| ケータイ用バーコード |
- スマートフォンでこの物件を見る
- スマートフォンからもこの物件をご覧になれます。
|
※「-」と表示されている項目については、情報提供会社にご確認ください。
ここから簡単にお問い合わせをすることができます。
(SSLでの暗号化での送信を希望されるお客さまは
こちら
よりお問い合わせください)
お問い合わせを行う前に
「個人情報の取り扱いについて」を必ずお読みください。
「個人情報の取り扱いについて」に同意いただいた場合は「上記にご同意の上 確認画面へ進む」のボタンをクリックしてください。
個人情報の取り扱いについて
皆さまが送付された個人情報はアットホーム(株)のサーバを経由し、お問い合わせ先の不動産会社にメールまたはFAXにて転送されるためアットホーム(株)にも保管されます。アットホーム(株)で保管された個人情報の取り扱いについては、【こちら】をご覧ください。
また、本画面でご記入いただいた個人情報は、お問い合わせ先の不動産会社でも保管します。 お問い合わせ先の不動産会社が保管する個人情報の取り扱いについては、不動産会社に直接お問い合わせください。
国土交通大臣免許(5)第6225号 |
|---|
- 交通:
- 都営新宿線/岩本町駅 徒歩5分
- 東京都千代田区岩本町2丁目6-10 第一中野ビル8F
- TEL:
- 03-5687-1915
- FAX:
- 03-5687-1914
取引態様:仲介  - 00101342
|
- スマートフォンで
この不動産会社を見る

|
- 提携サイト等より掲載されている物件情報につきましては、不動産会社詳細情報にリンクされていないものがあります。
- 物件に関するお問合せは、物件詳細ページの「情報提供会社」に表示されている不動産会社へ直接お願いいたします。
- 間取図は、現況を優先させていただきます。
- 映像は物件の一部を撮影したものです。物件の契約にあたっての最終判断はご自身の判断に基づいて行ってください。
- 仲介手数料について

アットホームは物件情報の適正化に努めております。
内容に誤りがある場合にはこちらへご連絡ください。