不動産 賃貸 マンション等の住宅情報:埼玉住まい情報


大阪府堺市中区学園町(白鷺駅)の貸店舗:物件詳細

  • 物件詳細
  • 情報の見方
  • 印刷用画面
交通
所在地
駅徒歩 賃料
管理費等
敷金/保証金
礼金
使用部分面積
坪数/坪単価
物件種目
築年月

南海高野線/白鷺

大阪府堺市中区学園町

11分

35.2万円

33,000円

128万円 / なし

70.4万円

212.75m²

64.35坪/0.547万円

貸店舗・事務所

1990年8月(築35年7ヶ月)

おすすめコメント

64坪の大規模リニューアル♪ 教育関連・事務所・診療所・医療系に最適です♪飲食もOK♪ EV・トイレ・エアコンなど充実◎ ポータルサイトには載せきれていない隠れ物件、HPにたくさん載せていますのでぜひ(*'ω'*)

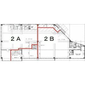
間取図

間取図

212.75㎡

外観

外観

外観です

その他の画像
  • 室内
  • 室内
  • 室内
  • 室内
  • 室内
  • 地形図等
  • 外観
  • 外観
    • とりあえず保存
    • お問い合わせ
    交通

    南海高野線 白鷺駅 徒歩11分

    その他の交通

    南海高野線 初芝駅 徒歩17分

    地下鉄御堂筋線 なかもず駅 徒歩19分

    所在地 大阪府堺市中区学園町
    物件種目 貸店舗・事務所
    賃料 35.2万円 管理費等 33,000円
    敷金 / 保証金 128万円 / なし 礼金 70.4万円
    敷引 坪単価 0.547万円
    保証金償却 権利金
    造作譲渡 造作譲渡無償 その他一時金 なし
    維持費等 保険等
    使用部分面積 212.75m² 坪数 64.35坪
    築年月 1990年8月(築35年7ヶ月) 階建 / 階 4階建 / 2階
    駐車場 有 11,000円/月 バイク置き場
    駐輪場 土地面積
    接道状況 用途地域
    間取り 建物構造 RC
    建物名・部屋番号 D’s学園町ビル
    リフォーム履歴
    リノベーション履歴
    特記事項 居抜き、飲食店可、免震構造、制震構造、耐震構造(新耐震基準)
    備考
    管理形態/管理員の勤務形態:-/-
    R4.9月頃大規模リニューアル完成(*^_^*)
    教育関連・事務所・診療所・医療系に最適です♪飲食もOK♪
    エレベーター・専用トイレ・エアコンなど充実の設備◎内覧ご案内できます♪
    なんでもご業種ご相談ください◎
    ポータルサイトには載せきれていない隠れ物件、HPにたくさん載せていますのでぜひ(*'ω'*)
    エネルギー消費性能
    断熱性能
    目安光熱費
    バス・トイレ バス・トイレ別、トイレ
    キッチン
    設備・サービス 給湯、ビルトインエアコン、エアコン、暖房、冷房
    その他 エレベーター
    契約期間 2年 条件等
    引渡可能時期 相談 現況
    更新料 物件番号 1170128307
    情報公開日 2026年1月24日 次回更新予定日 2026年2月7日
    ケータイ用バーコード

    QRコード

    スマートフォンでこの物件を見る
    スマートフォンからもこの物件をご覧になれます。
    ※「-」と表示されている項目については、情報提供会社にご確認ください。

    クイックお問い合わせ

    ここから簡単にお問い合わせをすることができます。
    (SSLでの暗号化での送信を希望されるお客さまは こちら よりお問い合わせください)

    お問い合わせ内容(必須)
    物件のお問い合わせ理由(必須)
    お名前・ご担当者様名(必須) 姓  名 
    メールアドレス(必須)
    ※携帯電話のメールアドレスをご入力される方はこちらをご確認ください
    電話番号(必須)
    - -

    ※入力いただいた電話番号へSMSまたは音声でパスワードをご連絡します。

    携帯電話の番号をご入力の方へ

    携帯電話の番号をご入力の方へ
    確認画面にて送信ボタンをクリックするとSMSが携帯電話に届きます。
    そのSMSに記載のパスワード(認証番号)を入力し、お問い合わせを完了してください。
    尚、SMSの送信者番号は 0005 202 760 となります。
    これはアットホームの固定番号です。

    備考欄 希望条件、物件案内希望日、質問などがございましたらご記入ください。
    お問い合わせを行う前に「個人情報の取り扱いについて」を必ずお読みください。
    「個人情報の取り扱いについて」に同意いただいた場合は「上記にご同意の上 確認画面へ進む」のボタンをクリックしてください。

    個人情報の取り扱いについて

    皆さまが送付された個人情報はアットホーム(株)のサーバを経由し、お問い合わせ先の不動産会社にメールまたはFAXにて転送されるためアットホーム(株)にも保管されます。アットホーム(株)で保管された個人情報の取り扱いについては、【こちら】をご覧ください。
    また、本画面でご記入いただいた個人情報は、お問い合わせ先の不動産会社でも保管します。 お問い合わせ先の不動産会社が保管する個人情報の取り扱いについては、不動産会社に直接お問い合わせください。

    情報提供会社

    情報提供会社

    (株)ムカイ・エンタープライズ

    国土交通大臣免許(1)第10897号

    交通:
    JR東海道本線/山科駅 徒歩15分
    京都府京都市山科区西野岸ノ下町8-9 
    TEL:
    075-585-6675
    FAX:
    075-585-6676
    所属団体:
    (公社)京都府宅地建物取引業協会会員
    (公社)近畿地区不動産公正取引協議会加盟

    取引態様:仲介

    • 会社情報
    • 50110173
    スマートフォンで
    この不動産会社を見る
    QRコード
    • とりあえず保存
    • お問い合わせ
    • 提携サイト等より掲載されている物件情報につきましては、不動産会社詳細情報にリンクされていないものがあります。
    • 物件に関するお問合せは、物件詳細ページの「情報提供会社」に表示されている不動産会社へ直接お願いいたします。
    • 間取図は、現況を優先させていただきます。
    • 映像は物件の一部を撮影したものです。物件の契約にあたっての最終判断はご自身の判断に基づいて行ってください。
    • 仲介手数料について仲介手数料

    アットホームは物件情報の適正化に努めております。 内容に誤りがある場合にはこちらへご連絡ください。

    【埼玉住まい情報】では、日本全国の物件から賃貸マンションや賃貸アパート・賃貸一戸建て等の賃貸住宅情報、新築マンション・分譲マンションや中古マンション等の売買マンション情報、新築一戸建てや中古一戸建てなどの戸建住宅、 土地など、総合的な不動産住宅情報検索サービスを提供致します。
    【埼玉住まい情報】から、選りすぐりの不動産物件を探してみましょう。

    【免責事項】
    このコーナーの運営はアットホーム株式会社(https://www.athome.co.jp/)が行っています。
    このコーナーに掲載している物件情報は、「アットホーム不動産情報ネットワーク」に加盟する不動産会社等(情報提供元)から提供されています。信頼性の高い情報提供が行えるよう、最大限の努力をしておりますが、その内容を保証するものではありません。 利用者のみなさまと各情報提供元との取引に起因する損害および情報が掲載されたことに起因する損害等については、株式会社イーシティ埼玉、およびアットホームは一切責任を負いません。
    各物件情報の内容や画像等はすべて現況を優先させていただきます。
    お取引等(お取引の準備、資金調達等を含みます)の際には、内容や契約条件等について、各情報提供元より十分な説明を受け、ご自身でご確認の上、判断してください。
    このコーナーへの物件情報のご掲載、その他不動産業務ソリューション等についての不動産会社様のお問合せはこちらからお願いいたします。

    物件画像: