大阪府大阪市生野区小路東5丁目(小路駅)の貸店舗:物件詳細
交通 所在地 |
駅徒歩 |
賃料 管理費等 |
敷金/保証金 礼金 |
使用部分面積 坪数/坪単価 |
物件種目 築年月 |
|
地下鉄千日前線/小路
大阪府大阪市生野区小路東5丁目
|
10分
|
40.7万円
なし
|
1ヶ月 / なし
2.2ヶ月
|
99.36m²
30.05坪/1.3542万円
|
貸店舗・事務所(一括)
2025年10月(新築)
|
|
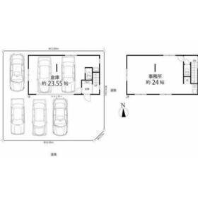
間取図
小路東5丁目(新築貸事務所) 間取り
|
外観
小路東5丁目(新築貸事務所) 外観
|
その他の画像
|
| 交通 | 地下鉄千日前線 小路駅 徒歩10分 |
|---|
| その他の交通 | 地下鉄千日前線 北巽駅 徒歩13分 近鉄大阪線 布施駅 徒歩13分 |
| 所在地 |
大阪府大阪市生野区小路東5丁目
|
| 物件種目 |
貸店舗・事務所(一括) |
| 賃料 |
40.7万円 |
管理費等 |
なし |
| 敷金 / 保証金 |
1ヶ月 / なし |
礼金 |
2.2ヶ月 |
| 敷引 |
- |
坪単価 |
1.3542万円 |
| 保証金償却 |
- |
権利金 |
- |
| 造作譲渡 |
- |
その他一時金 |
なし |
| 維持費等 |
- |
保険等 |
- |
| クレジットカード決済 |
初期費用可 |
| 使用部分面積 |
99.36m² |
坪数 |
30.05坪 |
| 築年月 |
2025年10月(新築)
|
階建 / 階 |
2階建 / 1階~2階部分 |
| 駐車場 |
有 無料(空き3台) |
バイク置き場 |
有 |
| 駐輪場 |
有 |
土地面積 |
- |
| 接道状況 |
-
|
用途地域 |
- |
| 間取り |
- |
建物構造 |
木造 |
| アピールポイント |
ご利用できる駅は3駅以上あり、アクセスの良い立地です。駐車場に空きがあるので車を所有している方も安心です。防犯面でも安心していただけるバイク置き場がございます。初期費用はカードで決済いただけます。パーキングエリア3台空所有です。24時間利用する事が可能なので便利です。 |
| 建物名・部屋番号 |
小路東5丁目(新築貸事務所) |
| リフォーム履歴 |
- |
| リノベーション履歴 |
- |
| 特記事項 |
土曜日利用可、最上階 |
| 備考 |
賃貸保証等:加入要(都度、お問い合わせください。)
管理形態/管理員の勤務形態:-/-
当物件ご案内の際、現地でのお待ち合わせ等も可能です。
お問い合わせ頂いた物件は勿論のこと、インターネットに掲載していないオススメ物件多数ございます。
当店では、PayPayアプリや全物件ポイント・マイルが貯まるクレジットカード決済が可能です。 また、分割支払いも可能です。お気軽にお申し付け下さいませ。
アフログループは大阪市内を中心に9店舗を展開している地域密着の不動産会社です。
弊社ならではの、インターネットに掲載していないおすすめの物件も多数ございます。
大阪府内全域のお部屋探しは、当店にお任せください。
不動産経験の豊富な社員が、責任を持って対応させていただきます。
また、賃貸・売買双方を専門に取り扱っており、幅広い視野でお客様にご提案させて頂きます。
それぞれのメリット・デメリットをご説明させて頂き最良のご提案をさせて頂きます。
お客さまの想像される1歩先を行き、常に感動を与え続けていけるようなサービスに取り組んでおります。
そして、弊社の経営理念でもあります、『アフターフォロー』には特に力を入れております、ご契約後もしっかりとサポートさせて頂きます
|
| エネルギー消費性能 |
- |
| 断熱性能 |
- |
| 目安光熱費 |
- |
| バス・トイレ |
トイレ |
| キッチン |
- |
| 設備・サービス |
給湯 |
| その他 |
- |
| 契約期間 |
2年 |
条件等 |
- |
| 引渡可能時期 |
即時 |
現況 |
空 |
| 更新料 |
- |
物件番号 |
1170446207 |
| 情報公開日 |
2025年7月19日 |
次回更新予定日 |
2025年12月18日 |
| ケータイ用バーコード |
- スマートフォンでこの物件を見る
- スマートフォンからもこの物件をご覧になれます。
|
※「-」と表示されている項目については、情報提供会社にご確認ください。
| 周辺施設 |
新生野中学校 |
| 距離 |
877m |
写真を見る |
| 周辺施設 |
丸亀製麺 生野巽店 |
| 距離 |
942m |
写真を見る |
| 周辺施設 |
ジャンボ酒場 小路駅前店 |
| 距離 |
775m |
写真を見る |
| 周辺施設 |
三ノ瀬公園軟式庭球場 |
| 距離 |
563m |
写真を見る |
| 周辺施設 |
近鉄百貨店 東大阪店 |
| 距離 |
1063m |
写真を見る |
| 周辺施設 |
食品館アプロ 生野小路店 |
| 距離 |
165m |
写真を見る |
ここから簡単にお問い合わせをすることができます。
(SSLでの暗号化での送信を希望されるお客さまは
こちら
よりお問い合わせください)
お問い合わせを行う前に
「個人情報の取り扱いについて」を必ずお読みください。
「個人情報の取り扱いについて」に同意いただいた場合は「上記にご同意の上 確認画面へ進む」のボタンをクリックしてください。
個人情報の取り扱いについて
皆さまが送付された個人情報はアットホーム(株)のサーバを経由し、お問い合わせ先の不動産会社にメールまたはFAXにて転送されるためアットホーム(株)にも保管されます。アットホーム(株)で保管された個人情報の取り扱いについては、【こちら】をご覧ください。
また、本画面でご記入いただいた個人情報は、お問い合わせ先の不動産会社でも保管します。 お問い合わせ先の不動産会社が保管する個人情報の取り扱いについては、不動産会社に直接お問い合わせください。
大阪府知事免許(3)第58557号 |
|---|
- 交通:
- 近鉄奈良線/大阪上本町駅 徒歩2分
- 大阪府大阪市天王寺区東高津町12-16 フクダ不動産上本町ビル1F
- TEL:
- 06-6765-6888
- FAX:
- 06-6765-6889
- 所属団体:
- (公社)全日本不動産協会会員(公社)近畿地区不動産公正取引協議会加盟
取引態様:仲介  - 50107948
|
- スマートフォンで
この不動産会社を見る

|
- 提携サイト等より掲載されている物件情報につきましては、不動産会社詳細情報にリンクされていないものがあります。
- 物件に関するお問合せは、物件詳細ページの「情報提供会社」に表示されている不動産会社へ直接お願いいたします。
- 間取図は、現況を優先させていただきます。
- 映像は物件の一部を撮影したものです。物件の契約にあたっての最終判断はご自身の判断に基づいて行ってください。
- 仲介手数料について

アットホームは物件情報の適正化に努めております。
内容に誤りがある場合にはこちらへご連絡ください。