東京都江東区亀戸6丁目(亀戸駅)の貸店舗:物件詳細
交通 所在地 |
駅徒歩 |
賃料 管理費等 |
敷金/保証金 礼金 |
使用部分面積 坪数/坪単価 |
物件種目 築年月 |
|
JR総武線/亀戸
東京都江東区亀戸6丁目
|
4分
|
28.5万円
なし
|
5ヶ月 / なし
1ヶ月
|
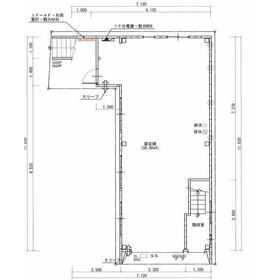
50.00m²
15.12坪/1.8844万円
|
貸店舗
1980年5月(築45年8ヶ月)
|
|
間取図
|
外観
|
<
その他の画像
>
|
| 交通 | JR総武線 亀戸駅 徒歩4分 |
|---|
| その他の交通 | 都営新宿線 大島駅 徒歩15分 東武亀戸線 亀戸駅 徒歩5分 |
| 所在地 |
東京都江東区亀戸6丁目
|
| 物件種目 |
貸店舗 |
| 賃料 |
28.5万円 |
管理費等 |
なし |
| 敷金 / 保証金 |
5ヶ月 / なし |
礼金 |
1ヶ月 |
| 敷引 |
- |
坪単価 |
1.8844万円 |
| 保証金償却 |
- |
権利金 |
- |
| 造作譲渡 |
- |
その他一時金 |
なし |
| 維持費等 |
- |
保険等 |
- |
| 使用部分面積 |
50.00m² |
坪数 |
15.12坪 |
| 築年月 |
1980年5月(築45年8ヶ月)
|
階建 / 階 |
4階建 / 1階 |
| 駐車場 |
無 |
バイク置き場 |
無 |
| 駐輪場 |
無 |
土地面積 |
- |
| 接道状況 |
-
|
用途地域 |
- |
| 間取り |
- |
建物構造 |
鉄骨造 |
| アピールポイント |
周辺に駅が2つあるので電車での移動が便利です。周辺には、徒歩4分で利用できる駅があります。賃料は28.5万円です。礼金1ヵ月分が初期費用に含まれます。 |
| 建物名・部屋番号 |
飯塚ビル 一階 |
| リフォーム履歴 |
- |
| リノベーション履歴 |
- |
| 特記事項 |
スケルトン、飲食店可、角部屋 |
| 備考 |
賃貸保証等:加入要(初回保証委託料100%、年間保証委託料10%程度 貸主指定会社)
管理形態/管理員の勤務形態:-/-
周辺には、徒歩4分で利用できる駅があります。2駅利用できる場所にあるので利便性が高いです。賃料は28.5万円です。初期費用として礼金は1ヶ月分かかります。
|
| エネルギー消費性能 |
- |
| 断熱性能 |
- |
| 目安光熱費 |
- |
| バス・トイレ |
トイレ |
| キッチン |
- |
| 設備・サービス |
シャッター雨戸 |
| その他 |
- |
| 契約期間 |
10年 |
条件等 |
定期借家 |
| 引渡可能時期 |
即時 |
現況 |
空 |
| 更新料 |
- |
物件番号 |
1170765007 |
| 情報公開日 |
2025年8月25日 |
次回更新予定日 |
2025年12月24日 |
| ケータイ用バーコード |
- スマートフォンでこの物件を見る
- スマートフォンからもこの物件をご覧になれます。
|
※「-」と表示されている項目については、情報提供会社にご確認ください。
| 周辺施設 |
TOMAS(トーマス) 錦糸町校 |
| 距離 |
1570m |
写真を見る |
| 周辺施設 |
すしざんまい錦糸町店 |
| 距離 |
1545m |
写真を見る |
| 周辺施設 |
中華料理 龍山 |
| 距離 |
1985m |
写真を見る |
| 周辺施設 |
白木屋 東大島駅前店 |
| 距離 |
1893m |
写真を見る |
| 周辺施設 |
ミスタードーナツ 東大島駅前ショップ |
| 距離 |
1896m |
写真を見る |
| 周辺施設 |
まいばすけっと 東大島駅前店 |
| 距離 |
1839m |
写真を見る |
ここから簡単にお問い合わせをすることができます。
(SSLでの暗号化での送信を希望されるお客さまは
こちら
よりお問い合わせください)
お問い合わせを行う前に
「個人情報の取り扱いについて」を必ずお読みください。
「個人情報の取り扱いについて」に同意いただいた場合は「上記にご同意の上 確認画面へ進む」のボタンをクリックしてください。
個人情報の取り扱いについて
皆さまが送付された個人情報はアットホーム(株)のサーバを経由し、お問い合わせ先の不動産会社にメールまたはFAXにて転送されるためアットホーム(株)にも保管されます。アットホーム(株)で保管された個人情報の取り扱いについては、【こちら】をご覧ください。
また、本画面でご記入いただいた個人情報は、お問い合わせ先の不動産会社でも保管します。 お問い合わせ先の不動産会社が保管する個人情報の取り扱いについては、不動産会社に直接お問い合わせください。
東京都知事免許(1)第109167号 |
|---|
- 交通:
- 都営新宿線/岩本町駅 徒歩2分
- 東京都千代田区岩本町3丁目4-1 サンネットビル
- TEL:
- 03-5823-5011
- FAX:
- 03-3861-0590
- 所属団体:
- (公社)東京都宅地建物取引業協会会員(公社)首都圏不動産公正取引協議会加盟
取引態様:仲介  - 00275811
|
- スマートフォンで
この不動産会社を見る

|
- 提携サイト等より掲載されている物件情報につきましては、不動産会社詳細情報にリンクされていないものがあります。
- 物件に関するお問合せは、物件詳細ページの「情報提供会社」に表示されている不動産会社へ直接お願いいたします。
- 間取図は、現況を優先させていただきます。
- 映像は物件の一部を撮影したものです。物件の契約にあたっての最終判断はご自身の判断に基づいて行ってください。
- 仲介手数料について

アットホームは物件情報の適正化に努めております。
内容に誤りがある場合にはこちらへご連絡ください。