東京都渋谷区神宮前3丁目(外苑前駅)の貸店舗:物件詳細
交通 所在地 |
駅徒歩 |
賃料 管理費等 |
敷金/保証金 礼金 |
使用部分面積 坪数/坪単価 |
物件種目 築年月 |
|
東京メトロ銀座線/外苑前
東京都渋谷区神宮前3丁目
|
8分
|
49.5万円
25,000円
|
2ヶ月 / なし
1ヶ月
|
78.67m²
23.79坪/2.0801万円
|
貸店舗・事務所
2020年9月(築5年2ヶ月)
|
|
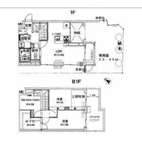
間取図
|
外観
|
その他の画像
|
| 交通 | 東京メトロ銀座線 外苑前駅 徒歩8分 |
|---|
| その他の交通 | 東京メトロ千代田線 表参道駅 徒歩10分 |
| 所在地 |
東京都渋谷区神宮前3丁目
|
| 物件種目 |
貸店舗・事務所 |
| 賃料 |
49.5万円 |
管理費等 |
25,000円 |
| 敷金 / 保証金 |
2ヶ月 / なし |
礼金 |
1ヶ月 |
| 敷引 |
- |
坪単価 |
2.0801万円 |
| 保証金償却 |
- |
権利金 |
- |
| 造作譲渡 |
- |
その他一時金 |
鍵交換費用:55,000円、24時間サポート:19,800円、事務手数料:22,000円、消臭消毒:22,000円 |
| 維持費等 |
- |
保険等 |
- |
| 使用部分面積 |
78.67m² |
坪数 |
23.79坪 |
| 築年月 |
2020年9月(築5年2ヶ月)
|
階建 / 階 |
4階建 / 1階 |
| 駐車場 |
- |
バイク置き場 |
- |
| 駐輪場 |
- |
土地面積 |
- |
| 接道状況 |
-
|
用途地域 |
- |
| 間取り |
- |
建物構造 |
RC |
| アピールポイント |
渋谷区神宮前3丁目に建つスタイリッシュなマンションの1階テナントのご紹介です!(^^)!2020年9月に竣工したばかりで内装も綺麗です。B1-1Fのメゾネットスタイル。2SLDKの間取りです。事務所、SOHOとしていかがでしょうか!店舗としてはエステサロン・スクール・クリニックは相談可能です♪是非一度ご覧ください!諸条件等もお気軽にご相談ください(^^) |
| 建物名・部屋番号 |
ミライエ表参道 102 |
| リフォーム履歴 |
- |
| リノベーション履歴 |
- |
| 特記事項 |
飲食店不可 |
| 備考 |
賃貸保証等:加入要(アーク賃貸保証 初回保証委託料:賃料等の100%)
管理形態/管理員の勤務形態:-/-
事務所・店舗の場合:①賃料5000円up ②敷金2ヶ月から4ヶ月の積み増しがあります☆メゾネットタイプ☆築浅物件☆光ファイバー
|
| エネルギー消費性能 |
- |
| 断熱性能 |
- |
| 目安光熱費 |
- |
| バス・トイレ |
バス・トイレ別、トイレ |
| キッチン |
- |
| 設備・サービス |
オートロック、都市ガス、エアコン |
| その他 |
エレベーター |
| 契約期間 |
2年 |
条件等 |
- |
| 引渡可能時期 |
相談 |
現況 |
居住中 |
| 更新料 |
新賃料 0.5ヶ月 |
物件番号 |
1170806407 |
| 情報公開日 |
2025年9月16日 |
次回更新予定日 |
2025年10月31日 |
| ケータイ用バーコード |
- スマートフォンでこの物件を見る
- スマートフォンからもこの物件をご覧になれます。
|
※「-」と表示されている項目については、情報提供会社にご確認ください。
ここから簡単にお問い合わせをすることができます。
(SSLでの暗号化での送信を希望されるお客さまは
こちら
よりお問い合わせください)
お問い合わせを行う前に
「個人情報の取り扱いについて」を必ずお読みください。
「個人情報の取り扱いについて」に同意いただいた場合は「上記にご同意の上 確認画面へ進む」のボタンをクリックしてください。
個人情報の取り扱いについて
皆さまが送付された個人情報はアットホーム(株)のサーバを経由し、お問い合わせ先の不動産会社にメールまたはFAXにて転送されるためアットホーム(株)にも保管されます。アットホーム(株)で保管された個人情報の取り扱いについては、【こちら】をご覧ください。
また、本画面でご記入いただいた個人情報は、お問い合わせ先の不動産会社でも保管します。 お問い合わせ先の不動産会社が保管する個人情報の取り扱いについては、不動産会社に直接お問い合わせください。
(株)Infinity東京都知事免許(2)第103918号 |
|---|
- 交通:
- 東京メトロ日比谷線/八丁堀駅 徒歩1分
- 東京都中央区八丁堀3丁目21-3 ライオンズマンション八丁堀第二2F
- TEL:
- 03-6222-8868
- FAX:
- 03-6222-8867
- 所属団体:
- (公社)東京都宅地建物取引業協会会員(公社)首都圏不動産公正取引協議会加盟
取引態様:仲介 |
- 提携サイト等より掲載されている物件情報につきましては、不動産会社詳細情報にリンクされていないものがあります。
- 物件に関するお問合せは、物件詳細ページの「情報提供会社」に表示されている不動産会社へ直接お願いいたします。
- 間取図は、現況を優先させていただきます。
- 映像は物件の一部を撮影したものです。物件の契約にあたっての最終判断はご自身の判断に基づいて行ってください。
- 仲介手数料について

アットホームは物件情報の適正化に努めております。
内容に誤りがある場合にはこちらへご連絡ください。