埼玉県入間市狭山台1丁目(入間市駅)の貸店舗:物件詳細
交通 所在地 |
駅徒歩 |
賃料 管理費等 |
敷金/保証金 礼金 |
使用部分面積 坪数/坪単価 |
物件種目 築年月 |
|
西武池袋線/入間市 【バス】15分 いちょう通り 停歩6分
埼玉県入間市狭山台1丁目
|
−
|
27.5万円
38,476円
|
5ヶ月 / なし
1.1ヶ月
|
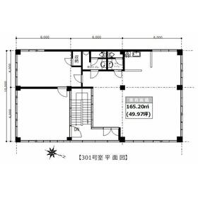
165.20m²
49.97坪/0.5503万円
|
貸店舗・事務所
2012年1月(築13年10ヶ月)
|
|
間取図
|
外観
|
その他の画像
|
| 交通 | 西武池袋線 入間市駅 【バス】 15分 いちょう通り 停歩6分 |
| 所在地 |
埼玉県入間市狭山台1丁目
|
| 物件種目 |
貸店舗・事務所 |
| 賃料 |
27.5万円 |
管理費等 |
38,476円 |
| 敷金 / 保証金 |
5ヶ月 / なし |
礼金 |
1.1ヶ月 |
| 敷引 |
- |
坪単価 |
0.5503万円 |
| 保証金償却 |
解約時15% |
権利金 |
- |
| 造作譲渡 |
- |
その他一時金 |
火災保険(金額は業:19,000円、鍵交換(1箇所):28,000円 |
| 維持費等 |
- |
保険等 |
- |
| 使用部分面積 |
165.20m² |
坪数 |
49.97坪 |
| 築年月 |
2012年1月(築13年10ヶ月)
|
階建 / 階 |
3階建 / 3階 |
| 駐車場 |
有 5,500円/月 |
バイク置き場 |
- |
| 駐輪場 |
- |
土地面積 |
- |
| 接道状況 |
-
|
用途地域 |
2種中高 |
| 間取り |
- |
建物構造 |
鉄骨造 |
| 建物名・部屋番号 |
BALLビル 301 |
| リフォーム履歴 |
- |
| リノベーション履歴 |
- |
| 特記事項 |
最上階 |
| 備考 |
賃貸保証等:加入要(エポスカード 初回保証料が総額賃料の100%、月額保証料1000円。大手法人契約の場合は保証会社は不要。)
管理形態/管理員の勤務形態:-/-
【定期借家3年 再契約可】
2012年築の綺麗なお洒落な貸事務所ビルです。入間ICまで2kmの立地で圏央道にアクセスしやすい立地です。セコムの24時間警備システムも完備しております。
【定期借家3年 再契約可】飲食業・風俗営業・音&臭いが出る業種は不可とする。 毎月の電気代は、管理会社より請求いたします。 解約予告は3ヶ月前通告。 現状引き渡し。明け渡しは引渡時の状態に原状回復&エアコン清掃して明け渡すものとする。102号室の貸倉庫も募集しております。
|
| エネルギー消費性能 |
- |
| 断熱性能 |
- |
| 目安光熱費 |
- |
| バス・トイレ |
トイレ |
| キッチン |
- |
| 設備・サービス |
- |
| その他 |
- |
| 契約期間 |
3年 |
条件等 |
定期借家 |
| 引渡可能時期 |
即時 |
現況 |
空 |
| 更新料 |
新賃料 1ヶ月 |
物件番号 |
1170860407 |
| 情報公開日 |
2025年9月2日 |
次回更新予定日 |
2025年10月31日 |
| ケータイ用バーコード |
- スマートフォンでこの物件を見る
- スマートフォンからもこの物件をご覧になれます。
|
※「-」と表示されている項目については、情報提供会社にご確認ください。
ここから簡単にお問い合わせをすることができます。
(SSLでの暗号化での送信を希望されるお客さまは
こちら
よりお問い合わせください)
お問い合わせを行う前に
「個人情報の取り扱いについて」を必ずお読みください。
「個人情報の取り扱いについて」に同意いただいた場合は「上記にご同意の上 確認画面へ進む」のボタンをクリックしてください。
個人情報の取り扱いについて
皆さまが送付された個人情報はアットホーム(株)のサーバを経由し、お問い合わせ先の不動産会社にメールまたはFAXにて転送されるためアットホーム(株)にも保管されます。アットホーム(株)で保管された個人情報の取り扱いについては、【こちら】をご覧ください。
また、本画面でご記入いただいた個人情報は、お問い合わせ先の不動産会社でも保管します。 お問い合わせ先の不動産会社が保管する個人情報の取り扱いについては、不動産会社に直接お問い合わせください。
国土交通大臣免許(3)第8796号 |
|---|
- 交通:
- 西武池袋線/所沢駅 徒歩4分
- 埼玉県所沢市日吉町28-7
- TEL:
- 04-2929-2231
- FAX:
- 04-2929-2232
- 所属団体:
- (公社)全日本不動産協会会員(公社)首都圏不動産公正取引協議会加盟
取引態様:仲介  - 00532246
|
- スマートフォンで
この不動産会社を見る

|
- 提携サイト等より掲載されている物件情報につきましては、不動産会社詳細情報にリンクされていないものがあります。
- 物件に関するお問合せは、物件詳細ページの「情報提供会社」に表示されている不動産会社へ直接お願いいたします。
- 間取図は、現況を優先させていただきます。
- 映像は物件の一部を撮影したものです。物件の契約にあたっての最終判断はご自身の判断に基づいて行ってください。
- 仲介手数料について

アットホームは物件情報の適正化に努めております。
内容に誤りがある場合にはこちらへご連絡ください。