愛知県名古屋市天白区高坂町(神沢駅)の貸店舗:物件詳細
交通 所在地 |
駅徒歩 |
賃料 管理費等 |
敷金/保証金 礼金 |
使用部分面積 坪数/坪単価 |
物件種目 築年月 |
|
名古屋市桜通線/神沢
愛知県名古屋市天白区高坂町
|
22分
|
33万円
なし
|
なし / 6ヶ月
1ヶ月
|
170.65m²
51.62坪/0.6393万円
|
貸店舗・事務所(一括)
1985年3月(築40年10ヶ月)
|
|
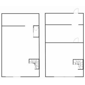
間取図
|
外観
|
<
その他の画像
>
|
| 交通 | 名古屋市桜通線 神沢駅 徒歩22分 |
|---|
| その他の交通 | 名古屋市桜通線 相生山駅 徒歩23分 名古屋市鶴舞線 原駅 徒歩27分 |
| 所在地 |
愛知県名古屋市天白区高坂町
|
| 物件種目 |
貸店舗・事務所(一括) |
| 賃料 |
33万円 |
管理費等 |
なし |
| 敷金 / 保証金 |
なし / 6ヶ月 |
礼金 |
1ヶ月 |
| 敷引 |
- |
坪単価 |
0.6393万円 |
| 保証金償却 |
- |
権利金 |
- |
| 造作譲渡 |
- |
その他一時金 |
なし |
| 維持費等 |
- |
保険等 |
- |
| 使用部分面積 |
170.65m² |
坪数 |
51.62坪 |
| 築年月 |
1985年3月(築40年10ヶ月)
|
階建 / 階 |
3階建 |
| 駐車場 |
有 無料(空き1台) |
バイク置き場 |
- |
| 駐輪場 |
- |
土地面積 |
- |
| 接道状況 |
-
|
用途地域 |
近隣商業 |
| 間取り |
- |
建物構造 |
鉄骨造 |
| アピールポイント |
★物件動画★
・メール、ショートメール、LINEにてURLのリンクをお送りしております。
・お問合せフォームにて「物件動画希望」とお申し付けください♪
★ご契約までのスケジュール一例★
①物件のお問合せ
・気になられた物件名をお教えください。
・併せましてご利用の用途をお伝えください♪
②物件の現地ご内覧
・ご希望の日時に現地ご案内致します。
②内装、設備などお見積もり
・再度ご内覧ください♪
③ご入居申込
・必要書類:ご入居申込書
法人様 (会社謄本写し、社長様の運転免許証の写し)
個人様 (ご契約者様の身分証両面写し、連帯保証人予定者様の身分証両面の写し)
④条件交渉、入居審査
・入居日、賃料等の条件交渉
・貸主様、保証会社にて審査
⑤審査、交渉結果のご回答
⑥ご契約の締結
・重要事項説明書の読み上げ、ご契約書へのご署名と押印(ZOOMでの対応も可能です♪)
・初期費用のお振込み
・必要書類のご提出(借主様、連帯保証人様印鑑証明書原本、火災保険証の写し)
・改装工事の内容がお決まりになりましたら弊社にお知らせください。
⑦ご契約開始日、鍵のお渡しとなります! |
| 建物名・部屋番号 |
ミッキービル(駐車1台) 1階~2階 |
| リフォーム履歴 |
- |
| リノベーション履歴 |
- |
| 特記事項 |
土日・祝日利用可、飲食店不可、1フロア1テナント、IT重説対応物件 |
| 備考 |
賃貸保証等:加入要(初回保証料月額賃料等1か月分)
管理形態/管理員の勤務形態:-/-
IT重説対応物件
・物件の動画を撮影致しました♪メールでお送りいたします!
|
| エネルギー消費性能 |
- |
| 断熱性能 |
- |
| 目安光熱費 |
- |
| バス・トイレ |
トイレ、多機能トイレ |
| キッチン |
- |
| 設備・サービス |
看板取付スペースあり、空調機あり
給湯、都市ガス、ビルトインエアコン、エアコン、暖房、冷房 |
| その他 |
- |
| 契約期間 |
2年 |
条件等 |
- |
| 引渡可能時期 |
即時 |
現況 |
空 |
| 仲介手数料 |
1ヶ月 |
|
|
| 更新料 |
- |
物件番号 |
1171164407 |
| 情報公開日 |
2025年12月2日 |
次回更新予定日 |
2025年12月16日 |
| ケータイ用バーコード |
- スマートフォンでこの物件を見る
- スマートフォンからもこの物件をご覧になれます。
|
※「-」と表示されている項目については、情報提供会社にご確認ください。
ここから簡単にお問い合わせをすることができます。
(SSLでの暗号化での送信を希望されるお客さまは
こちら
よりお問い合わせください)
お問い合わせを行う前に
「個人情報の取り扱いについて」を必ずお読みください。
「個人情報の取り扱いについて」に同意いただいた場合は「上記にご同意の上 確認画面へ進む」のボタンをクリックしてください。
個人情報の取り扱いについて
皆さまが送付された個人情報はアットホーム(株)のサーバを経由し、お問い合わせ先の不動産会社にメールまたはFAXにて転送されるためアットホーム(株)にも保管されます。アットホーム(株)で保管された個人情報の取り扱いについては、【こちら】をご覧ください。
また、本画面でご記入いただいた個人情報は、お問い合わせ先の不動産会社でも保管します。 お問い合わせ先の不動産会社が保管する個人情報の取り扱いについては、不動産会社に直接お問い合わせください。
愛知県知事免許(1)第24946号 |
|---|
- 交通:
- 名鉄名古屋本線/知立駅 徒歩5分
- 愛知県知立市南新地1丁目2番地2 丸岡ビル2階H号室
- TEL:
- 0566-81-4600
- FAX:
- 0566-81-4601
- 所属団体:
- (公社)愛知県宅地建物取引業協会会員東海不動産公正取引協議会加盟
取引態様:仲介  - 40409714
|
- スマートフォンで
この不動産会社を見る

|
- 提携サイト等より掲載されている物件情報につきましては、不動産会社詳細情報にリンクされていないものがあります。
- 物件に関するお問合せは、物件詳細ページの「情報提供会社」に表示されている不動産会社へ直接お願いいたします。
- 間取図は、現況を優先させていただきます。
- 映像は物件の一部を撮影したものです。物件の契約にあたっての最終判断はご自身の判断に基づいて行ってください。
- 仲介手数料について

アットホームは物件情報の適正化に努めております。
内容に誤りがある場合にはこちらへご連絡ください。