愛知県安城市緑町1丁目(三河安城駅)の貸店舗:物件詳細
交通 所在地 |
駅徒歩 |
賃料 管理費等 |
敷金/保証金 礼金 |
使用部分面積 坪数/坪単価 |
物件種目 築年月 |
|
東海道本線/三河安城 [バス利用可] バス 4分 二本木公民館 停歩5分
愛知県安城市緑町1丁目
|
10分
|
10.3389万円
9,543円
|
なし / 4ヶ月
なし
|
23.91m²
7.23坪/1.4295万円
|
貸店舗
2023年6月(築2年7ヶ月)
|
|
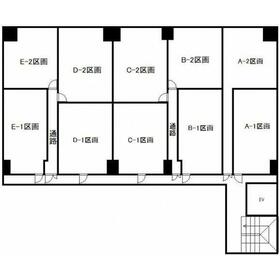
間取図
|
外観
|
<
その他の画像
>
|
| 交通 | 東海道本線 三河安城駅 徒歩10分 [バス利用可] バス 4分 二本木公民館 停歩5分 |
|---|
| その他の交通 | 東海道本線 東刈谷駅 徒歩18分 [バス利用可] バス 9分 JA二本木支店(愛知県) 停歩5分 東海道本線 野田新町駅 徒歩36分 [バス利用可] バス 6分 東刈谷駅南口 停歩18分 |
| 所在地 |
愛知県安城市緑町1丁目
|
| 物件種目 |
貸店舗 |
| 賃料 |
10.3389万円 |
管理費等 |
9,543円 |
| 敷金 / 保証金 |
なし / 4ヶ月 |
礼金 |
なし |
| 敷引 |
- |
坪単価 |
1.4295万円 |
| 保証金償却 |
解約時3ヶ月 |
権利金 |
- |
| 造作譲渡 |
- |
その他一時金 |
なし |
| 維持費等 |
- |
保険等 |
- |
| 使用部分面積 |
23.91m² |
坪数 |
7.23坪 |
| 築年月 |
2023年6月(築2年7ヶ月)
|
階建 / 階 |
2階建 / 2階 |
| 駐車場 |
有 24,200円/月(空き2台) |
バイク置き場 |
- |
| 駐輪場 |
- |
土地面積 |
- |
| 接道状況 |
-
|
用途地域 |
準住居 |
| 間取り |
- |
建物構造 |
鉄骨造 |
| アピールポイント |
【TENPOUP】
TENPOUP(テンポアップ)は家主様お客様と共に街づくり・街おこしを行い
社会貢献及び経済活性化の為、事業用物件の仲介に特化した不動産会社になります!!
店舗・事務所・倉庫・工場・借地の仲介を専門としお客様の繁盛店へのスタートのお手伝いを全力でサポートさせて頂きます。
【店舗探しはテンポよく!】をモットーにお客様に迅速且つ的確な物件紹介、
オープン・移転までの提携会社(内装業者、火災保険会社、インターネット回線、ガス会社等)の斡旋、オープン後のトラブル対応などお客様の商売がより繁盛できるサポート体制も準備しています。
お客様の商売繁盛の為、家主様とお客様の橋渡しに真剣に取り組んでいます。
是非街づくり・街おこしのお手伝いをお任せくださいませ。
また弊社ホームページにて多種多様な物件情報を掲載しております。
弊社にしかない自社管理物件情報・専任物件情報もございますので、ぜひ一度ご覧ください。
店舗探しはテンポよく!!
ぜひ事業用(店舗・事務所等)の物件探しはTENPOUPへお問い合わせください!! |
| 建物名・部屋番号 |
THE TERRACE ANJO E-1 |
| リフォーム履歴 |
- |
| リノベーション履歴 |
- |
| 特記事項 |
飲食店不可、IT重説対応物件 |
| 備考 |
管理形態/管理員の勤務形態:-/-
都市計画:市街化区域
IT重説対応物件
鍵代実費
看板作成料66,000円
解約予告6ヶ月前
短期解約違約金有:1年未満:総賃料2ヶ月分/2年未満:総賃料1ヶ月分
|
| エネルギー消費性能 |
- |
| 断熱性能 |
- |
| 目安光熱費 |
- |
| バス・トイレ |
トイレ |
| キッチン |
- |
| 設備・サービス |
プロパンガス |
| その他 |
エレベーター |
| 契約期間 |
2年 |
条件等 |
- |
| 引渡可能時期 |
2026年4月20日予定 |
現況 |
使用中 |
| 仲介手数料 |
1.1ヶ月 |
|
|
| 更新料 |
22,000円 |
物件番号 |
1171201207 |
| 情報公開日 |
2025年10月2日 |
次回更新予定日 |
2025年12月17日 |
| ケータイ用バーコード |
- スマートフォンでこの物件を見る
- スマートフォンからもこの物件をご覧になれます。
|
※「-」と表示されている項目については、情報提供会社にご確認ください。
ここから簡単にお問い合わせをすることができます。
(SSLでの暗号化での送信を希望されるお客さまは
こちら
よりお問い合わせください)
お問い合わせを行う前に
「個人情報の取り扱いについて」を必ずお読みください。
「個人情報の取り扱いについて」に同意いただいた場合は「上記にご同意の上 確認画面へ進む」のボタンをクリックしてください。
個人情報の取り扱いについて
皆さまが送付された個人情報はアットホーム(株)のサーバを経由し、お問い合わせ先の不動産会社にメールまたはFAXにて転送されるためアットホーム(株)にも保管されます。アットホーム(株)で保管された個人情報の取り扱いについては、【こちら】をご覧ください。
また、本画面でご記入いただいた個人情報は、お問い合わせ先の不動産会社でも保管します。 お問い合わせ先の不動産会社が保管する個人情報の取り扱いについては、不動産会社に直接お問い合わせください。
愛知県知事免許(3)第22991号 |
|---|
- 交通:
- 愛知環状鉄道/三河豊田駅 徒歩2分
- 愛知県豊田市山之手4丁目53
- TEL:
- 0565-28-1020
- FAX:
- 0565-28-1021
- 所属団体:
- 不動産公正取引協議会加盟
取引態様:仲介  - 40406797
|
- スマートフォンで
この不動産会社を見る

|
- 提携サイト等より掲載されている物件情報につきましては、不動産会社詳細情報にリンクされていないものがあります。
- 物件に関するお問合せは、物件詳細ページの「情報提供会社」に表示されている不動産会社へ直接お願いいたします。
- 間取図は、現況を優先させていただきます。
- 映像は物件の一部を撮影したものです。物件の契約にあたっての最終判断はご自身の判断に基づいて行ってください。
- 仲介手数料について

アットホームは物件情報の適正化に努めております。
内容に誤りがある場合にはこちらへご連絡ください。