千葉県千葉市中央区松波3丁目(千葉駅)の貸店舗:物件詳細
交通 所在地 |
駅徒歩 |
賃料 管理費等 |
敷金/保証金 礼金 |
使用部分面積 坪数/坪単価 |
物件種目 築年月 |
|
JR総武線/千葉
千葉県千葉市中央区松波3丁目
|
8分
|
30万円
なし
|
3ヶ月 / なし
1ヶ月
|
87.74m²
26.54坪/1.1304万円
|
貸店舗・事務所
1983年10月(築42年3ヶ月)
|
|
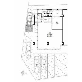
間取図
|
外観
|
<
その他の画像
>
|
| 交通 | JR総武線 千葉駅 徒歩8分 |
|---|
| その他の交通 | JR総武線 西千葉駅 徒歩14分 京成千葉線 新千葉駅 徒歩13分 |
| 所在地 |
千葉県千葉市中央区松波3丁目
|
| 物件種目 |
貸店舗・事務所 |
| 賃料 |
30万円 |
管理費等 |
なし |
| 敷金 / 保証金 |
3ヶ月 / なし |
礼金 |
1ヶ月 |
| 敷引 |
- |
坪単価 |
1.1304万円 |
| 保証金償却 |
- |
権利金 |
- |
| 造作譲渡 |
- |
その他一時金 |
なし |
| 維持費等 |
- |
保険等 |
- |
| 使用部分面積 |
87.74m² |
坪数 |
26.54坪 |
| 築年月 |
1983年10月(築42年3ヶ月)
|
階建 / 階 |
3階建 / 1階 |
| 駐車場 |
有 無料(空き4台) |
バイク置き場 |
有 |
| 駐輪場 |
有 |
土地面積 |
- |
| 接道状況 |
-
|
用途地域 |
- |
| 間取り |
- |
建物構造 |
鉄骨造 |
| アピールポイント |
【物件選び★入居工事★原状回復工事までワンストップで対応可能!】
テンポエステートは、テナント(店舗・事務所)専門仲介サービスとして、今まで1000件以上のテナント(店舗・事務所)不動産賃貸仲介に携わってきました。
開業するにあたり、
何から始めればいいんだろう。
物件はどう決めたらいんだろう。
内装ってどうやって頼んだらいいの?
どんなものを準備すればいいの?
そんなお悩みに丁寧にご対応させていただきます!
テナント(店舗・事務所)物件をお探しの方は、テナント(店舗・事務所)専門仲介サービスのテンポエステートに、お気軽にお問い合わせください!
【オーナー様へ】
弊社では、SNSやLINEなどのツールを駆使してお客様とのコミュニティを広げており、オーナー様の物件状況によってピッタリのお客様をご紹介する体制が整っております。
・入居者探しをご検討している
・なかなか入居者が決まらない
というオーナー様、
是非、テナント(店舗・事務所)専門仲介サービスのテンポエステートにお問い合わせください! |
| 建物名・部屋番号 |
|
| リフォーム履歴 |
- |
| リノベーション履歴 |
- |
| 特記事項 |
土曜日利用可、土日・祝日利用可、飲食店不可、角部屋 |
| 備考 |
賃貸保証等:加入要(詳細はお問い合わせください)
管理形態/管理員の勤務形態:-/-
駐車場4台分あり(小型車含む)
|
| エネルギー消費性能 |
- |
| 断熱性能 |
- |
| 目安光熱費 |
- |
| バス・トイレ |
トイレ |
| キッチン |
- |
| 設備・サービス |
プロパンガス、エアコン、冷房 |
| その他 |
- |
| 契約期間 |
3年 |
条件等 |
- |
| 引渡可能時期 |
即時 |
現況 |
空 |
| 仲介手数料 |
1.1ヶ月 |
|
|
| 更新料 |
新賃料 1ヶ月 |
物件番号 |
1171345207 |
| 情報公開日 |
2025年11月23日 |
次回更新予定日 |
2025年12月7日 |
| ケータイ用バーコード |
- スマートフォンでこの物件を見る
- スマートフォンからもこの物件をご覧になれます。
|
※「-」と表示されている項目については、情報提供会社にご確認ください。
| 周辺施設 |
ローソン ウェストリオ千葉店 |
| 距離 |
842m |
写真を見る |
| 周辺施設 |
セブンイレブン 千葉駅西口店 |
| 距離 |
822m |
写真を見る |
| 周辺施設 |
千葉市民会館 |
| 距離 |
1316m |
写真を見る |
| 周辺施設 |
千葉駅前大通り郵便局 |
| 距離 |
1247m |
写真を見る |
ここから簡単にお問い合わせをすることができます。
(SSLでの暗号化での送信を希望されるお客さまは
こちら
よりお問い合わせください)
お問い合わせを行う前に
「個人情報の取り扱いについて」を必ずお読みください。
「個人情報の取り扱いについて」に同意いただいた場合は「上記にご同意の上 確認画面へ進む」のボタンをクリックしてください。
個人情報の取り扱いについて
皆さまが送付された個人情報はアットホーム(株)のサーバを経由し、お問い合わせ先の不動産会社にメールまたはFAXにて転送されるためアットホーム(株)にも保管されます。アットホーム(株)で保管された個人情報の取り扱いについては、【こちら】をご覧ください。
また、本画面でご記入いただいた個人情報は、お問い合わせ先の不動産会社でも保管します。 お問い合わせ先の不動産会社が保管する個人情報の取り扱いについては、不動産会社に直接お問い合わせください。
国土交通大臣免許(1)第11014号 |
|---|
- 交通:
- JR総武本線/津田沼駅
- 千葉県船橋市前原西2丁目32-8
- TEL:
- 03-6899-7119
- 所属団体:
- (一社)千葉県宅地建物取引業協会会員(公社)首都圏不動産公正取引協議会加盟
取引態様:仲介  - 00277347
|
- スマートフォンで
この不動産会社を見る

|
- 提携サイト等より掲載されている物件情報につきましては、不動産会社詳細情報にリンクされていないものがあります。
- 物件に関するお問合せは、物件詳細ページの「情報提供会社」に表示されている不動産会社へ直接お願いいたします。
- 間取図は、現況を優先させていただきます。
- 映像は物件の一部を撮影したものです。物件の契約にあたっての最終判断はご自身の判断に基づいて行ってください。
- 仲介手数料について

アットホームは物件情報の適正化に努めております。
内容に誤りがある場合にはこちらへご連絡ください。