岐阜県関市西本郷通2丁目(関駅)の貸店舗:物件詳細
交通 所在地 |
駅徒歩 |
賃料 管理費等 |
敷金/保証金 礼金 |
使用部分面積 坪数/坪単価 |
物件種目 築年月 |
|
長良川鉄道/関 [バス利用可] バス 関市役所 停歩400m
岐阜県関市西本郷通2丁目
|
400m
|
14.85万円
11,000円
|
なし / 40万円
1ヶ月
|
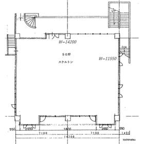
174.66m²
52.83坪/0.2811万円
|
貸店舗
1996年12月(築29年1ヶ月)
|
|
間取図
|
|
<
その他の画像
>
|
| 交通 | 長良川鉄道 関駅 徒歩400m [バス利用可] バス 関市役所 停歩400m |
| 所在地 |
岐阜県関市西本郷通2丁目
|
| 物件種目 |
貸店舗 |
| 賃料 |
14.85万円 |
管理費等 |
11,000円 |
| 敷金 / 保証金 |
なし / 40万円 |
礼金 |
1ヶ月 |
| 敷引 |
- |
坪単価 |
0.2811万円 |
| 保証金償却 |
解約時50% 期間満了前解約100% |
権利金 |
- |
| 造作譲渡 |
- |
その他一時金 |
- |
| 維持費等 |
必要な場合 従業者指定駐車場(税別)1台:2,500円/月 |
保険等 |
要 2年 借家人賠償責任 |
| 使用部分面積 |
174.66m² |
坪数 |
52.83坪 |
| 築年月 |
1996年12月(築29年1ヶ月)
|
階建 / 階 |
地上2階地下1階建 / 1階 |
| 駐車場 |
有 11,000円/月(空き25台) テナント共同駐車場 25台 従業者専用(共用)7台 |
バイク置き場 |
- |
| 駐輪場 |
- |
土地面積 |
- |
| 接道状況 |
北 12.0m 公道 接面70.0m
|
用途地域 |
準工業 |
| 間取り |
ワンルーム |
建物構造 |
鉄骨造 |
| アピールポイント |
開業までの家賃フリーレント(最長3か月)
現在のテナント退去後 9月より |
| 建物名・部屋番号 |
ミュトステナント 201 |
| リフォーム履歴 |
■外装:2015年4月 外壁、屋根 塗りなおし ■共用部の大規模修繕工事:2015年4月 外壁塗り替え時に修繕 ※実施年月は最も古い履歴を表示 |
| リノベーション履歴 |
- |
| 特記事項 |
スケルトン、土曜日利用可、土日・祝日利用可、飲食店可、整形無柱空間、大型トラック搬入可、フリーレント、1フロア1テナント、角部屋、24時間セキュリティー、天井高2.5M以上、バリアフリー、保証人不要 |
| 備考 |
賃貸保証等:利用可(初回1か月分(家賃振替同時加入))
管理形態/管理員の勤務形態:-/-
バルコニー:15m²
主要採光面:南向き
フリーレント:3ヶ月(改装期間(プレオープンまで)の短い方)
スケルトンとなっております。
|
| エネルギー消費性能 |
- |
| 断熱性能 |
- |
| 目安光熱費 |
- |
| バス・トイレ |
- |
| キッチン |
- |
| 設備・サービス |
看板取付スペースあり、換気口あり、水道メーター口径25mm
防犯カメラ、プロパンガス、動力あり、インターネット対応、光ファイバー、CATVインターネット、ケーブルTV |
| その他 |
障がい者等用駐車場 |
| 契約期間 |
7年 |
条件等 |
- |
| 引渡可能時期 |
即時 |
現況 |
空 |
| 仲介手数料 |
不要 |
|
|
| 更新料 |
なし |
物件番号 |
3645103501 |
| 情報公開日 |
2025年5月12日 |
次回更新予定日 |
2025年12月15日 |
| ケータイ用バーコード |
- スマートフォンでこの物件を見る
- スマートフォンからもこの物件をご覧になれます。
|
※「-」と表示されている項目については、情報提供会社にご確認ください。
| 周辺施設 |
わかくさ・プラザ内温水プール |
| 距離 |
437m |
| 周辺施設 |
サークルK西本郷通五丁目店 |
| 距離 |
425m |
| 周辺施設 |
岐阜県厚生農業協同組合連合会中濃厚生病院 |
| 距離 |
685m |
ここから簡単にお問い合わせをすることができます。
(SSLでの暗号化での送信を希望されるお客さまは
こちら
よりお問い合わせください)
お問い合わせを行う前に
「個人情報の取り扱いについて」を必ずお読みください。
「個人情報の取り扱いについて」に同意いただいた場合は「上記にご同意の上 確認画面へ進む」のボタンをクリックしてください。
個人情報の取り扱いについて
皆さまが送付された個人情報はアットホーム(株)のサーバを経由し、お問い合わせ先の不動産会社にメールまたはFAXにて転送されるためアットホーム(株)にも保管されます。アットホーム(株)で保管された個人情報の取り扱いについては、【こちら】をご覧ください。
また、本画面でご記入いただいた個人情報は、お問い合わせ先の不動産会社でも保管します。 お問い合わせ先の不動産会社が保管する個人情報の取り扱いについては、不動産会社に直接お問い合わせください。
岐阜県知事免許(7)第3708号 |
|---|
- 交通:
- 長良川鉄道/関下有知駅 徒歩5分
- 岐阜県関市下有知3417-3
- TEL:
- 0575-22-4716
- FAX:
- 0575-22-3603
- 所属団体:
- (公社)岐阜県宅地建物取引業協会会員(一社)全国賃貸不動産管理業協会会員東海不動産公正取引協議会加盟
取引態様:代理  - 40500908
|
- スマートフォンで
この不動産会社を見る

|
- 提携サイト等より掲載されている物件情報につきましては、不動産会社詳細情報にリンクされていないものがあります。
- 物件に関するお問合せは、物件詳細ページの「情報提供会社」に表示されている不動産会社へ直接お願いいたします。
- 間取図は、現況を優先させていただきます。
- 映像は物件の一部を撮影したものです。物件の契約にあたっての最終判断はご自身の判断に基づいて行ってください。
- 仲介手数料について

アットホームは物件情報の適正化に努めております。
内容に誤りがある場合にはこちらへご連絡ください。