神奈川県相模原市南区相南4丁目(小田急相模原駅)の貸店舗:物件詳細
交通 所在地 |
駅徒歩 |
賃料 管理費等 |
敷金/保証金 礼金 |
使用部分面積 坪数/坪単価 |
物件種目 築年月 |
|
小田急小田原線/小田急相模原
神奈川県相模原市南区相南4丁目
|
2分
|
27.5万円
11,000円
|
なし / 6ヶ月
2ヶ月
|
104.50m²
31.61坪/0.87万円
|
貸店舗
1985年3月(築40年10ヶ月)
|
|
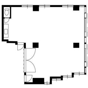
間取図
現況優先
|
外観
小田急相模原駅南口徒歩2分の好立地☆
|
その他の画像
|
| 交通 | 小田急小田原線 小田急相模原駅 徒歩2分 |
|---|
| その他の交通 | 小田急江ノ島線 東林間駅 徒歩20分 東急田園都市線 中央林間駅 徒歩35分 |
| 所在地 |
神奈川県相模原市南区相南4丁目
|
| 物件種目 |
貸店舗 |
| 賃料 |
27.5万円 |
管理費等 |
11,000円 |
| 敷金 / 保証金 |
なし / 6ヶ月 |
礼金 |
2ヶ月 |
| 敷引 |
- |
坪単価 |
0.87万円 |
| 保証金償却 |
年10% 中途解約時20%(テナント業種によっては相談可) |
権利金 |
- |
| 造作譲渡 |
- |
その他一時金 |
- |
| 維持費等 |
- |
保険等 |
- |
| 使用部分面積 |
104.50m² |
坪数 |
31.61坪 |
| 築年月 |
1985年3月(築40年10ヶ月)
|
階建 / 階 |
4階建 / 2階 |
| 駐車場 |
近有 16,500円/月 |
バイク置き場 |
- |
| 駐輪場 |
- |
土地面積 |
- |
| 接道状況 |
-
|
用途地域 |
- |
| 間取り |
- |
建物構造 |
RC |
| アピールポイント |
小田急相模原駅南口徒歩2分!バス通りに面した好立地!2Fですが専用階段あります!
美容室、学習塾、事務所等に最適! |
| 建物名・部屋番号 |
ルート相模原ビル 2F |
| リフォーム履歴 |
- |
| リノベーション履歴 |
- |
| 特記事項 |
- |
| 備考 |
賃貸保証等:加入要(利用料金は賃料総額の120%、更新時45%)
管理形態/管理員の勤務形態:-/-
※保証金償却は3年で10%・中途解約は20%(テナント業種によっては相談可)
※保証金6ヶ月(テナント業種によって相談可)
※飲食不可(軽飲食は要相談:店内調理は不可)
※オール電化物件(ガスの引き込みはありません)
|
| エネルギー消費性能 |
- |
| 断熱性能 |
- |
| 目安光熱費 |
- |
| バス・トイレ |
トイレ |
| キッチン |
- |
| 設備・サービス |
- |
| その他 |
- |
| 契約期間 |
3年 |
条件等 |
- |
| 引渡可能時期 |
即時 |
現況 |
空 |
| 更新料 |
新賃料 1ヶ月 |
物件番号 |
6950319767 |
| 情報公開日 |
2025年7月28日 |
次回更新予定日 |
2025年12月18日 |
| ケータイ用バーコード |
- スマートフォンでこの物件を見る
- スマートフォンからもこの物件をご覧になれます。
|
※「-」と表示されている項目については、情報提供会社にご確認ください。
| 周辺施設 |
イトーヨーカドー相模原店 |
| 距離 |
78m |
写真を見る |
| 周辺施設 |
ローソン相模原相南4丁目店 |
| 距離 |
161m |
写真を見る |
| 周辺施設 |
みずほ銀行小田急相模原支店 |
| 距離 |
143m |
ここから簡単にお問い合わせをすることができます。
(SSLでの暗号化での送信を希望されるお客さまは
こちら
よりお問い合わせください)
お問い合わせを行う前に
「個人情報の取り扱いについて」を必ずお読みください。
「個人情報の取り扱いについて」に同意いただいた場合は「上記にご同意の上 確認画面へ進む」のボタンをクリックしてください。
個人情報の取り扱いについて
皆さまが送付された個人情報はアットホーム(株)のサーバを経由し、お問い合わせ先の不動産会社にメールまたはFAXにて転送されるためアットホーム(株)にも保管されます。アットホーム(株)で保管された個人情報の取り扱いについては、【こちら】をご覧ください。
また、本画面でご記入いただいた個人情報は、お問い合わせ先の不動産会社でも保管します。 お問い合わせ先の不動産会社が保管する個人情報の取り扱いについては、不動産会社に直接お問い合わせください。
神奈川県知事免許(12)第10324号 |
|---|
- 交通:
- 小田急小田原線/小田急相模原駅 徒歩1分
- 神奈川県相模原市南区松が枝町23-9 藤和ビル1F
- TEL:
- 042-743-6101
- FAX:
- 042-743-0147
- 所属団体:
- (公社)神奈川県宅地建物取引業協会会員(一社)全国賃貸不動産管理業協会会員(公社)首都圏不動産公正取引協議会加盟
取引態様:仲介  - 00350361
|
- スマートフォンで
この不動産会社を見る

|
- 提携サイト等より掲載されている物件情報につきましては、不動産会社詳細情報にリンクされていないものがあります。
- 物件に関するお問合せは、物件詳細ページの「情報提供会社」に表示されている不動産会社へ直接お願いいたします。
- 間取図は、現況を優先させていただきます。
- 映像は物件の一部を撮影したものです。物件の契約にあたっての最終判断はご自身の判断に基づいて行ってください。
- 仲介手数料について

アットホームは物件情報の適正化に努めております。
内容に誤りがある場合にはこちらへご連絡ください。