愛知県名古屋市西区那古野1丁目(国際センター駅)の貸店舗:物件詳細
交通 所在地 |
駅徒歩 |
賃料 管理費等 |
敷金/保証金 礼金 |
使用部分面積 坪数/坪単価 |
物件種目 築年月 |
|
名古屋市桜通線/国際センター
愛知県名古屋市西区那古野1丁目
|
6分
|
16.5万円
-
|
なし / 3ヶ月
1ヶ月
|
64.61m²
19.54坪/0.8443万円
|
貸店舗・事務所
1982年12月(築43年4ヶ月)
|
|
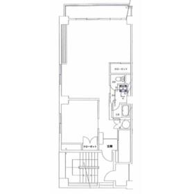
間取図
|
|
その他の画像
|
| 交通 | 名古屋市桜通線 国際センター駅 徒歩6分 |
|---|
| その他の交通 | 名古屋市鶴舞線 丸の内駅 徒歩10分 名古屋市東山線 名古屋駅 徒歩13分 |
| 所在地 |
愛知県名古屋市西区那古野1丁目
|
| 物件種目 |
貸店舗・事務所 |
| 賃料 |
16.5万円 |
管理費等 |
- |
| 敷金 / 保証金 |
なし / 3ヶ月 |
礼金 |
1ヶ月 |
| 敷引 |
- |
坪単価 |
0.8443万円 |
| 保証金償却 |
解約時100% 期間内解約100%、期間満了50% |
権利金 |
- |
| 造作譲渡 |
- |
その他一時金 |
- |
| 維持費等 |
- |
保険等 |
- |
| 使用部分面積 |
64.61m² |
坪数 |
19.54坪 |
| 築年月 |
1982年12月(築43年4ヶ月)
|
階建 / 階 |
地上15階地下2階建 / 4階 |
| 駐車場 |
- |
バイク置き場 |
- |
| 駐輪場 |
- |
土地面積 |
- |
| 接道状況 |
-
|
用途地域 |
- |
| 間取り |
- |
建物構造 |
SRC |
| アピールポイント |
お問合せやご質問は、052-959-2888(株式会社オフィッコス)
原則30分以内に確認をして資料をお送りさせていただきます。
お気軽にお問合せくださいませ。 |
| 建物名・部屋番号 |
那古野ビル北館 4F 19.54坪 |
| リフォーム履歴 |
- |
| リノベーション履歴 |
- |
| 特記事項 |
24時間利用可、土曜日利用可、土日・祝日利用可、飲食店不可、24時間セキュリティー、IT重説対応物件 |
| 備考 |
管理形態/管理員の勤務形態:-/-
IT重説対応物件
|
| エネルギー消費性能 |
- |
| 断熱性能 |
- |
| 目安光熱費 |
- |
| バス・トイレ |
専有部分にトイレあり |
| キッチン |
- |
| 設備・サービス |
個別空調、エアコン、暖房、冷房、インターネット対応、光ファイバー |
| その他 |
エレベーター |
| 契約期間 |
5年 |
条件等 |
定期借家 |
| 引渡可能時期 |
即時 |
現況 |
空 |
| 更新料 |
- |
物件番号 |
6961416522 |
| 情報公開日 |
2026年3月11日 |
次回更新予定日 |
2026年3月31日 |
| ケータイ用バーコード |
- スマートフォンでこの物件を見る
- スマートフォンからもこの物件をご覧になれます。
|
※「-」と表示されている項目については、情報提供会社にご確認ください。
| 周辺施設 |
CoCo壱番屋西区那古野店 |
| 距離 |
40m |
| 周辺施設 |
ファミリーマート那古野二丁目店 |
| 距離 |
123m |
| 周辺施設 |
ワッツウィズ円頓寺丸一ストアー店 |
| 距離 |
250m |
ここから簡単にお問い合わせをすることができます。
(SSLでの暗号化での送信を希望されるお客さまは
こちら
よりお問い合わせください)
お問い合わせを行う前に
「個人情報の取り扱いについて」を必ずお読みください。
「個人情報の取り扱いについて」に同意いただいた場合は「上記にご同意の上 確認画面へ進む」のボタンをクリックしてください。
個人情報の取り扱いについて
皆さまが送付された個人情報はアットホーム(株)のサーバを経由し、お問い合わせ先の不動産会社にメールまたはFAXにて転送されるためアットホーム(株)にも保管されます。アットホーム(株)で保管された個人情報の取り扱いについては、【こちら】をご覧ください。
また、本画面でご記入いただいた個人情報は、お問い合わせ先の不動産会社でも保管します。 お問い合わせ先の不動産会社が保管する個人情報の取り扱いについては、不動産会社に直接お問い合わせください。
愛知県知事免許(3)第22161号 |
|---|
- 交通:
- 名古屋市名城線/久屋大通駅 徒歩2分
- 愛知県名古屋市中区丸の内3丁目18-1 三晃丸の内ビル7F
- TEL:
- 052-959-2888
- FAX:
- 052-959-2890
- 所属団体:
- (公社)全日本不動産協会会員東海不動産公正取引協議会加盟
取引態様:仲介  - 40403414
|
- スマートフォンで
この不動産会社を見る

|
- 提携サイト等より掲載されている物件情報につきましては、不動産会社詳細情報にリンクされていないものがあります。
- 物件に関するお問合せは、物件詳細ページの「情報提供会社」に表示されている不動産会社へ直接お願いいたします。
- 間取図は、現況を優先させていただきます。
- 映像は物件の一部を撮影したものです。物件の契約にあたっての最終判断はご自身の判断に基づいて行ってください。
- 仲介手数料について

アットホームは物件情報の適正化に努めております。
内容に誤りがある場合にはこちらへご連絡ください。