千葉県千葉市花見川区み春野1丁目(勝田台駅)の貸店舗:物件詳細
交通 所在地 |
駅徒歩 |
賃料 管理費等 |
敷金/保証金 礼金 |
使用部分面積 坪数/坪単価 |
物件種目 築年月 |
京成本線/勝田台
千葉県千葉市花見川区み春野1丁目
|
4200m
|
12万円
なし
|
なし / 3ヶ月
1ヶ月
|
50.00m²
15.12坪/0.7934万円
|
貸店舗・事務所
2002年2月(築23年9ヶ月)
|
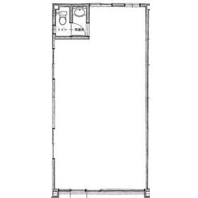
間取図
間口約5m 奥行き約10m
|
外観
|
<
その他の画像
>
|
交通 | 京成本線 勝田台駅 徒歩4200m |
---|
その他の交通 | 東葉高速鉄道 東葉勝田台駅 徒歩4400m |
所在地 |
千葉県千葉市花見川区み春野1丁目
|
物件種目 |
貸店舗・事務所 |
賃料 |
12万円 |
管理費等 |
なし |
敷金 / 保証金 |
なし / 3ヶ月 |
礼金 |
1ヶ月 |
敷引 |
- |
坪単価 |
0.7934万円 |
保証金償却 |
- |
権利金 |
- |
造作譲渡 |
- |
その他一時金 |
- |
維持費等 |
- |
保険等 |
要 |
使用部分面積 |
50.00m² |
坪数 |
15.12坪 |
築年月 |
2002年2月(築23年9ヶ月)
|
階建 / 階 |
1階建 / 1階 |
駐車場 |
有 無料(空き2台) 駐輪場として利用しても可 |
バイク置き場 |
無 |
駐輪場 |
無 |
土地面積 |
- |
接道状況 |
南 16.0m 公道
|
用途地域 |
- |
間取り |
- |
建物構造 |
鉄骨造 |
アピールポイント |
国道16号線にもすぐ出れますし、同じく北千葉インターまで車で約5分です
東葉高速鉄道、京成本線までもバス便はあります。車の場合、約7分です。 すぐ近くに2台有料駐車場借りれます。 |
建物名・部屋番号 |
松戸店舗 |
リフォーム履歴 |
- |
リノベーション履歴 |
- |
特記事項 |
土曜日利用可、土日・祝日利用可、飲食店不可、角部屋 |
備考 |
賃貸保証等:加入要(初回、賃料の100%。以降1年毎に賃料の10%相当額)
管理形態/管理員の勤務形態:-/-
主要採光面:南向き
|
エネルギー消費性能 |
- |
断熱性能 |
- |
目安光熱費 |
- |
バス・トイレ |
専有部分にトイレあり |
キッチン |
- |
設備・サービス |
- |
その他 |
- |
契約期間 |
3年 |
条件等 |
- |
引渡可能時期 |
即時 |
現況 |
空 |
仲介手数料 |
1.1ヶ月 |
|
|
更新料 |
新賃料 1ヶ月 |
物件番号 |
6965548853 |
情報公開日 |
2025年9月29日 |
次回更新予定日 |
2025年10月25日 |
ケータイ用バーコード |
- スマートフォンでこの物件を見る
- スマートフォンからもこの物件をご覧になれます。
|
※「-」と表示されている項目については、情報提供会社にご確認ください。
周辺施設 |
カワグチこてはしSC中央店 |
距離 |
1951m |
周辺施設 |
ローソン・スリーエフみ春野店 |
距離 |
23m |
周辺施設 |
ファミリーマート千葉宇那谷町店 |
距離 |
1079m |
周辺施設 |
千葉市立こてはし台中学校 |
距離 |
2026m |
周辺施設 |
千葉市立こてはし台小学校 |
距離 |
1900m |
周辺施設 |
医療法人思誠会勝田台病院 |
距離 |
2537m |
ここから簡単にお問い合わせをすることができます。
(SSLでの暗号化での送信を希望されるお客さまは
こちら
よりお問い合わせください)
お問い合わせを行う前に
「個人情報の取り扱いについて」を必ずお読みください。
「個人情報の取り扱いについて」に同意いただいた場合は「上記にご同意の上 確認画面へ進む」のボタンをクリックしてください。
個人情報の取り扱いについて
皆さまが送付された個人情報はアットホーム(株)のサーバを経由し、お問い合わせ先の不動産会社にメールまたはFAXにて転送されるためアットホーム(株)にも保管されます。アットホーム(株)で保管された個人情報の取り扱いについては、【こちら】をご覧ください。
また、本画面でご記入いただいた個人情報は、お問い合わせ先の不動産会社でも保管します。 お問い合わせ先の不動産会社が保管する個人情報の取り扱いについては、不動産会社に直接お問い合わせください。
千葉県知事免許(8)第11034号 |
---|
- 交通:
- 京成本線/勝田台駅 徒歩3分
- 千葉県八千代市勝田台北1丁目12-1 サイノスビル2F
- TEL:
- 047-486-4434
- FAX:
- 047-486-7401
- 所属団体:
- (公社)全日本不動産協会会員(公社)首都圏不動産公正取引協議会加盟
取引態様:仲介  - 00000545
|
- スマートフォンで
この不動産会社を見る

|
- 提携サイト等より掲載されている物件情報につきましては、不動産会社詳細情報にリンクされていないものがあります。
- 物件に関するお問合せは、物件詳細ページの「情報提供会社」に表示されている不動産会社へ直接お願いいたします。
- 間取図は、現況を優先させていただきます。
- 映像は物件の一部を撮影したものです。物件の契約にあたっての最終判断はご自身の判断に基づいて行ってください。
- 仲介手数料について

アットホームは物件情報の適正化に努めております。
内容に誤りがある場合にはこちらへご連絡ください。