千葉県市川市平田1丁目(本八幡駅)の貸店舗:物件詳細
交通 所在地 |
駅徒歩 |
賃料 管理費等 |
敷金/保証金 礼金 |
使用部分面積 坪数/坪単価 |
物件種目 築年月 |
JR総武線/本八幡
千葉県市川市平田1丁目
|
9分
|
35万円
なし
|
2ヶ月 / なし
なし
|
135.41m²
40.96坪/0.8545万円
|
貸店舗
1979年1月(築46年10ヶ月)
|
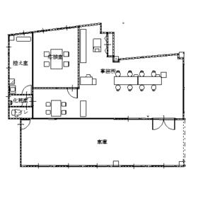
間取図
|
|
<
その他の画像
>
|
交通 | JR総武線 本八幡駅 徒歩9分 |
---|
その他の交通 | 都営新宿線 本八幡駅 徒歩6分 京成本線 京成八幡駅 徒歩8分 |
所在地 |
千葉県市川市平田1丁目
|
物件種目 |
貸店舗 |
賃料 |
35万円 |
管理費等 |
なし |
敷金 / 保証金 |
2ヶ月 / なし |
礼金 |
なし |
敷引 |
- |
坪単価 |
0.8545万円 |
保証金償却 |
- |
権利金 |
- |
造作譲渡 |
- |
その他一時金 |
- |
維持費等 |
- |
保険等 |
要 3年 貸借人賠償 |
使用部分面積 |
135.41m² |
坪数 |
40.96坪 |
築年月 |
1979年1月(築46年10ヶ月)
|
階建 / 階 |
4階建 / 1階 |
駐車場 |
無 |
バイク置き場 |
無 |
駐輪場 |
無 |
土地面積 |
- |
接道状況 |
-
|
用途地域 |
- |
間取り |
- |
建物構造 |
鉄骨造 |
建物名・部屋番号 |
|
リフォーム履歴 |
■内装:2022年6月 全室クロス張替え、床(フローリング等)、壁・天井(クロス・塗装等)、建具(室内ドア等) ■外装:1995年10月 外壁、屋根 ※実施年月は最も古い履歴を表示 |
リノベーション履歴 |
- |
特記事項 |
- |
備考 |
賃貸保証等:加入要(初回保証料賃料の100%更新保証料年間賃料の10%)
管理形態/管理員の勤務形態:-/-
業種により諸条件変動します。
|
エネルギー消費性能 |
- |
断熱性能 |
- |
目安光熱費 |
- |
バス・トイレ |
- |
キッチン |
- |
設備・サービス |
空調機あり、換気口あり |
その他 |
- |
契約期間 |
3年 |
条件等 |
- |
引渡可能時期 |
相談 |
現況 |
空 |
仲介手数料 |
1.1ヶ月 |
|
|
更新料 |
新賃料 1.5ヶ月 |
物件番号 |
6965915729 |
情報公開日 |
2025年10月9日 |
次回更新予定日 |
2025年10月24日 |
ケータイ用バーコード |
- スマートフォンでこの物件を見る
- スマートフォンからもこの物件をご覧になれます。
|
※「-」と表示されている項目については、情報提供会社にご確認ください。
周辺施設 |
ファミリーマート市川八幡店 |
距離 |
66m |
写真を見る |
周辺施設 |
サイゼリヤ市川菅野店 |
距離 |
131m |
写真を見る |
周辺施設 |
サンクス市川平田一丁目店 |
距離 |
227m |
写真を見る |
周辺施設 |
和食さと市川菅野店 |
距離 |
171m |
写真を見る |
周辺施設 |
市川市立平田保育園 |
距離 |
368m |
写真を見る |
周辺施設 |
千葉県立市川工業高校 |
距離 |
293m |
写真を見る |
周辺施設 |
八幡南保育園 |
距離 |
396m |
写真を見る |
ここから簡単にお問い合わせをすることができます。
(SSLでの暗号化での送信を希望されるお客さまは
こちら
よりお問い合わせください)
お問い合わせを行う前に
「個人情報の取り扱いについて」を必ずお読みください。
「個人情報の取り扱いについて」に同意いただいた場合は「上記にご同意の上 確認画面へ進む」のボタンをクリックしてください。
個人情報の取り扱いについて
皆さまが送付された個人情報はアットホーム(株)のサーバを経由し、お問い合わせ先の不動産会社にメールまたはFAXにて転送されるためアットホーム(株)にも保管されます。アットホーム(株)で保管された個人情報の取り扱いについては、【こちら】をご覧ください。
また、本画面でご記入いただいた個人情報は、お問い合わせ先の不動産会社でも保管します。 お問い合わせ先の不動産会社が保管する個人情報の取り扱いについては、不動産会社に直接お問い合わせください。
千葉県知事免許(11)第7424号 |
---|
- 交通:
- JR総武線/市川駅 【バス】12分 曽谷公民館 停歩2分
- 千葉県市川市曽谷4丁目3-5
- TEL:
- 047-372-2601
- FAX:
- 047-373-3747
- 所属団体:
- (一社)千葉県宅地建物取引業協会会員(公社)首都圏不動産公正取引協議会加盟
取引態様:仲介  - 00110725
|
- スマートフォンで
この不動産会社を見る

|
- 提携サイト等より掲載されている物件情報につきましては、不動産会社詳細情報にリンクされていないものがあります。
- 物件に関するお問合せは、物件詳細ページの「情報提供会社」に表示されている不動産会社へ直接お願いいたします。
- 間取図は、現況を優先させていただきます。
- 映像は物件の一部を撮影したものです。物件の契約にあたっての最終判断はご自身の判断に基づいて行ってください。
- 仲介手数料について

アットホームは物件情報の適正化に努めております。
内容に誤りがある場合にはこちらへご連絡ください。