広島県広島市西区東観音町(舟入町駅)の貸店舗:物件詳細
交通 所在地 |
駅徒歩 |
賃料 管理費等 |
敷金/保証金 礼金 |
使用部分面積 坪数/坪単価 |
物件種目 築年月 |
|
広島電鉄江波線/舟入町
広島県広島市西区東観音町
|
6分
|
22万円
-
|
3ヶ月 / なし
1ヶ月
|
94.20m²
28.49坪/0.7721万円
|
貸店舗・事務所
1998年3月(築27年10ヶ月)
|
|
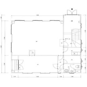
間取図
|
|
<
その他の画像
>
|
| 交通 | 広島電鉄江波線 舟入町駅 徒歩6分 |
|---|
| その他の交通 | 広島電鉄本線 天満町駅 徒歩8分 広島電鉄本線 小網町駅 徒歩8分 |
| 所在地 |
広島県広島市西区東観音町
|
| 物件種目 |
貸店舗・事務所 |
| 賃料 |
22万円 |
管理費等 |
- |
| 敷金 / 保証金 |
3ヶ月 / なし |
礼金 |
1ヶ月 |
| 敷引 |
- |
坪単価 |
0.7721万円 |
| 保証金償却 |
- |
権利金 |
- |
| 造作譲渡 |
- |
その他一時金 |
- |
| 維持費等 |
光熱費:44,000円/月、ゴミ代:2,500円/月 |
保険等 |
要 事業用物件用 |
| 使用部分面積 |
94.20m² |
坪数 |
28.49坪 |
| 築年月 |
1998年3月(築27年10ヶ月)
|
階建 / 階 |
3階建 / 1階 |
| 駐車場 |
有 16,500円/月(空き3台) |
バイク置き場 |
- |
| 駐輪場 |
- |
土地面積 |
- |
| 接道状況 |
-
|
用途地域 |
2種住居 |
| 間取り |
- |
建物構造 |
鉄骨造 |
| 建物名・部屋番号 |
|
| リフォーム履歴 |
- |
| リノベーション履歴 |
- |
| 特記事項 |
飲食店不可、1フロア1テナント |
| 備考 |
賃貸保証等:加入要(初回保証料:賃料の100% 更新:賃料の10%/年)
管理形態/管理員の勤務形態:-/-
2025年10月末退去予定 ①引渡し:現状渡し ②保証会社への加入必要
|
| エネルギー消費性能 |
- |
| 断熱性能 |
- |
| 目安光熱費 |
- |
| バス・トイレ |
専有部分にトイレあり |
| キッチン |
- |
| 設備・サービス |
エアコン2台以上、給湯 |
| その他 |
- |
| 契約期間 |
3年 |
条件等 |
- |
| 引渡可能時期 |
相談 |
現況 |
空 |
| 更新料 |
- |
物件番号 |
6969556546 |
| 情報公開日 |
2025年10月16日 |
次回更新予定日 |
2025年12月30日 |
| ケータイ用バーコード |
- スマートフォンでこの物件を見る
- スマートフォンからもこの物件をご覧になれます。
|
※「-」と表示されている項目については、情報提供会社にご確認ください。
| 周辺施設 |
OKONOMIYAKI華 |
| 距離 |
319m |
| 周辺施設 |
セブンイレブン広島東観音町北店 |
| 距離 |
332m |
| 周辺施設 |
ママチェーンカネホリ本店 |
| 距離 |
311m |
| 周辺施設 |
医療法人社団曙会シムラ病院 |
| 距離 |
489m |
ここから簡単にお問い合わせをすることができます。
(SSLでの暗号化での送信を希望されるお客さまは
こちら
よりお問い合わせください)
お問い合わせを行う前に
「個人情報の取り扱いについて」を必ずお読みください。
「個人情報の取り扱いについて」に同意いただいた場合は「上記にご同意の上 確認画面へ進む」のボタンをクリックしてください。
個人情報の取り扱いについて
皆さまが送付された個人情報はアットホーム(株)のサーバを経由し、お問い合わせ先の不動産会社にメールまたはFAXにて転送されるためアットホーム(株)にも保管されます。アットホーム(株)で保管された個人情報の取り扱いについては、【こちら】をご覧ください。
また、本画面でご記入いただいた個人情報は、お問い合わせ先の不動産会社でも保管します。 お問い合わせ先の不動産会社が保管する個人情報の取り扱いについては、不動産会社に直接お問い合わせください。
国土交通大臣免許(2)第9113号 |
|---|
- 交通:
- JR山陽本線/横川駅 徒歩10分
- 広島県広島市西区楠木町2丁目1-1
- TEL:
- 082-209-2688
- FAX:
- 082-554-2511
- 所属団体:
- (公社)広島県宅地建物取引業協会会員中国地区不動産公正取引協議会加盟
取引態様:仲介  - 50104235
|
- スマートフォンで
この不動産会社を見る

|
- 提携サイト等より掲載されている物件情報につきましては、不動産会社詳細情報にリンクされていないものがあります。
- 物件に関するお問合せは、物件詳細ページの「情報提供会社」に表示されている不動産会社へ直接お願いいたします。
- 間取図は、現況を優先させていただきます。
- 映像は物件の一部を撮影したものです。物件の契約にあたっての最終判断はご自身の判断に基づいて行ってください。
- 仲介手数料について

アットホームは物件情報の適正化に努めております。
内容に誤りがある場合にはこちらへご連絡ください。