福岡県福岡市中央区大名1丁目(天神駅)の貸店舗:物件詳細
交通 所在地 |
駅徒歩 |
賃料 管理費等 |
敷金/保証金 礼金 |
使用部分面積 坪数/坪単価 |
物件種目 築年月 |
|
地下鉄空港線/天神
福岡県福岡市中央区大名1丁目
|
10分
|
34.23万円
45,220円
|
6ヶ月 / なし
なし
|
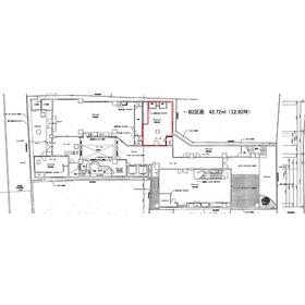
42.72m²
12.92坪/2.6489万円
|
貸店舗
1999年6月(築26年7ヶ月)
|
|
間取図
|
外観
|
その他の画像
|
| 交通 | 地下鉄空港線 天神駅 徒歩10分 |
|---|
| その他の交通 | 西鉄天神大牟田線 西鉄福岡(天神)駅 徒歩7分 地下鉄七隈線 天神南駅 徒歩9分 |
| 所在地 |
福岡県福岡市中央区大名1丁目
|
| 物件種目 |
貸店舗 |
| 賃料 |
34.23万円 |
管理費等 |
45,220円 |
| 敷金 / 保証金 |
6ヶ月 / なし |
礼金 |
なし |
| 敷引 |
- |
坪単価 |
2.6489万円 |
| 保証金償却 |
- |
権利金 |
- |
| 造作譲渡 |
- |
その他一時金 |
- |
| 維持費等 |
看板料(税込み):35,000円/月、ごみ処理費(税込み):2,000円/月 |
保険等 |
- |
| 使用部分面積 |
42.72m² |
坪数 |
12.92坪 |
| 築年月 |
1999年6月(築26年7ヶ月)
|
階建 / 階 |
5階建 / 1階 |
| 駐車場 |
無 |
バイク置き場 |
無 |
| 駐輪場 |
無 |
土地面積 |
- |
| 接道状況 |
-
|
用途地域 |
- |
| 間取り |
- |
建物構造 |
RC |
| アピールポイント |
業種応相談
ファサード、看板、コリドー(内廊下)など
2020年春大規模改修完了
国体道路と大名エリア(東小姓町通り)の通り抜け可能。 |
| 建物名・部屋番号 |
サウスサイドテラス B2 |
| リフォーム履歴 |
■外装:2020年3月 外壁 看板 ■共用部の大規模修繕工事:2020年3月 ファサード、看板、コリドーなど ※実施年月は最も古い履歴を表示 |
| リノベーション履歴 |
- |
| 特記事項 |
スケルトン、土日・祝日利用可、天井高2.5M以上 |
| 備考 |
賃貸保証等:加入要(保証会社による)
管理形態/管理員の勤務形態:-/-
業種応相談【月額坪単価※税抜き】賃料@26,500円 共益費@3,500円 看板使用料35,000円/月 ごみ処理費用2,000円~/月※業種により異なります
その他条件に関して柔軟に相談可能
|
| エネルギー消費性能 |
- |
| 断熱性能 |
- |
| 目安光熱費 |
- |
| バス・トイレ |
- |
| キッチン |
- |
| 設備・サービス |
天井高3.9m、建物間口2.7m、排煙設備あり、電気容量(電灯)5KVA、電気容量(動力)10KW |
| その他 |
エレベーター2基以上 |
| 契約期間 |
5年 |
条件等 |
定期借家 |
| 引渡可能時期 |
即時 |
現況 |
空 |
| 仲介手数料 |
不要 |
|
|
| 更新料 |
- |
物件番号 |
6971905796 |
| 情報公開日 |
2025年9月29日 |
次回更新予定日 |
2025年12月22日 |
| ケータイ用バーコード |
- スマートフォンでこの物件を見る
- スマートフォンからもこの物件をご覧になれます。
|
※「-」と表示されている項目については、情報提供会社にご確認ください。
ここから簡単にお問い合わせをすることができます。
(SSLでの暗号化での送信を希望されるお客さまは
こちら
よりお問い合わせください)
お問い合わせを行う前に
「個人情報の取り扱いについて」を必ずお読みください。
「個人情報の取り扱いについて」に同意いただいた場合は「上記にご同意の上 確認画面へ進む」のボタンをクリックしてください。
個人情報の取り扱いについて
皆さまが送付された個人情報はアットホーム(株)のサーバを経由し、お問い合わせ先の不動産会社にメールまたはFAXにて転送されるためアットホーム(株)にも保管されます。アットホーム(株)で保管された個人情報の取り扱いについては、【こちら】をご覧ください。
また、本画面でご記入いただいた個人情報は、お問い合わせ先の不動産会社でも保管します。 お問い合わせ先の不動産会社が保管する個人情報の取り扱いについては、不動産会社に直接お問い合わせください。
ファーストブラザーズキャピタル(株)東京都知事免許(4)第90107号 |
|---|
- 交通:
- JR山手線/東京駅
- 東京都千代田区丸の内2丁目4-1
- TEL:
- 03-5219-5645
- FAX:
- 03-3216-1803
取引態様:貸主 |
- 提携サイト等より掲載されている物件情報につきましては、不動産会社詳細情報にリンクされていないものがあります。
- 物件に関するお問合せは、物件詳細ページの「情報提供会社」に表示されている不動産会社へ直接お願いいたします。
- 間取図は、現況を優先させていただきます。
- 映像は物件の一部を撮影したものです。物件の契約にあたっての最終判断はご自身の判断に基づいて行ってください。
- 仲介手数料について

アットホームは物件情報の適正化に努めております。
内容に誤りがある場合にはこちらへご連絡ください。