埼玉県さいたま市大宮区宮町3丁目(大宮駅)の貸店舗:物件詳細
交通 所在地 |
駅徒歩 |
賃料 管理費等 |
敷金/保証金 礼金 |
使用部分面積 坪数/坪単価 |
物件種目 築年月 |
|
JR京浜東北線/大宮
埼玉県さいたま市大宮区宮町3丁目
|
7分
|
47.3万円
11,000円
|
なし / 387万円
1ヶ月
|
138.53m²
41.90坪/1.1288万円
|
貸店舗・事務所
1963年7月(築62年8ヶ月)
|
|
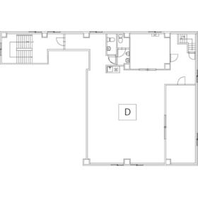
間取図
|
外観
|
その他の画像
|
| 交通 | JR京浜東北線 大宮駅 徒歩7分 |
|---|
| その他の交通 | 東武野田線 大宮駅 徒歩5分 埼玉新都市交通伊奈線 大宮駅 徒歩5分 |
| 所在地 |
埼玉県さいたま市大宮区宮町3丁目
|
| 物件種目 |
貸店舗・事務所 |
| 賃料 |
47.3万円 |
管理費等 |
11,000円 |
| 敷金 / 保証金 |
なし / 387万円 |
礼金 |
1ヶ月 |
| 敷引 |
- |
坪単価 |
1.1288万円 |
| 保証金償却 |
- |
権利金 |
- |
| 造作譲渡 |
- |
その他一時金 |
- |
| 維持費等 |
- |
保険等 |
要 3年 借家人賠償責任 |
| 使用部分面積 |
138.53m² |
坪数 |
41.90坪 |
| 築年月 |
1963年7月(築62年8ヶ月)
|
階建 / 階 |
2階建 / 2階 |
| 駐車場 |
無 |
バイク置き場 |
無 |
| 駐輪場 |
無 |
土地面積 |
- |
| 接道状況 |
-
|
用途地域 |
- |
| 間取り |
- |
建物構造 |
鉄骨・木造陸屋根 |
| アピールポイント |
※ブース(2箇所)、タイルカーペットについては残置物となります。
※エアコンに関しては残置物の為、メンテナンス、修理及び交換は借主負担となります。
美容室、飲食、トレーニングジム、その他同業種不可 定期借家 |
| 建物名・部屋番号 |
宮町HSビル 2F(D) |
| リフォーム履歴 |
■水回り:2017年11月 キッチン、トイレ ■内装:2017年11月 内装全面(床・壁・天井・建具) ■共用部の大規模修繕工事:2017年12月 階段部分 ※実施年月は最も古い履歴を表示 |
| リノベーション履歴 |
- |
| 特記事項 |
土日・祝日利用可、飲食店不可、角部屋 |
| 備考 |
賃貸保証等:加入要(初回保証料:賃料等総額の100%)
管理形態/管理員の勤務形態:-/-
※ブース(2箇所)、タイルカーペットについては残置物となります。
※エアコンに関しては残置物の為、メンテナンス、修理及び交換は借主負担となります。
美容室、飲食、トレーニングジム、その他同業種不可 定期借家
|
| エネルギー消費性能 |
- |
| 断熱性能 |
- |
| 目安光熱費 |
- |
| バス・トイレ |
専有部分に男女別トイレあり |
| キッチン |
- |
| 設備・サービス |
看板取付スペースあり |
| その他 |
- |
| 契約期間 |
3年 |
条件等 |
定期借家 |
| 引渡可能時期 |
2026年5月中旬予定 |
現況 |
居住中 |
| 更新料 |
- |
物件番号 |
6973211221 |
| 情報公開日 |
2025年11月21日 |
次回更新予定日 |
2026年3月13日 |
| ケータイ用バーコード |
- スマートフォンでこの物件を見る
- スマートフォンからもこの物件をご覧になれます。
|
※「-」と表示されている項目については、情報提供会社にご確認ください。
| 周辺施設 |
セブンイレブン大宮宮町4丁目店 |
| 距離 |
29m |
| 周辺施設 |
CoCo壱番屋大宮大栄橋店 |
| 距離 |
127m |
| 周辺施設 |
Can★Do大宮一番街通り店 |
| 距離 |
257m |
ここから簡単にお問い合わせをすることができます。
(SSLでの暗号化での送信を希望されるお客さまは
こちら
よりお問い合わせください)
お問い合わせを行う前に
「個人情報の取り扱いについて」を必ずお読みください。
「個人情報の取り扱いについて」に同意いただいた場合は「上記にご同意の上 確認画面へ進む」のボタンをクリックしてください。
個人情報の取り扱いについて
皆さまが送付された個人情報はアットホーム(株)のサーバを経由し、お問い合わせ先の不動産会社にメールまたはFAXにて転送されるためアットホーム(株)にも保管されます。アットホーム(株)で保管された個人情報の取り扱いについては、【こちら】をご覧ください。
また、本画面でご記入いただいた個人情報は、お問い合わせ先の不動産会社でも保管します。 お問い合わせ先の不動産会社が保管する個人情報の取り扱いについては、不動産会社に直接お問い合わせください。
埼玉県知事免許(13)第6931号 |
|---|
- 交通:
- 東武野田線/北大宮駅 徒歩7分
- 埼玉県さいたま市北区東大成町1丁目519-1
- TEL:
- 048-667-5511
- FAX:
- 048-666-1672
- 所属団体:
- (公社)全日本不動産協会会員(公社)首都圏不動産公正取引協議会加盟
取引態様:仲介  - 00750442
|
- スマートフォンで
この不動産会社を見る

|
- 提携サイト等より掲載されている物件情報につきましては、不動産会社詳細情報にリンクされていないものがあります。
- 物件に関するお問合せは、物件詳細ページの「情報提供会社」に表示されている不動産会社へ直接お願いいたします。
- 間取図は、現況を優先させていただきます。
- 映像は物件の一部を撮影したものです。物件の契約にあたっての最終判断はご自身の判断に基づいて行ってください。
- 仲介手数料について

アットホームは物件情報の適正化に努めております。
内容に誤りがある場合にはこちらへご連絡ください。