東京都八王子市明神町3丁目(京王八王子駅)の貸店舗:物件詳細
交通 所在地 |
駅徒歩 |
賃料 管理費等 |
敷金/保証金 礼金 |
使用部分面積 坪数/坪単価 |
物件種目 築年月 |
|
京王線/京王八王子
東京都八王子市明神町3丁目
|
4分
|
39万円
50,000円
|
1ヶ月 / 2ヶ月
2ヶ月
|
129.64m²
39.21坪/0.9945万円
|
貸店舗
2002年2月(築24年1ヶ月)
|
| 交通 | 京王線 京王八王子駅 徒歩4分 |
|---|
| その他の交通 | JR横浜線 八王子駅 徒歩9分 JR中央線 八王子駅 徒歩8分 |
| 所在地 |
東京都八王子市明神町3丁目
|
| 物件種目 |
貸店舗 |
| 賃料 |
39万円 |
管理費等 |
50,000円 |
| 敷金 / 保証金 |
1ヶ月 / 2ヶ月 |
礼金 |
2ヶ月 |
| 敷引 |
- |
坪単価 |
0.9945万円 |
| 保証金償却 |
解約時1ヶ月 |
権利金 |
- |
| 造作譲渡 |
造作譲渡無償 |
その他一時金 |
- |
| 維持費等 |
- |
保険等 |
要 2年 家財 |
| 使用部分面積 |
129.64m² |
坪数 |
39.21坪 |
| 築年月 |
2002年2月(築24年1ヶ月)
|
階建 / 階 |
6階建 / 1階 |
| 駐車場 |
- |
バイク置き場 |
- |
| 駐輪場 |
- |
土地面積 |
- |
| 接道状況 |
-
|
用途地域 |
- |
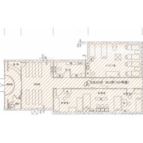
| 間取り |
- |
建物構造 |
RC |
| アピールポイント |
定期借家契約の場合は賃料値下げ交渉可能となります。
また、定期借家の場合は初期費用についても相談可能です。
定期借家契約期間は10年となります。 |
| 建物名・部屋番号 |
|
| リフォーム履歴 |
- |
| リノベーション履歴 |
- |
| 特記事項 |
居抜き、土日・祝日利用可、大型トラック搬入可、飲食店不可、制震構造、天井高2.5M以上 |
| 備考 |
賃貸保証等:加入要(保証金については、賃料の150%となります。)
管理形態/管理員の勤務形態:-/-
|
| エネルギー消費性能 |
- |
| 断熱性能 |
- |
| 目安光熱費 |
- |
| バス・トイレ |
トイレ、多機能トイレ |
| キッチン |
- |
| 設備・サービス |
看板取付スペースあり
エアコン2台以上、収納スペース、都市ガス、インターネット対応、光ファイバー |
| その他 |
エレベーター |
| 契約期間 |
3年 |
条件等 |
- |
| 引渡可能時期 |
即時 |
現況 |
空 |
| 更新料 |
新賃料 1ヶ月 |
物件番号 |
6975019485 |
| 情報公開日 |
2026年1月28日 |
次回更新予定日 |
2026年2月25日 |
| ケータイ用バーコード |
- スマートフォンでこの物件を見る
- スマートフォンからもこの物件をご覧になれます。
|
※「-」と表示されている項目については、情報提供会社にご確認ください。
ここから簡単にお問い合わせをすることができます。
(SSLでの暗号化での送信を希望されるお客さまは
こちら
よりお問い合わせください)
お問い合わせを行う前に
「個人情報の取り扱いについて」を必ずお読みください。
「個人情報の取り扱いについて」に同意いただいた場合は「上記にご同意の上 確認画面へ進む」のボタンをクリックしてください。
個人情報の取り扱いについて
皆さまが送付された個人情報はアットホーム(株)のサーバを経由し、お問い合わせ先の不動産会社にメールまたはFAXにて転送されるためアットホーム(株)にも保管されます。アットホーム(株)で保管された個人情報の取り扱いについては、【こちら】をご覧ください。
また、本画面でご記入いただいた個人情報は、お問い合わせ先の不動産会社でも保管します。 お問い合わせ先の不動産会社が保管する個人情報の取り扱いについては、不動産会社に直接お問い合わせください。
山梨県知事免許(5)第2146号 |
|---|
- 交通:
- 身延線/国母駅 徒歩10分
- 山梨県甲府市国母4丁目22-6 レジデンスカサイ102号
- TEL:
- 055-221-0320
- FAX:
- 055-221-0051
- 所属団体:
- (公社)全日本不動産協会会員(公社)首都圏不動産公正取引協議会加盟
取引態様:仲介  - 00017093
|
- スマートフォンで
この不動産会社を見る

|
- 提携サイト等より掲載されている物件情報につきましては、不動産会社詳細情報にリンクされていないものがあります。
- 物件に関するお問合せは、物件詳細ページの「情報提供会社」に表示されている不動産会社へ直接お願いいたします。
- 間取図は、現況を優先させていただきます。
- 映像は物件の一部を撮影したものです。物件の契約にあたっての最終判断はご自身の判断に基づいて行ってください。
- 仲介手数料について

アットホームは物件情報の適正化に努めております。
内容に誤りがある場合にはこちらへご連絡ください。