大阪府富田林市久野喜台2丁目(金剛駅)の貸店舗:物件詳細
交通 所在地 |
駅徒歩 |
賃料 管理費等 |
敷金/保証金 礼金 |
使用部分面積 坪数/坪単価 |
物件種目 築年月 |
|
南海高野線/金剛
大阪府富田林市久野喜台2丁目
|
5分
|
16.5万円
なし
|
300万円 / なし
なし
|
168.49m²
50.96坪/0.3238万円
|
住居付き貸店舗
2017年12月(築8年1ヶ月)
|
|
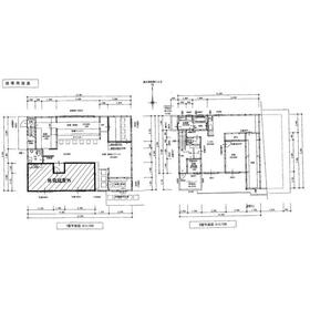
間取図
1階・2階平面図
|
外観
敷地内駐車4台可能
|
<
その他の画像
>
|
| 交通 | 南海高野線 金剛駅 徒歩5分 |
|---|
| その他の交通 | 南海高野線 大阪狭山市駅 徒歩12分 南海高野線 滝谷駅 徒歩29分 |
| 所在地 |
大阪府富田林市久野喜台2丁目
|
| 物件種目 |
住居付き貸店舗 |
| 賃料 |
16.5万円 |
管理費等 |
なし |
| 敷金 / 保証金 |
300万円 / なし |
礼金 |
なし |
| 敷引 |
- |
坪単価 |
0.3238万円 |
| 保証金償却 |
- |
権利金 |
- |
| 造作譲渡 |
- |
その他一時金 |
なし |
| 維持費等 |
- |
保険等 |
要 1年 指定 |
| 使用部分面積 |
168.49m² |
坪数 |
50.96坪 |
| 築年月 |
2017年12月(築8年1ヶ月)
|
階建 / 階 |
2階建 / 1階~2階部分 |
| 駐車場 |
有 無料(空き4台) 別途近隣駐車場3台契約可能 |
バイク置き場 |
- |
| 駐輪場 |
- |
土地面積 |
300.90m²(公簿) |
| 接道状況 |
東 16.0m 公道 接面12.8m
|
用途地域 |
1種低層 |
| 間取り |
- |
建物構造 |
木造 |
| アピールポイント |
◎金剛駅徒歩5分
◎高級和食店仕様
◎築後未入居
◎厨房機器類完備(冷蔵・冷凍・製氷機、七輪フード、ワインセラー等)
◎高級食器類あり
◎無垢材カウンター
◎敷地内駐車場4台
◎カウンター10席(内4席個室型)、テーブル10席
◎住居部分1SLDK(築後未入居) |
| 建物名・部屋番号 |
金剛駅5分 本格和食店築後未使用 店舗部分約28坪 駐車4台+α |
| リフォーム履歴 |
- |
| リノベーション履歴 |
- |
| 特記事項 |
居抜き、土日・祝日利用可、飲食店可 |
| 備考 |
賃貸保証等:加入要(指定保証会社加入要)
管理形態/管理員の勤務形態:-/-
バルコニー:5.67m²
主要採光面:南向き
・間取図斜線部分は賃貸面積に含みません。
・業態は和食・日本料理店に限ります。
・貸主の入居者審査があります。
・日本料理5年以上の経験者のみ。
|
| エネルギー消費性能 |
- |
| 断熱性能 |
- |
| 目安光熱費 |
- |
| バス・トイレ |
バス・トイレ別、追焚機能、トイレ2ヶ所 |
| キッチン |
- |
| 設備・サービス |
空調機あり、換気口あり、排煙設備あり、厨房防水あり、排水設備あり
エアコン2台以上、収納スペース、室内洗濯機置場、給湯、都市ガス、動力あり、ビルトインエアコン、人感センサー付照明、光ファイバー |
| その他 |
- |
| 契約期間 |
1年 |
条件等 |
- |
| 引渡可能時期 |
即時 |
現況 |
空 |
| 仲介手数料 |
1ヶ月 |
|
|
| 更新料 |
なし |
物件番号 |
6975812279 |
| 情報公開日 |
2024年11月28日 |
次回更新予定日 |
2025年12月15日 |
| ケータイ用バーコード |
- スマートフォンでこの物件を見る
- スマートフォンからもこの物件をご覧になれます。
|
※「-」と表示されている項目については、情報提供会社にご確認ください。
| 周辺施設 |
ファミリーマート大阪金剛駅前店 |
| 距離 |
581m |
| 周辺施設 |
ディスカウントドラッグコスモス金剛店 |
| 距離 |
901m |
ここから簡単にお問い合わせをすることができます。
(SSLでの暗号化での送信を希望されるお客さまは
こちら
よりお問い合わせください)
お問い合わせを行う前に
「個人情報の取り扱いについて」を必ずお読みください。
「個人情報の取り扱いについて」に同意いただいた場合は「上記にご同意の上 確認画面へ進む」のボタンをクリックしてください。
個人情報の取り扱いについて
皆さまが送付された個人情報はアットホーム(株)のサーバを経由し、お問い合わせ先の不動産会社にメールまたはFAXにて転送されるためアットホーム(株)にも保管されます。アットホーム(株)で保管された個人情報の取り扱いについては、【こちら】をご覧ください。
また、本画面でご記入いただいた個人情報は、お問い合わせ先の不動産会社でも保管します。 お問い合わせ先の不動産会社が保管する個人情報の取り扱いについては、不動産会社に直接お問い合わせください。
大阪府知事免許(2)第60093号 |
|---|
- 交通:
- JR阪和線/堺市駅 徒歩3分
- 大阪府堺市北区北長尾町3丁5-4-201
- TEL:
- 072-260-4613
- FAX:
- 072-260-4612
- 所属団体:
- (公社)全日本不動産協会会員(公社)近畿地区不動産公正取引協議会加盟
取引態様:仲介  - 50102737
|
- スマートフォンで
この不動産会社を見る

|
- 提携サイト等より掲載されている物件情報につきましては、不動産会社詳細情報にリンクされていないものがあります。
- 物件に関するお問合せは、物件詳細ページの「情報提供会社」に表示されている不動産会社へ直接お願いいたします。
- 間取図は、現況を優先させていただきます。
- 映像は物件の一部を撮影したものです。物件の契約にあたっての最終判断はご自身の判断に基づいて行ってください。
- 仲介手数料について

アットホームは物件情報の適正化に努めております。
内容に誤りがある場合にはこちらへご連絡ください。