宮城県仙台市青葉区国分町2丁目(勾当台公園駅)の貸店舗:物件詳細
交通 所在地 |
駅徒歩 |
賃料 管理費等 |
敷金/保証金 礼金 |
使用部分面積 坪数/坪単価 |
物件種目 築年月 |
|
仙台市南北線/勾当台公園
宮城県仙台市青葉区国分町2丁目
|
7分
|
32.604万円
54,340円
|
120万円 / なし
なし
|
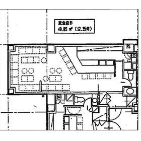
40.85m²
12.35坪/2.6385万円
|
貸店舗(建物一括)
1998年10月(築27年6ヶ月)
|
|
間取図
|
|
その他の画像
|
| 交通 | 仙台市南北線 勾当台公園駅 徒歩7分 |
|---|
| その他の交通 | 仙台市東西線 青葉通一番町駅 徒歩9分 JR仙石線 あおば通駅 徒歩15分 |
| 所在地 |
宮城県仙台市青葉区国分町2丁目
|
| 物件種目 |
貸店舗(建物一括) |
| 賃料 |
32.604万円 |
管理費等 |
54,340円 |
| 敷金 / 保証金 |
120万円 / なし |
礼金 |
なし |
| 敷引 |
- |
坪単価 |
2.6385万円 |
| 保証金償却 |
- |
権利金 |
- |
| 造作譲渡 |
- |
その他一時金 |
看板製作費(制作時):148,500円、借家人賠償責任保険:13,760円 |
| 維持費等 |
町内会費:300円/月、保守・点検料:3,300円/月 |
保険等 |
要 1年 13,830円 |
| 使用部分面積 |
40.85m² |
坪数 |
12.35坪 |
| 築年月 |
1998年10月(築27年6ヶ月)
|
階建 / 階 |
8階建 / 3階 |
| 駐車場 |
無 |
バイク置き場 |
無 |
| 駐輪場 |
無 |
土地面積 |
- |
| 接道状況 |
-
|
用途地域 |
- |
| 間取り |
- |
建物構造 |
鉄骨造 |
| 建物名・部屋番号 |
|
| リフォーム履歴 |
- |
| リノベーション履歴 |
- |
| 特記事項 |
飲食店可 |
| 備考 |
賃貸保証等:加入要(初回保証料:月額賃料の1ヶ月相当額)
管理形態/管理員の勤務形態:-/-
※エアコン清掃(年2回)、高圧洗浄(年1回)はテナント様ご負担
|
| エネルギー消費性能 |
- |
| 断熱性能 |
- |
| 目安光熱費 |
- |
| バス・トイレ |
- |
| キッチン |
- |
| 設備・サービス |
- |
| その他 |
- |
| 契約期間 |
3年 |
条件等 |
定期借家 |
| 引渡可能時期 |
即時 |
現況 |
空 |
| 仲介手数料 |
1ヶ月 |
|
|
| 更新料 |
なし |
物件番号 |
6976716945 |
| 情報公開日 |
2026年1月6日 |
次回更新予定日 |
2026年3月31日 |
| ケータイ用バーコード |
- スマートフォンでこの物件を見る
- スマートフォンからもこの物件をご覧になれます。
|
※「-」と表示されている項目については、情報提供会社にご確認ください。
ここから簡単にお問い合わせをすることができます。
(SSLでの暗号化での送信を希望されるお客さまは
こちら
よりお問い合わせください)
お問い合わせを行う前に
「個人情報の取り扱いについて」を必ずお読みください。
「個人情報の取り扱いについて」に同意いただいた場合は「上記にご同意の上 確認画面へ進む」のボタンをクリックしてください。
個人情報の取り扱いについて
皆さまが送付された個人情報はアットホーム(株)のサーバを経由し、お問い合わせ先の不動産会社にメールまたはFAXにて転送されるためアットホーム(株)にも保管されます。アットホーム(株)で保管された個人情報の取り扱いについては、【こちら】をご覧ください。
また、本画面でご記入いただいた個人情報は、お問い合わせ先の不動産会社でも保管します。 お問い合わせ先の不動産会社が保管する個人情報の取り扱いについては、不動産会社に直接お問い合わせください。
宮城県知事免許(16)第142号 |
|---|
- 交通:
- 仙台市南北線/広瀬通駅 徒歩8分
- 宮城県仙台市青葉区国分町1丁目8-14 仙台協立第二ビル2F
- TEL:
- 0120-22-7496
- FAX:
- 022-227-3066
- 所属団体:
- (公社)宮城県宅地建物取引業協会会員東北地区不動産公正取引協議会加盟
取引態様:仲介  - 20001380
|
- スマートフォンで
この不動産会社を見る

|
- 提携サイト等より掲載されている物件情報につきましては、不動産会社詳細情報にリンクされていないものがあります。
- 物件に関するお問合せは、物件詳細ページの「情報提供会社」に表示されている不動産会社へ直接お願いいたします。
- 間取図は、現況を優先させていただきます。
- 映像は物件の一部を撮影したものです。物件の契約にあたっての最終判断はご自身の判断に基づいて行ってください。
- 仲介手数料について

アットホームは物件情報の適正化に努めております。
内容に誤りがある場合にはこちらへご連絡ください。