東京都新宿区新宿2丁目(新宿御苑前駅)の貸店舗:物件詳細
交通 所在地 |
駅徒歩 |
賃料 管理費等 |
敷金/保証金 礼金 |
使用部分面積 坪数/坪単価 |
物件種目 築年月 |
|
東京メトロ丸ノ内線/新宿御苑前
東京都新宿区新宿2丁目
|
1分
|
171.6万円
なし
|
なし / 6ヶ月
1ヶ月
|
127.91m²
38.69坪/4.435万円
|
貸店舗
2021年2月(築5年4ヶ月)
|
|
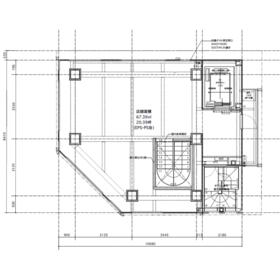
間取図
1F※2Fは別画像あり
|
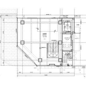
間取図
2F※1Fは別画像あり
|
その他の画像
|
| 交通 | 東京メトロ丸ノ内線 新宿御苑前駅 徒歩1分 |
|---|
| その他の交通 | 東京メトロ丸ノ内線 新宿三丁目駅 徒歩6分 JR山手線 新宿駅 徒歩12分 |
| 所在地 |
東京都新宿区新宿2丁目
|
| 物件種目 |
貸店舗 |
| 賃料 |
171.6万円 |
管理費等 |
なし |
| 敷金 / 保証金 |
なし / 6ヶ月 |
礼金 |
1ヶ月 |
| 敷引 |
- |
坪単価 |
4.435万円 |
| 保証金償却 |
解約時2ヶ月 |
権利金 |
- |
| 造作譲渡 |
造作譲渡無償 |
その他一時金 |
ゴミ回収書類作成費:3,300円 |
| 維持費等 |
ゴミ回収費用:11,000円/月 |
保険等 |
要 5年 ※別途見積もり |
| 使用部分面積 |
127.91m² |
坪数 |
38.69坪 |
| 築年月 |
2021年2月(築5年4ヶ月)
|
階建 / 階 |
12階建 / 1階~2階部分 |
| 駐車場 |
無 |
バイク置き場 |
無 |
| 駐輪場 |
無 |
土地面積 |
- |
| 接道状況 |
-
|
用途地域 |
商業地域 |
| 間取り |
- |
建物構造 |
鉄骨造 |
| アピールポイント |
1フロア1テナント!開業・支店開設・移転をお考えの方は要注目!弊社管理物件です! |
| 建物名・部屋番号 |
AOIHOUSESHINJUKUビル |
| リフォーム履歴 |
- |
| リノベーション履歴 |
- |
| 特記事項 |
居抜き、スケルトン、24時間利用可、土日・祝日利用可、飲食店可、1フロア1テナント、角部屋、天井高2.5M以上、保証人不要 |
| 備考 |
賃貸保証等:加入要(月額賃料等の1ヶ月分)
管理形態/管理員の勤務形態:-/-
主要採光面:南向き
|
| エネルギー消費性能 |
- |
| 断熱性能 |
- |
| 目安光熱費 |
- |
| バス・トイレ |
トイレ |
| キッチン |
- |
| 設備・サービス |
空調機あり、排煙設備あり、排水設備あり
エアコン2台以上 |
| その他 |
エレベーター |
| 契約期間 |
5年 |
条件等 |
定期借家 |
| 引渡可能時期 |
相談 |
現況 |
空 |
| 適格請求書発行 |
可
|
| 更新料 |
- |
物件番号 |
6976801699 |
| 情報公開日 |
2025年1月14日 |
次回更新予定日 |
2026年5月10日 |
| ケータイ用バーコード |
- スマートフォンでこの物件を見る
- スマートフォンからもこの物件をご覧になれます。
|
※「-」と表示されている項目については、情報提供会社にご確認ください。
ここから簡単にお問い合わせをすることができます。
(SSLでの暗号化での送信を希望されるお客さまは
こちら
よりお問い合わせください)
お問い合わせを行う前に
「個人情報の取り扱いについて」を必ずお読みください。
「個人情報の取り扱いについて」に同意いただいた場合は「上記にご同意の上 確認画面へ進む」のボタンをクリックしてください。
個人情報の取り扱いについて
皆さまが送付された個人情報はアットホーム(株)のサーバを経由し、お問い合わせ先の不動産会社にメールまたはFAXにて転送されるためアットホーム(株)にも保管されます。アットホーム(株)で保管された個人情報の取り扱いについては、【こちら】をご覧ください。
また、本画面でご記入いただいた個人情報は、お問い合わせ先の不動産会社でも保管します。 お問い合わせ先の不動産会社が保管する個人情報の取り扱いについては、不動産会社に直接お問い合わせください。
東京都知事免許(4)第89536号 |
|---|
- 交通:
- 西武新宿線/野方駅 徒歩2分
- 東京都中野区野方5丁目18-13
- TEL:
- 03-5364-5506
- FAX:
- 03-5364-5507
- 所属団体:
- (公社)東京都宅地建物取引業協会会員(公社)首都圏不動産公正取引協議会加盟
取引態様:仲介  - 00019601
|
- スマートフォンで
この不動産会社を見る

|
- 提携サイト等より掲載されている物件情報につきましては、不動産会社詳細情報にリンクされていないものがあります。
- 物件に関するお問合せは、物件詳細ページの「情報提供会社」に表示されている不動産会社へ直接お願いいたします。
- 間取図は、現況を優先させていただきます。
- 映像は物件の一部を撮影したものです。物件の契約にあたっての最終判断はご自身の判断に基づいて行ってください。
- 仲介手数料について

アットホームは物件情報の適正化に努めております。
内容に誤りがある場合にはこちらへご連絡ください。