埼玉県川口市並木3丁目(西川口駅)の貸店舗:物件詳細
交通 所在地 |
駅徒歩 |
賃料 管理費等 |
敷金/保証金 礼金 |
使用部分面積 坪数/坪単価 |
物件種目 築年月 |
|
JR京浜東北線/西川口
埼玉県川口市並木3丁目
|
4分
|
64.5万円
55,000円
|
3ヶ月 / なし
1ヶ月
|
234.20m²
70.84坪/0.9105万円
|
貸店舗・事務所
1997年4月(築29年1ヶ月)
|
|
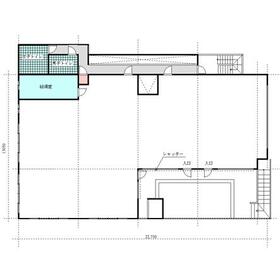
間取図
|
外観
|
その他の画像
|
| 交通 | JR京浜東北線 西川口駅 徒歩4分 |
|---|
| その他の交通 | JR京浜東北線 蕨駅 徒歩24分 |
| 所在地 |
埼玉県川口市並木3丁目
|
| 物件種目 |
貸店舗・事務所 |
| 賃料 |
64.5万円 |
管理費等 |
55,000円 |
| 敷金 / 保証金 |
3ヶ月 / なし |
礼金 |
1ヶ月 |
| 敷引 |
- |
坪単価 |
0.9105万円 |
| 保証金償却 |
- |
権利金 |
- |
| 造作譲渡 |
- |
その他一時金 |
- |
| 維持費等 |
- |
保険等 |
- |
| クレジットカード決済 |
初期費用可 |
| 使用部分面積 |
234.20m² |
坪数 |
70.84坪 |
| 築年月 |
1997年4月(築29年1ヶ月)
|
階建 / 階 |
9階建 / 2階 |
| 駐車場 |
- |
バイク置き場 |
- |
| 駐輪場 |
- |
土地面積 |
- |
| 接道状況 |
-
|
用途地域 |
- |
| 間取り |
- |
建物構造 |
SRC |
| 建物名・部屋番号 |
|
| リフォーム履歴 |
- |
| リノベーション履歴 |
- |
| 特記事項 |
- |
| 備考 |
賃貸保証等:加入要(100~)
管理形態/管理員の勤務形態:-/-
※再契約可能型定期借家
※コスモプレイス並木専用修繕特約有
※退去時、賃貸借契約締結時の状態に復す。
※一度も再契約手続きを行わず解約・契約解除した場合、短期解約違約金として賃料の1ヵ月分を貸主に支払うこと。
※近隣住民及び本物件使用者の騒音等、当事者間のトラブルは当事者同士が誠意を以って解決すること。尚、管理会社及び貸主は一切関与しないこととする。
※エントランス部の排水溝清掃は借主側にて行って下さい
※トイレ・給湯室の修理・メンテは借主側にて行って下さい
|
| エネルギー消費性能 |
- |
| 断熱性能 |
- |
| 目安光熱費 |
- |
| バス・トイレ |
- |
| キッチン |
- |
| 設備・サービス |
- |
| その他 |
エレベーター |
| 契約期間 |
3年 |
条件等 |
定期借家 |
| 引渡可能時期 |
指定有り2026年5月1日 |
現況 |
居住中 |
| 更新料 |
- |
物件番号 |
6979205673 |
| 情報公開日 |
2026年2月22日 |
次回更新予定日 |
2026年5月2日 |
| ケータイ用バーコード |
- スマートフォンでこの物件を見る
- スマートフォンからもこの物件をご覧になれます。
|
※「-」と表示されている項目については、情報提供会社にご確認ください。
| 周辺施設 |
ファミリーマート西川口東口店 |
| 距離 |
133m |
ここから簡単にお問い合わせをすることができます。
(SSLでの暗号化での送信を希望されるお客さまは
こちら
よりお問い合わせください)
お問い合わせを行う前に
「個人情報の取り扱いについて」を必ずお読みください。
「個人情報の取り扱いについて」に同意いただいた場合は「上記にご同意の上 確認画面へ進む」のボタンをクリックしてください。
個人情報の取り扱いについて
皆さまが送付された個人情報はアットホーム(株)のサーバを経由し、お問い合わせ先の不動産会社にメールまたはFAXにて転送されるためアットホーム(株)にも保管されます。アットホーム(株)で保管された個人情報の取り扱いについては、【こちら】をご覧ください。
また、本画面でご記入いただいた個人情報は、お問い合わせ先の不動産会社でも保管します。 お問い合わせ先の不動産会社が保管する個人情報の取り扱いについては、不動産会社に直接お問い合わせください。
埼玉県知事免許(6)第18700号 |
|---|
- 交通:
- JR京浜東北線/西川口駅 徒歩3分
- 埼玉県川口市並木3丁目10-12 あくーるハイツ並木
- TEL:
- 048-240-6750
- FAX:
- 048-240-6751
- 所属団体:
- (公社)埼玉県宅地建物取引業協会会員(公社)首都圏不動産公正取引協議会加盟
取引態様:仲介  - 00130782
|
- スマートフォンで
この不動産会社を見る

|
- 提携サイト等より掲載されている物件情報につきましては、不動産会社詳細情報にリンクされていないものがあります。
- 物件に関するお問合せは、物件詳細ページの「情報提供会社」に表示されている不動産会社へ直接お願いいたします。
- 間取図は、現況を優先させていただきます。
- 映像は物件の一部を撮影したものです。物件の契約にあたっての最終判断はご自身の判断に基づいて行ってください。
- 仲介手数料について

アットホームは物件情報の適正化に努めております。
内容に誤りがある場合にはこちらへご連絡ください。