東京都中央区築地4丁目(東銀座駅)の貸店舗:物件詳細
交通 所在地 |
駅徒歩 |
賃料 管理費等 |
敷金/保証金 礼金 |
使用部分面積 坪数/坪単価 |
物件種目 築年月 |
|
東京メトロ日比谷線/東銀座
東京都中央区築地4丁目
|
2分
|
437.6万円
833,536円
|
なし / 12ヶ月
なし
|
626.24m²
189.43坪/2.3101万円
|
貸店舗・事務所
1973年10月(築52年1ヶ月)
|
|
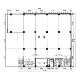
間取図
|
|
その他の画像
|
| 交通 | 東京メトロ日比谷線 東銀座駅 徒歩2分 |
|---|
| その他の交通 | 都営浅草線 東銀座駅 徒歩2分 東京メトロ日比谷線 築地駅 徒歩3分 |
| 所在地 |
東京都中央区築地4丁目
|
| 物件種目 |
貸店舗・事務所 |
| 賃料 |
437.6万円 |
管理費等 |
833,536円 |
| 敷金 / 保証金 |
なし / 12ヶ月 |
礼金 |
なし |
| 敷引 |
- |
坪単価 |
2.3101万円 |
| 保証金償却 |
- |
権利金 |
- |
| 造作譲渡 |
- |
その他一時金 |
- |
| 維持費等 |
- |
保険等 |
要 火災 |
| 使用部分面積 |
626.24m² |
坪数 |
189.43坪 |
| 築年月 |
1973年10月(築52年1ヶ月)
|
階建 / 階 |
地上9階地下1階建 / 8階 |
| 駐車場 |
- |
バイク置き場 |
- |
| 駐輪場 |
- |
土地面積 |
- |
| 接道状況 |
-
|
用途地域 |
- |
| 間取り |
- |
建物構造 |
SRC |
| 建物名・部屋番号 |
銀座大野ビル 8階 |
| リフォーム履歴 |
- |
| リノベーション履歴 |
- |
| 特記事項 |
24時間利用可、土曜日利用可、土日・祝日利用可、有人警備、OAフロア、飲食店不可、1フロア1テナント、24時間セキュリティー、耐震構造(新耐震基準)、天井高2.5M以上 |
| 備考 |
賃貸保証等:加入要(別途保証委託料要)
管理形態/管理員の勤務形態:-/-
※2014年12月新耐震基準対応工事完了
※天井高:2,470㎜
※床仕様:OAフロア(50㎜)
※夜間オートロック:23時~5時(セキュリティーカードにて入館)
※契約期間2年経過後は6ヶ月前の通知で解約可能
※共用部で使用の水道料は共益費に含む。電気代別途
※電気容量:50VA/㎡
※ロールスクリーンあり
※1階喫煙スペース有り
|
| エネルギー消費性能 |
- |
| 断熱性能 |
- |
| 目安光熱費 |
- |
| バス・トイレ |
トイレ2ヶ所、共用部分に男女別トイレあり |
| キッチン |
- |
| 設備・サービス |
空調機あり
個別空調、防犯カメラ、給湯、エアコン、暖房、冷房、光ファイバー |
| その他 |
施設内喫煙所、エレベーター2基以上、車寄せスペース、エレベーター |
| 契約期間 |
10年 |
条件等 |
定期借家 |
| 引渡可能時期 |
即時 |
現況 |
空 |
| 仲介手数料 |
1ヶ月 |
|
|
| 更新料 |
なし |
物件番号 |
6979871430 |
| 情報公開日 |
2025年6月23日 |
次回更新予定日 |
2025年10月28日 |
| ケータイ用バーコード |
- スマートフォンでこの物件を見る
- スマートフォンからもこの物件をご覧になれます。
|
※「-」と表示されている項目については、情報提供会社にご確認ください。
| 周辺施設 |
ナチュラルローソン築地東劇ビル店 |
| 距離 |
79m |
| 周辺施設 |
スターバックスコーヒー東銀座店 |
| 距離 |
220m |
ここから簡単にお問い合わせをすることができます。
(SSLでの暗号化での送信を希望されるお客さまは
こちら
よりお問い合わせください)
お問い合わせを行う前に
「個人情報の取り扱いについて」を必ずお読みください。
「個人情報の取り扱いについて」に同意いただいた場合は「上記にご同意の上 確認画面へ進む」のボタンをクリックしてください。
個人情報の取り扱いについて
皆さまが送付された個人情報はアットホーム(株)のサーバを経由し、お問い合わせ先の不動産会社にメールまたはFAXにて転送されるためアットホーム(株)にも保管されます。アットホーム(株)で保管された個人情報の取り扱いについては、【こちら】をご覧ください。
また、本画面でご記入いただいた個人情報は、お問い合わせ先の不動産会社でも保管します。 お問い合わせ先の不動産会社が保管する個人情報の取り扱いについては、不動産会社に直接お問い合わせください。
東京都知事免許(5)第79601号 |
|---|
- 交通:
- 東京メトロ銀座線/京橋駅 徒歩1分
- 東京都中央区京橋3丁目6-1 秋葉ビル1階
- TEL:
- 03-3535-8666
- FAX:
- 03-3535-8686
- 所属団体:
- (公社)全日本不動産協会会員(一社)不動産協会会員(公社)首都圏不動産公正取引協議会加盟
取引態様:仲介  - 00013100
|
- スマートフォンで
この不動産会社を見る

|
- 提携サイト等より掲載されている物件情報につきましては、不動産会社詳細情報にリンクされていないものがあります。
- 物件に関するお問合せは、物件詳細ページの「情報提供会社」に表示されている不動産会社へ直接お願いいたします。
- 間取図は、現況を優先させていただきます。
- 映像は物件の一部を撮影したものです。物件の契約にあたっての最終判断はご自身の判断に基づいて行ってください。
- 仲介手数料について

アットホームは物件情報の適正化に努めております。
内容に誤りがある場合にはこちらへご連絡ください。