東京都杉並区西荻南3丁目(西荻窪駅)の貸店舗:物件詳細
交通 所在地 |
駅徒歩 |
賃料 管理費等 |
敷金/保証金 礼金 |
使用部分面積 坪数/坪単価 |
物件種目 築年月 |
|
JR総武線/西荻窪
東京都杉並区西荻南3丁目
|
1分
|
93.25万円
-
|
なし / 6ヶ月
1ヶ月
|
112.13m²
33.91坪/2.7492万円
|
貸店舗・事務所
1991年9月(築34年9ヶ月)
|
|
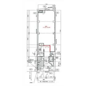
間取図
|
|
その他の画像
|
| 交通 | JR総武線 西荻窪駅 徒歩1分 |
|---|
| その他の交通 | JR中央線 西荻窪駅 徒歩1分 東京メトロ丸ノ内線 荻窪駅 徒歩20分 |
| 所在地 |
東京都杉並区西荻南3丁目
|
| 物件種目 |
貸店舗・事務所 |
| 賃料 |
93.25万円 |
管理費等 |
- |
| 敷金 / 保証金 |
なし / 6ヶ月 |
礼金 |
1ヶ月 |
| 敷引 |
- |
坪単価 |
2.7492万円 |
| 保証金償却 |
- |
権利金 |
- |
| 造作譲渡 |
- |
その他一時金 |
- |
| 維持費等 |
- |
保険等 |
要 指定火災 |
| 使用部分面積 |
112.13m² |
坪数 |
33.91坪 |
| 築年月 |
1991年9月(築34年9ヶ月)
|
階建 / 階 |
地上7階地下1階建 / 1階 |
| 駐車場 |
- |
バイク置き場 |
- |
| 駐輪場 |
- |
土地面積 |
- |
| 接道状況 |
-
|
用途地域 |
- |
| 間取り |
- |
建物構造 |
SRC |
| アピールポイント |
駅前立地!1階+2階一括貸し可。
フリーレント6カ月キャンペーン中です!
この機会に是非お問合せ下さい。 |
| 建物名・部屋番号 |
FESTAE西荻窪ビル 1F |
| リフォーム履歴 |
- |
| リノベーション履歴 |
2024年4月 内外装大規模修繕 ※実施年月は最も古い履歴を表示 |
| 特記事項 |
24時間利用可、土日・祝日利用可、飲食店可、フリーレント、1フロア1テナント、天井高2.5M以上 |
| 備考 |
賃貸保証等:加入要(指定保証会社)
管理形態/管理員の勤務形態:-/-
フリーレント:6ヶ月
大規模修繕済みの綺麗なビルです。
契約期間相談可。
再契約相談可。
|
| エネルギー消費性能 |
- |
| 断熱性能 |
- |
| 目安光熱費 |
- |
| バス・トイレ |
- |
| キッチン |
- |
| 設備・サービス |
防犯カメラ |
| その他 |
エレベーター |
| 契約期間 |
7年 |
条件等 |
定期借家 |
| 引渡可能時期 |
即時 |
現況 |
空 |
| 仲介手数料 |
1ヶ月 |
|
|
| 更新料 |
- |
物件番号 |
6981072375 |
| 情報公開日 |
2025年8月18日 |
次回更新予定日 |
2026年5月11日 |
| ケータイ用バーコード |
- スマートフォンでこの物件を見る
- スマートフォンからもこの物件をご覧になれます。
|
※「-」と表示されている項目については、情報提供会社にご確認ください。
ここから簡単にお問い合わせをすることができます。
(SSLでの暗号化での送信を希望されるお客さまは
こちら
よりお問い合わせください)
お問い合わせを行う前に
「個人情報の取り扱いについて」を必ずお読みください。
「個人情報の取り扱いについて」に同意いただいた場合は「上記にご同意の上 確認画面へ進む」のボタンをクリックしてください。
個人情報の取り扱いについて
皆さまが送付された個人情報はアットホーム(株)のサーバを経由し、お問い合わせ先の不動産会社にメールまたはFAXにて転送されるためアットホーム(株)にも保管されます。アットホーム(株)で保管された個人情報の取り扱いについては、【こちら】をご覧ください。
また、本画面でご記入いただいた個人情報は、お問い合わせ先の不動産会社でも保管します。 お問い合わせ先の不動産会社が保管する個人情報の取り扱いについては、不動産会社に直接お問い合わせください。
東京都知事免許(2)第103764号 |
|---|
- 交通:
- 東京メトロ銀座線/表参道駅 徒歩8分
- 東京都港区南青山4丁目2-4 シャトー青山第3 1F
- TEL:
- 03-6805-1142
- FAX:
- 03-6805-1587
- 所属団体:
- (公社)東京都宅地建物取引業協会会員(公社)首都圏不動産公正取引協議会加盟
取引態様:仲介  - 00266892
|
- スマートフォンで
この不動産会社を見る

|
- 提携サイト等より掲載されている物件情報につきましては、不動産会社詳細情報にリンクされていないものがあります。
- 物件に関するお問合せは、物件詳細ページの「情報提供会社」に表示されている不動産会社へ直接お願いいたします。
- 間取図は、現況を優先させていただきます。
- 映像は物件の一部を撮影したものです。物件の契約にあたっての最終判断はご自身の判断に基づいて行ってください。
- 仲介手数料について

アットホームは物件情報の適正化に努めております。
内容に誤りがある場合にはこちらへご連絡ください。