愛知県名古屋市中区丸の内3丁目(久屋大通駅)の貸店舗:物件詳細
交通 所在地 |
駅徒歩 |
賃料 管理費等 |
敷金/保証金 礼金 |
使用部分面積 坪数/坪単価 |
物件種目 築年月 |
名古屋市桜通線/久屋大通
愛知県名古屋市中区丸の内3丁目
|
5分
|
27.5万円
なし
|
10ヶ月 / なし
なし
|
64.46m²
19.49坪/1.4104万円
|
貸店舗
1988年3月(築37年8ヶ月)
|
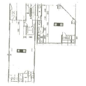
間取図
|
外観
|
その他の画像
|
交通 | 名古屋市桜通線 久屋大通駅 徒歩5分 |
---|
その他の交通 | 名古屋市名城線 名古屋城駅 徒歩10分 名古屋市東山線 栄駅 徒歩10分 |
所在地 |
愛知県名古屋市中区丸の内3丁目
|
物件種目 |
貸店舗 |
賃料 |
27.5万円 |
管理費等 |
なし |
敷金 / 保証金 |
10ヶ月 / なし |
礼金 |
なし |
敷引 |
50% |
坪単価 |
1.4104万円 |
保証金償却 |
- |
権利金 |
- |
造作譲渡 |
- |
その他一時金 |
- |
維持費等 |
- |
保険等 |
要 |
使用部分面積 |
64.46m² |
坪数 |
19.49坪 |
築年月 |
1988年3月(築37年8ヶ月)
|
階建 / 階 |
8階建 / 7階 |
駐車場 |
- |
バイク置き場 |
- |
駐輪場 |
- |
土地面積 |
- |
接道状況 |
-
|
用途地域 |
- |
間取り |
- |
建物構造 |
SRC |
アピールポイント |
◆久屋大通公園沿い!眺望と環境の良い小規模テナント!◆久屋大通エリアの非公開物件多数!お気軽にお尋ねください! |
建物名・部屋番号 |
秀光堂ビル |
リフォーム履歴 |
- |
リノベーション履歴 |
- |
特記事項 |
- |
備考 |
管理形態/管理員の勤務形態:-/-
敷金償却率:3年以内50%、10年以内25%、10年以上0%
|
エネルギー消費性能 |
- |
断熱性能 |
- |
目安光熱費 |
- |
バス・トイレ |
- |
キッチン |
- |
設備・サービス |
- |
その他 |
- |
契約期間 |
2年 |
条件等 |
- |
引渡可能時期 |
即時 |
現況 |
空 |
仲介手数料 |
1ヶ月 |
|
|
更新料 |
- |
物件番号 |
6982536696 |
情報公開日 |
2025年10月20日 |
次回更新予定日 |
2025年11月3日 |
ケータイ用バーコード |
- スマートフォンでこの物件を見る
- スマートフォンからもこの物件をご覧になれます。
|
※「-」と表示されている項目については、情報提供会社にご確認ください。
周辺施設 |
ファミリーマート魚の棚通店 |
距離 |
66m |
写真を見る |
周辺施設 |
タリーズコーヒーRAYARD Hisaya-odori Park店 |
距離 |
118m |
周辺施設 |
KoKuMiNセントラルパーク店 |
距離 |
336m |
周辺施設 |
私立名古屋学芸大学名城前医療キャンパス |
距離 |
1206m |
ここから簡単にお問い合わせをすることができます。
(SSLでの暗号化での送信を希望されるお客さまは
こちら
よりお問い合わせください)
お問い合わせを行う前に
「個人情報の取り扱いについて」を必ずお読みください。
「個人情報の取り扱いについて」に同意いただいた場合は「上記にご同意の上 確認画面へ進む」のボタンをクリックしてください。
個人情報の取り扱いについて
皆さまが送付された個人情報はアットホーム(株)のサーバを経由し、お問い合わせ先の不動産会社にメールまたはFAXにて転送されるためアットホーム(株)にも保管されます。アットホーム(株)で保管された個人情報の取り扱いについては、【こちら】をご覧ください。
また、本画面でご記入いただいた個人情報は、お問い合わせ先の不動産会社でも保管します。 お問い合わせ先の不動産会社が保管する個人情報の取り扱いについては、不動産会社に直接お問い合わせください。
愛知県知事免許(3)第22472号 |
---|
- 交通:
- 名古屋市桜通線/久屋大通駅 徒歩4分
- 愛知県名古屋市中区丸の内3丁目9-16 丸の内YSビル1階
- TEL:
- 052-684-8071
- FAX:
- 052-684-8073
- 所属団体:
- (公社)愛知県宅地建物取引業協会会員東海不動産公正取引協議会加盟
取引態様:仲介  - 40403804
|
- スマートフォンで
この不動産会社を見る

|
- 提携サイト等より掲載されている物件情報につきましては、不動産会社詳細情報にリンクされていないものがあります。
- 物件に関するお問合せは、物件詳細ページの「情報提供会社」に表示されている不動産会社へ直接お願いいたします。
- 間取図は、現況を優先させていただきます。
- 映像は物件の一部を撮影したものです。物件の契約にあたっての最終判断はご自身の判断に基づいて行ってください。
- 仲介手数料について

アットホームは物件情報の適正化に努めております。
内容に誤りがある場合にはこちらへご連絡ください。