埼玉県北本市山中1丁目(北本駅)の貸店舗:物件詳細
交通 所在地 |
駅徒歩 |
賃料 管理費等 |
敷金/保証金 礼金 |
使用部分面積 坪数/坪単価 |
物件種目 築年月 |
|
JR高崎線/北本
埼玉県北本市山中1丁目
|
17分
|
88万円
-
|
6ヶ月 / なし
なし
|
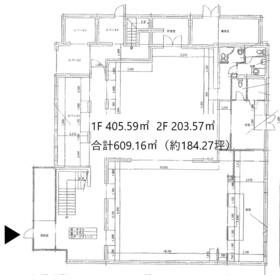
609.16m²
184.27坪/0.4776万円
|
貸店舗・事務所
1983年10月(築42年8ヶ月)
|
|
間取図
1階部分
|
外観
|
<
その他の画像
>
|
| 交通 | JR高崎線 北本駅 徒歩17分 |
|---|
| その他の交通 | 湘南新宿ライン(前橋〜小田原) 北本駅 徒歩17分 |
| 所在地 |
埼玉県北本市山中1丁目
|
| 物件種目 |
貸店舗・事務所 |
| 賃料 |
88万円 |
管理費等 |
- |
| 敷金 / 保証金 |
6ヶ月 / なし |
礼金 |
なし |
| 敷引 |
- |
坪単価 |
0.4776万円 |
| 保証金償却 |
- |
権利金 |
- |
| 造作譲渡 |
- |
その他一時金 |
- |
| 維持費等 |
- |
保険等 |
要 |
| 使用部分面積 |
609.16m² |
坪数 |
184.27坪 |
| 築年月 |
1983年10月(築42年8ヶ月)
|
階建 / 階 |
2階建 / 1階~2階部分 |
| 駐車場 |
有 無料(空き40台) ※台数等確認要(40台) |
バイク置き場 |
- |
| 駐輪場 |
- |
土地面積 |
- |
| 接道状況 |
-
|
用途地域 |
- |
| 間取り |
- |
建物構造 |
SRC |
| アピールポイント |
※国道17号線沿いの視認性良好の店舗。※飲食店舗にお薦め。※店舗内には造作が残っています。(2F区画された座敷等) ※基本的に現況でのお貸出しになります。※駐車場は約40台分の利用が可能です。(駐車場敷地は一部他の所有者の敷地となります。)※諸条件応相談。 |
| 建物名・部屋番号 |
北本市山中1丁目店舗 |
| リフォーム履歴 |
- |
| リノベーション履歴 |
- |
| 特記事項 |
居抜き、土日・祝日利用可、飲食店可、国道沿いに面する |
| 備考 |
賃貸保証等:加入要(初回保証委託料賃料合計の100%。継続保証委託料賃料合計の10%/年)
管理形態/管理員の勤務形態:-/-
※鉄骨造一部鉄筋コンクリート造 ※市街化調整区域ですが、許可を得て飲食店舗として利用していました。基本的に同用途であれば営業は可能とのこと。(北本市役所建築開発課)※その他物販店舗・サービス店舗・事務所は可能性ありますが、都度北本市への確認は必要になります。 ※検査済証無し ※浄化槽 ※駐車場敷地の一部は別所有者となります。
|
| エネルギー消費性能 |
- |
| 断熱性能 |
- |
| 目安光熱費 |
- |
| バス・トイレ |
専有部分にトイレあり |
| キッチン |
- |
| 設備・サービス |
プロパンガス |
| その他 |
- |
| 契約期間 |
3年 |
条件等 |
- |
| 引渡可能時期 |
相談 |
現況 |
空 |
| 仲介手数料 |
1ヶ月 |
|
|
| 更新料 |
新賃料 1ヶ月 |
物件番号 |
6983458898 |
| 情報公開日 |
2024年10月19日 |
次回更新予定日 |
2026年5月12日 |
| ケータイ用バーコード |
- スマートフォンでこの物件を見る
- スマートフォンからもこの物件をご覧になれます。
|
※「-」と表示されている項目については、情報提供会社にご確認ください。
| 周辺施設 |
ローソン北本北中丸二丁目店 |
| 距離 |
878m |
| 周辺施設 |
リンガーハット埼玉北本店 |
| 距離 |
110m |
| 周辺施設 |
医療法人社団一期会藤倉医院 |
| 距離 |
857m |
| 周辺施設 |
埼玉縣信用金庫北本西口支店 |
| 距離 |
1206m |
| 周辺施設 |
モスバーガー国道17号北本店 |
| 距離 |
197m |
ここから簡単にお問い合わせをすることができます。
(SSLでの暗号化での送信を希望されるお客さまは
こちら
よりお問い合わせください)
お問い合わせを行う前に
「個人情報の取り扱いについて」を必ずお読みください。
「個人情報の取り扱いについて」に同意いただいた場合は「上記にご同意の上 確認画面へ進む」のボタンをクリックしてください。
個人情報の取り扱いについて
皆さまが送付された個人情報はアットホーム(株)のサーバを経由し、お問い合わせ先の不動産会社にメールまたはFAXにて転送されるためアットホーム(株)にも保管されます。アットホーム(株)で保管された個人情報の取り扱いについては、【こちら】をご覧ください。
また、本画面でご記入いただいた個人情報は、お問い合わせ先の不動産会社でも保管します。 お問い合わせ先の不動産会社が保管する個人情報の取り扱いについては、不動産会社に直接お問い合わせください。
国土交通大臣免許(7)第5338号 |
|---|
- 交通:
- 東京メトロ銀座線/赤坂見附駅 徒歩2分
- 東京都港区元赤坂1丁目5-5 元赤坂SFビル3階
- TEL:
- 03-5414-0650
- FAX:
- 03-5414-0659
- 所属団体:
- (一社)不動産流通経営協会会員(公社)首都圏不動産公正取引協議会加盟
取引態様:仲介  - 00160828
|
- スマートフォンで
この不動産会社を見る

|
- 提携サイト等より掲載されている物件情報につきましては、不動産会社詳細情報にリンクされていないものがあります。
- 物件に関するお問合せは、物件詳細ページの「情報提供会社」に表示されている不動産会社へ直接お願いいたします。
- 間取図は、現況を優先させていただきます。
- 映像は物件の一部を撮影したものです。物件の契約にあたっての最終判断はご自身の判断に基づいて行ってください。
- 仲介手数料について

アットホームは物件情報の適正化に努めております。
内容に誤りがある場合にはこちらへご連絡ください。