愛知県名古屋市中区錦1丁目(伏見駅)の貸店舗:物件詳細
交通 所在地 |
駅徒歩 |
賃料 管理費等 |
敷金/保証金 礼金 |
使用部分面積 坪数/坪単価 |
物件種目 築年月 |
|
名古屋市鶴舞線/伏見
愛知県名古屋市中区錦1丁目
|
4分
|
61.1875万円
85,663円
|
なし / 3ヶ月
なし
|
73.56m²
22.25坪/2.7498万円
|
貸店舗・事務所
1970年7月(築55年11ヶ月)
|
|
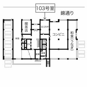
間取図
|
|
<
その他の画像
>
|
| 交通 | 名古屋市鶴舞線 伏見駅 徒歩4分 |
|---|
| その他の交通 | 名古屋市桜通線 国際センター駅 徒歩8分 名鉄名古屋本線 名鉄名古屋駅 徒歩14分 |
| 所在地 |
愛知県名古屋市中区錦1丁目
|
| 物件種目 |
貸店舗・事務所 |
| 賃料 |
61.1875万円 |
管理費等 |
85,663円 |
| 敷金 / 保証金 |
なし / 3ヶ月 |
礼金 |
なし |
| 敷引 |
- |
坪単価 |
2.7498万円 |
| 保証金償却 |
解約時50% 契約時に保証金償却消費税支払いあり |
権利金 |
- |
| 造作譲渡 |
- |
その他一時金 |
- |
| 維持費等 |
- |
保険等 |
要 事業用 |
| 使用部分面積 |
73.56m² |
坪数 |
22.25坪 |
| 築年月 |
1970年7月(築55年11ヶ月)
|
階建 / 階 |
11階建 / 1階 |
| 駐車場 |
有 38,500円/月(空き5台) 38500円~44000円/台 ※空台数は要問合せ |
バイク置き場 |
- |
| 駐輪場 |
- |
土地面積 |
- |
| 接道状況 |
-
|
用途地域 |
商業地域 |
| 間取り |
- |
建物構造 |
SRC |
| 建物名・部屋番号 |
|
| リフォーム履歴 |
- |
| リノベーション履歴 |
- |
| 特記事項 |
24時間利用可、土曜日利用可、土日・祝日利用可、有人警備、IT重説対応物件 |
| 備考 |
賃貸保証等:加入要(日本セーフティー 初回:総賃料の100% 更新:総賃料の10%/年)
管理形態/管理員の勤務形態:-/-
IT重説対応物件
|
| エネルギー消費性能 |
- |
| 断熱性能 |
- |
| 目安光熱費 |
- |
| バス・トイレ |
共用部分に男女別トイレあり |
| キッチン |
- |
| 設備・サービス |
個別空調、火災警報器(報知機) |
| その他 |
エレベーター |
| 契約期間 |
2年 |
条件等 |
- |
| 引渡可能時期 |
相談 |
現況 |
空 |
| 更新料 |
- |
物件番号 |
6983597490 |
| 情報公開日 |
2024年9月21日 |
次回更新予定日 |
2026年5月14日 |
| ケータイ用バーコード |
- スマートフォンでこの物件を見る
- スマートフォンからもこの物件をご覧になれます。
|
※「-」と表示されている項目については、情報提供会社にご確認ください。
| 周辺施設 |
名古屋ヒルトンプラザ |
| 距離 |
250m |
写真を見る |
| 周辺施設 |
柳橋中央市場 |
| 距離 |
450m |
写真を見る |
| 周辺施設 |
名駅地下街 チカマチラウンジ |
| 距離 |
500m |
写真を見る |
| 周辺施設 |
モード学園スパイラルタワーズ |
| 距離 |
600m |
写真を見る |
| 周辺施設 |
ナナちゃん人形 |
| 距離 |
800m |
写真を見る |
| 周辺施設 |
大名古屋ビルヂング |
| 距離 |
1000m |
写真を見る |
| 周辺施設 |
JRセントラルタワーズ |
| 距離 |
1200m |
写真を見る |
ここから簡単にお問い合わせをすることができます。
(SSLでの暗号化での送信を希望されるお客さまは
こちら
よりお問い合わせください)
お問い合わせを行う前に
「個人情報の取り扱いについて」を必ずお読みください。
「個人情報の取り扱いについて」に同意いただいた場合は「上記にご同意の上 確認画面へ進む」のボタンをクリックしてください。
個人情報の取り扱いについて
皆さまが送付された個人情報はアットホーム(株)のサーバを経由し、お問い合わせ先の不動産会社にメールまたはFAXにて転送されるためアットホーム(株)にも保管されます。アットホーム(株)で保管された個人情報の取り扱いについては、【こちら】をご覧ください。
また、本画面でご記入いただいた個人情報は、お問い合わせ先の不動産会社でも保管します。 お問い合わせ先の不動産会社が保管する個人情報の取り扱いについては、不動産会社に直接お問い合わせください。
国土交通大臣免許(2)第9800号 |
|---|
- 交通:
- 名古屋市桜通線/吹上駅 徒歩3分
- 愛知県名古屋市千種区千種3丁目7-7
- TEL:
- 03-3525-4070
- FAX:
- 052-735-0322
- 所属団体:
- 所属団体未加入会員
取引態様:仲介  - 40411285
|
- スマートフォンで
この不動産会社を見る

|
- 提携サイト等より掲載されている物件情報につきましては、不動産会社詳細情報にリンクされていないものがあります。
- 物件に関するお問合せは、物件詳細ページの「情報提供会社」に表示されている不動産会社へ直接お願いいたします。
- 間取図は、現況を優先させていただきます。
- 映像は物件の一部を撮影したものです。物件の契約にあたっての最終判断はご自身の判断に基づいて行ってください。
- 仲介手数料について

アットホームは物件情報の適正化に努めております。
内容に誤りがある場合にはこちらへご連絡ください。