大阪府箕面市船場東3丁目(箕面船場阪大前駅)の貸店舗:物件詳細
交通 所在地 |
駅徒歩 |
賃料 管理費等 |
敷金/保証金 礼金 |
使用部分面積 坪数/坪単価 |
物件種目 築年月 |
|
北大阪急行/箕面船場阪大前
大阪府箕面市船場東3丁目
|
4分
|
42.35万円
22,000円
|
なし / なし
2ヶ月
|
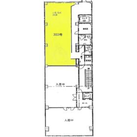
115.50m²
34.93坪/1.2122万円
|
貸店舗・事務所
1976年7月(築49年6ヶ月)
|
|
間取図
|
|
<
その他の画像
>
|
| 交通 | 北大阪急行 箕面船場阪大前駅 徒歩4分 |
|---|
| その他の交通 | 北大阪急行 箕面萱野駅 徒歩16分 北大阪急行 千里中央駅 徒歩19分 |
| 所在地 |
大阪府箕面市船場東3丁目
|
| 物件種目 |
貸店舗・事務所 |
| 賃料 |
42.35万円 |
管理費等 |
22,000円 |
| 敷金 / 保証金 |
なし / なし |
礼金 |
2ヶ月 |
| 敷引 |
- |
坪単価 |
1.2122万円 |
| 保証金償却 |
- |
権利金 |
- |
| 造作譲渡 |
- |
その他一時金 |
- |
| 維持費等 |
- |
保険等 |
要 |
| 使用部分面積 |
115.50m² |
坪数 |
34.93坪 |
| 築年月 |
1976年7月(築49年6ヶ月)
|
階建 / 階 |
6階建 / 3階 |
| 駐車場 |
無 |
バイク置き場 |
- |
| 駐輪場 |
- |
土地面積 |
- |
| 接道状況 |
-
|
用途地域 |
- |
| 間取り |
- |
建物構造 |
鉄骨造 |
| アピールポイント |
【最新テナント情報】
テナント専門不動産会社!北摂中心に200件以上物件を取り扱い!
「物件が見つからない」「最新情報がほしい」という方は、希望条件に合った新着物件を送らせていただきます!
ご希望の方は、下記からLINE登録を↓
LINE ID:「@eyx6687g」
また、ホームページに大阪北摂の物件を多数掲載!
「緑地不動産」で検索してください! |
| 建物名・部屋番号 |
|
| リフォーム履歴 |
- |
| リノベーション履歴 |
- |
| 特記事項 |
- |
| 備考 |
賃貸保証等:加入要(、)
管理形態/管理員の勤務形態:-/-
|
| エネルギー消費性能 |
- |
| 断熱性能 |
- |
| 目安光熱費 |
- |
| バス・トイレ |
共用部分にトイレあり |
| キッチン |
- |
| 設備・サービス |
- |
| その他 |
- |
| 契約期間 |
2年 |
条件等 |
- |
| 引渡可能時期 |
即時 |
現況 |
空 |
| 更新料 |
- |
物件番号 |
6983889259 |
| 情報公開日 |
2025年3月18日 |
次回更新予定日 |
2025年12月30日 |
| ケータイ用バーコード |
- スマートフォンでこの物件を見る
- スマートフォンからもこの物件をご覧になれます。
|
※「-」と表示されている項目については、情報提供会社にご確認ください。
| 周辺施設 |
ローソン箕面船場阪大前駅店 |
| 距離 |
58m |
| 周辺施設 |
鶴橋風月ビーバーワールド箕面船場店 |
| 距離 |
524m |
| 周辺施設 |
関西みらい銀行箕面中央支店 |
| 距離 |
1150m |
| 周辺施設 |
りそな銀行千里中央支店 |
| 距離 |
1410m |
ここから簡単にお問い合わせをすることができます。
(SSLでの暗号化での送信を希望されるお客さまは
こちら
よりお問い合わせください)
お問い合わせを行う前に
「個人情報の取り扱いについて」を必ずお読みください。
「個人情報の取り扱いについて」に同意いただいた場合は「上記にご同意の上 確認画面へ進む」のボタンをクリックしてください。
個人情報の取り扱いについて
皆さまが送付された個人情報はアットホーム(株)のサーバを経由し、お問い合わせ先の不動産会社にメールまたはFAXにて転送されるためアットホーム(株)にも保管されます。アットホーム(株)で保管された個人情報の取り扱いについては、【こちら】をご覧ください。
また、本画面でご記入いただいた個人情報は、お問い合わせ先の不動産会社でも保管します。 お問い合わせ先の不動産会社が保管する個人情報の取り扱いについては、不動産会社に直接お問い合わせください。
大阪府知事免許(3)第55912号 |
|---|
- 交通:
- 地下鉄御堂筋線/江坂駅 徒歩1分
- 大阪府吹田市江坂町1丁目23-35 コーポ江坂ビル801
- TEL:
- 06-6380-2912
- FAX:
- 06-6380-2476
- 所属団体:
- (公社)全日本不動産協会会員(公社)近畿地区不動産公正取引協議会加盟
取引態様:仲介  - 50027228
|
- スマートフォンで
この不動産会社を見る

|
- 提携サイト等より掲載されている物件情報につきましては、不動産会社詳細情報にリンクされていないものがあります。
- 物件に関するお問合せは、物件詳細ページの「情報提供会社」に表示されている不動産会社へ直接お願いいたします。
- 間取図は、現況を優先させていただきます。
- 映像は物件の一部を撮影したものです。物件の契約にあたっての最終判断はご自身の判断に基づいて行ってください。
- 仲介手数料について

アットホームは物件情報の適正化に努めております。
内容に誤りがある場合にはこちらへご連絡ください。