千葉県習志野市谷津2丁目(津田沼駅)の貸店舗:物件詳細
交通 所在地 |
駅徒歩 |
賃料 管理費等 |
敷金/保証金 礼金 |
使用部分面積 坪数/坪単価 |
物件種目 築年月 |
|
JR総武線/津田沼
千葉県習志野市谷津2丁目
|
16分
|
17.6万円
-
|
2ヶ月 / なし
なし
|
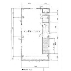
72.38m²
21.89坪/0.8039万円
|
貸店舗・事務所
1991年4月(築34年11ヶ月)
|
|
間取図
|
|
その他の画像
|
| 交通 | JR総武線 津田沼駅 徒歩16分 |
|---|
| その他の交通 | 京成本線 京成津田沼駅 徒歩13分 京成本線 谷津駅 徒歩12分 |
| 所在地 |
千葉県習志野市谷津2丁目
|
| 物件種目 |
貸店舗・事務所 |
| 賃料 |
17.6万円 |
管理費等 |
- |
| 敷金 / 保証金 |
2ヶ月 / なし |
礼金 |
なし |
| 敷引 |
- |
坪単価 |
0.8039万円 |
| 保証金償却 |
- |
権利金 |
- |
| 造作譲渡 |
- |
その他一時金 |
- |
| 維持費等 |
- |
保険等 |
要 |
| 使用部分面積 |
72.38m² |
坪数 |
21.89坪 |
| 築年月 |
1991年4月(築34年11ヶ月)
|
階建 / 階 |
3階建 / 2階 |
| 駐車場 |
有 11,000円/月(空き3台) |
バイク置き場 |
- |
| 駐輪場 |
- |
土地面積 |
- |
| 接道状況 |
-
|
用途地域 |
- |
| 間取り |
- |
建物構造 |
鉄骨造 |
| アピールポイント |
国道沿いで車を利用する業種に向いています!
「国道14号線 2F路面の店舗事務所(約21坪)」駐車場3台分は近隣有
【概要】
◇賃貸中で1月末退去予定です。
◇業種ご相談可能です。(1F、3Fが事務所になりますので、騒音や振動がある業種はNGとなります。)
◇専有面積:72.38㎡(21.89坪)
◇解約予告3ヶ月前。
※物件の写真は2024年3月のものになります。
【設備】
◇エアコン・トイレ・洗面台、東電・公営水道・本下水。
◇室内事務所仕様。
◇ガス設備無し。
☆詳細などお問い合わせください。 |
| 建物名・部屋番号 |
「国道14号線 2F路面の店舗事務所(約21坪)」駐車場3台分は近隣有 |
| リフォーム履歴 |
- |
| リノベーション履歴 |
- |
| 特記事項 |
飲食店不可、1フロア1テナント、駐車場3台分以上、国道沿いに面する |
| 備考 |
賃貸保証等:加入要(加入必須)
管理形態/管理員の勤務形態:-/-
国道沿いで車を利用する業種に向いています!
「国道14号線 2F路面の店舗事務所(約21坪)」駐車場3台分は近隣有
【概要】
◇賃貸中で3月末退去予定です。
◇業種ご相談可能です。(1F、3Fが事務所になりますので、騒音や振動がある業種はNGとなります。)
◇専有面積:72.38㎡(21.89坪)
◇解約予告3ヶ月前。
※物件の写真は2024年3月のものになります。
【設備】
◇エアコン・トイレ・洗面台、東電・公営水道・本下水。
◇室内事務所仕様。
◇ガス設備無し。
☆詳細などお問い合わせください。
|
| エネルギー消費性能 |
- |
| 断熱性能 |
- |
| 目安光熱費 |
- |
| バス・トイレ |
専有部分にトイレあり |
| キッチン |
- |
| 設備・サービス |
空調機あり |
| その他 |
- |
| 契約期間 |
3年 |
条件等 |
- |
| 引渡可能時期 |
2026年3月下旬予定 |
現況 |
居住中 |
| 仲介手数料 |
1ヶ月 |
|
|
| 更新料 |
新賃料 1ヶ月 |
物件番号 |
6984164585 |
| 情報公開日 |
2026年1月30日 |
次回更新予定日 |
2026年2月13日 |
| ケータイ用バーコード |
- スマートフォンでこの物件を見る
- スマートフォンからもこの物件をご覧になれます。
|
※「-」と表示されている項目については、情報提供会社にご確認ください。
| 周辺施設 |
セブンイレブン習志野谷津2丁目店 |
| 距離 |
739m |
| 周辺施設 |
ローソン津田沼六丁目西店 |
| 距離 |
562m |
| 周辺施設 |
すき家14号習志野谷津店 |
| 距離 |
242m |
ここから簡単にお問い合わせをすることができます。
(SSLでの暗号化での送信を希望されるお客さまは
こちら
よりお問い合わせください)
お問い合わせを行う前に
「個人情報の取り扱いについて」を必ずお読みください。
「個人情報の取り扱いについて」に同意いただいた場合は「上記にご同意の上 確認画面へ進む」のボタンをクリックしてください。
個人情報の取り扱いについて
皆さまが送付された個人情報はアットホーム(株)のサーバを経由し、お問い合わせ先の不動産会社にメールまたはFAXにて転送されるためアットホーム(株)にも保管されます。アットホーム(株)で保管された個人情報の取り扱いについては、【こちら】をご覧ください。
また、本画面でご記入いただいた個人情報は、お問い合わせ先の不動産会社でも保管します。 お問い合わせ先の不動産会社が保管する個人情報の取り扱いについては、不動産会社に直接お問い合わせください。
千葉県知事免許(2)第17753号 |
|---|
- 交通:
- JR総武本線/船橋駅 徒歩8分
- 千葉県船橋市東船橋7丁目6-4
- TEL:
- 047-707-2875
- FAX:
- 047-707-2875
- 所属団体:
- (公社)全日本不動産協会会員(公社)首都圏不動産公正取引協議会加盟
取引態様:仲介  - 00269682
|
- スマートフォンで
この不動産会社を見る

|
- 提携サイト等より掲載されている物件情報につきましては、不動産会社詳細情報にリンクされていないものがあります。
- 物件に関するお問合せは、物件詳細ページの「情報提供会社」に表示されている不動産会社へ直接お願いいたします。
- 間取図は、現況を優先させていただきます。
- 映像は物件の一部を撮影したものです。物件の契約にあたっての最終判断はご自身の判断に基づいて行ってください。
- 仲介手数料について

アットホームは物件情報の適正化に努めております。
内容に誤りがある場合にはこちらへご連絡ください。