不動産 賃貸 マンション等の住宅情報:埼玉住まい情報


東京都北区王子1丁目(王子駅)の貸店舗:物件詳細

  • 物件詳細
  • 情報の見方
  • 印刷用画面
交通
所在地
駅徒歩 賃料
管理費等
敷金/保証金
礼金
使用部分面積
坪数/坪単価
物件種目
築年月

東京メトロ南北線/王子

東京都北区王子1丁目

1分

24.2万円

16,500円

なし / 6ヶ月

1ヶ月

30.98m²

9.37坪/2.5824万円

貸店舗・事務所

1992年10月(築33年3ヶ月)

おすすめコメント

★王子駅近好立地! ★北本通り沿い! ★業種ご相談ください! ※募集区画3階、3階までは階段となります※

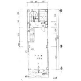
間取図

間取図

その他の画像
    • とりあえず保存
    • お問い合わせ
    交通

    東京メトロ南北線 王子駅 徒歩1分

    その他の交通

    都電荒川線 王子駅前駅 徒歩4分

    都電荒川線 飛鳥山駅 徒歩10分

    所在地 東京都北区王子1丁目
    物件種目 貸店舗・事務所
    賃料 24.2万円 管理費等 16,500円
    敷金 / 保証金 なし / 6ヶ月 礼金 1ヶ月
    敷引 坪単価 2.5824万円
    保証金償却 解約時2ヶ月 権利金
    造作譲渡 その他一時金
    維持費等 保険等
    使用部分面積 30.98m² 坪数 9.37坪
    築年月 1992年10月(築33年3ヶ月) 階建 / 階 6階建 / 3階
    駐車場 バイク置き場
    駐輪場 土地面積
    接道状況 用途地域
    間取り 建物構造 SRC
    建物名・部屋番号 王子駅前ビル 3F
    リフォーム履歴
    リノベーション履歴
    特記事項 土曜日利用可、土日・祝日利用可、飲食店可、1フロア1テナント、角部屋
    備考
    管理形態/管理員の勤務形態:-/-
    ※再契約相談可(再契約時:礼金1ヶ月)
    ※3Fまで階段となります 
    ※室内に水回り、空調なし
    ※バー、軽飲食相談可
    ※原状回復義務有(事務所仕様)
    エネルギー消費性能
    断熱性能
    目安光熱費
    バス・トイレ
    キッチン
    設備・サービス
    その他 エレベーター
    契約期間 5年 条件等 定期借家定期借家
    引渡可能時期 即時 現況
    仲介手数料 1ヶ月    
    更新料 物件番号 6984983188
    情報公開日 2025年6月26日 次回更新予定日 2025年12月29日
    ケータイ用バーコード

    QRコード

    スマートフォンでこの物件を見る
    スマートフォンからもこの物件をご覧になれます。
    ※「-」と表示されている項目については、情報提供会社にご確認ください。

    この物件の周辺情報

    周辺施設 まいばすけっと王子本町1丁目店
    距離 178m
    周辺施設 ローソン北区王子一丁目店
    距離 114m
    周辺施設 王子本町郵便局
    距離 364m
    周辺施設 みずほ銀行王子支店
    距離 9m
    周辺施設 三菱UFJ銀行王子支店
    距離 116m
    周辺施設 りそな銀行王子支店
    距離 66m
    周辺施設 王子警察署
    距離 661m
    周辺施設 サンスクエア駐車場
    距離 279m

    クイックお問い合わせ

    ここから簡単にお問い合わせをすることができます。
    (SSLでの暗号化での送信を希望されるお客さまは こちら よりお問い合わせください)

    お問い合わせ内容(必須)
    物件のお問い合わせ理由(必須)
    お名前・ご担当者様名(必須) 姓  名 
    メールアドレス(必須)
    ※携帯電話のメールアドレスをご入力される方はこちらをご確認ください
    電話番号(必須)
    - -

    ※入力いただいた電話番号へSMSまたは音声でパスワードをご連絡します。

    携帯電話の番号をご入力の方へ

    携帯電話の番号をご入力の方へ
    確認画面にて送信ボタンをクリックするとSMSが携帯電話に届きます。
    そのSMSに記載のパスワード(認証番号)を入力し、お問い合わせを完了してください。
    尚、SMSの送信者番号は 0005 202 760 となります。
    これはアットホームの固定番号です。

    備考欄 希望条件、物件案内希望日、質問などがございましたらご記入ください。
    お問い合わせを行う前に「個人情報の取り扱いについて」を必ずお読みください。
    「個人情報の取り扱いについて」に同意いただいた場合は「上記にご同意の上 確認画面へ進む」のボタンをクリックしてください。

    個人情報の取り扱いについて

    皆さまが送付された個人情報はアットホーム(株)のサーバを経由し、お問い合わせ先の不動産会社にメールまたはFAXにて転送されるためアットホーム(株)にも保管されます。アットホーム(株)で保管された個人情報の取り扱いについては、【こちら】をご覧ください。
    また、本画面でご記入いただいた個人情報は、お問い合わせ先の不動産会社でも保管します。 お問い合わせ先の不動産会社が保管する個人情報の取り扱いについては、不動産会社に直接お問い合わせください。

    情報提供会社

    情報提供会社

    西武通信(株) 不動産事業部

    東京都知事免許(4)第91842号

    交通:
    JR山手線/高田馬場駅 徒歩5分
    東京都新宿区大久保3丁目8-3 ラ・トゥール新宿ガーデン29階
    TEL:
    03-5953-5511
    FAX:
    03-5953-5533
    所属団体:
    (公社)東京都宅地建物取引業協会会員
    (公社)首都圏不動産公正取引協議会加盟

    取引態様:仲介

    • 会社情報
    • 00103289
    スマートフォンで
    この不動産会社を見る
    QRコード
    • とりあえず保存
    • お問い合わせ
    • 提携サイト等より掲載されている物件情報につきましては、不動産会社詳細情報にリンクされていないものがあります。
    • 物件に関するお問合せは、物件詳細ページの「情報提供会社」に表示されている不動産会社へ直接お願いいたします。
    • 間取図は、現況を優先させていただきます。
    • 映像は物件の一部を撮影したものです。物件の契約にあたっての最終判断はご自身の判断に基づいて行ってください。
    • 仲介手数料について仲介手数料

    アットホームは物件情報の適正化に努めております。 内容に誤りがある場合にはこちらへご連絡ください。

    【埼玉住まい情報】では、日本全国の物件から賃貸マンションや賃貸アパート・賃貸一戸建て等の賃貸住宅情報、新築マンション・分譲マンションや中古マンション等の売買マンション情報、新築一戸建てや中古一戸建てなどの戸建住宅、 土地など、総合的な不動産住宅情報検索サービスを提供致します。
    【埼玉住まい情報】から、選りすぐりの不動産物件を探してみましょう。

    【免責事項】
    このコーナーの運営はアットホーム株式会社(https://www.athome.co.jp/)が行っています。
    このコーナーに掲載している物件情報は、「アットホーム不動産情報ネットワーク」に加盟する不動産会社等(情報提供元)から提供されています。信頼性の高い情報提供が行えるよう、最大限の努力をしておりますが、その内容を保証するものではありません。 利用者のみなさまと各情報提供元との取引に起因する損害および情報が掲載されたことに起因する損害等については、株式会社イーシティ埼玉、およびアットホームは一切責任を負いません。
    各物件情報の内容や画像等はすべて現況を優先させていただきます。
    お取引等(お取引の準備、資金調達等を含みます)の際には、内容や契約条件等について、各情報提供元より十分な説明を受け、ご自身でご確認の上、判断してください。
    このコーナーへの物件情報のご掲載、その他不動産業務ソリューション等についての不動産会社様のお問合せはこちらからお願いいたします。

    物件画像: