東京都武蔵野市吉祥寺本町2丁目(吉祥寺駅)の貸店舗:物件詳細
交通 所在地 |
駅徒歩 |
賃料 管理費等 |
敷金/保証金 礼金 |
使用部分面積 坪数/坪単価 |
物件種目 築年月 |
|
JR中央線/吉祥寺
東京都武蔵野市吉祥寺本町2丁目
|
7分
|
91.3748万円
41,800円
|
なし / 800万円
1ヶ月
|
100.96m²
30.54坪/2.992万円
|
貸店舗・事務所
2025年2月(新築)
|
|
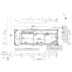
間取図
|
|
その他の画像
|
| 交通 | JR中央線 吉祥寺駅 徒歩7分 |
|---|
| その他の交通 | JR総武線 吉祥寺駅 徒歩7分 京王井の頭線 吉祥寺駅 徒歩7分 |
| 所在地 |
東京都武蔵野市吉祥寺本町2丁目
|
| 物件種目 |
貸店舗・事務所 |
| 賃料 |
91.3748万円 |
管理費等 |
41,800円 |
| 敷金 / 保証金 |
なし / 800万円 |
礼金 |
1ヶ月 |
| 敷引 |
- |
坪単価 |
2.992万円 |
| 保証金償却 |
解約時20% 満期、中途解約:保証金の20%(別途消費税) |
権利金 |
- |
| 造作譲渡 |
- |
その他一時金 |
- |
| 維持費等 |
- |
保険等 |
- |
| 使用部分面積 |
100.96m² |
坪数 |
30.54坪 |
| 築年月 |
2025年2月(新築)
|
階建 / 階 |
3階建 / 1階 |
| 駐車場 |
有 38,500円/月(空き1台) |
バイク置き場 |
- |
| 駐輪場 |
- |
土地面積 |
- |
| 接道状況 |
-
|
用途地域 |
1種住居 |
| 間取り |
- |
建物構造 |
RC |
| アピールポイント |
☆2025年2月に竣工☆
吉祥寺駅から徒歩7分の良好なアクセスの物件になります。
ドラッグストア・薬局等 事務所・店舗として多岐にわたって利用可能です。
また1階テナント利用の場合は、駐車場も別途契約可能です。【月額38,500円(税込)】
不明点等ございましたら、お気軽にご相談ください! |
| 建物名・部屋番号 |
平安ビル 1階 |
| リフォーム履歴 |
- |
| リノベーション履歴 |
- |
| 特記事項 |
スケルトン、土日・祝日利用可、飲食店不可 |
| 備考 |
賃貸保証等:加入要(保証委託料:税込賃料 1ヶ月分 4CS㈱)
管理形態/管理員の勤務形態:-/-
|
| エネルギー消費性能 |
- |
| 断熱性能 |
- |
| 目安光熱費 |
- |
| バス・トイレ |
- |
| キッチン |
- |
| 設備・サービス |
- |
| その他 |
- |
| 契約期間 |
3年 |
条件等 |
- |
| 引渡可能時期 |
相談 |
現況 |
空 |
| 仲介手数料 |
1ヶ月 |
|
|
| 更新料 |
新賃料 1ヶ月 |
物件番号 |
6985013779 |
| 情報公開日 |
2025年1月31日 |
次回更新予定日 |
2025年12月22日 |
| ケータイ用バーコード |
- スマートフォンでこの物件を見る
- スマートフォンからもこの物件をご覧になれます。
|
※「-」と表示されている項目については、情報提供会社にご確認ください。
| 周辺施設 |
まいばすけっと吉祥寺本町2丁目店 |
| 距離 |
335m |
ここから簡単にお問い合わせをすることができます。
(SSLでの暗号化での送信を希望されるお客さまは
こちら
よりお問い合わせください)
お問い合わせを行う前に
「個人情報の取り扱いについて」を必ずお読みください。
「個人情報の取り扱いについて」に同意いただいた場合は「上記にご同意の上 確認画面へ進む」のボタンをクリックしてください。
個人情報の取り扱いについて
皆さまが送付された個人情報はアットホーム(株)のサーバを経由し、お問い合わせ先の不動産会社にメールまたはFAXにて転送されるためアットホーム(株)にも保管されます。アットホーム(株)で保管された個人情報の取り扱いについては、【こちら】をご覧ください。
また、本画面でご記入いただいた個人情報は、お問い合わせ先の不動産会社でも保管します。 お問い合わせ先の不動産会社が保管する個人情報の取り扱いについては、不動産会社に直接お問い合わせください。
東京都知事免許(16)第11622号 |
|---|
- 交通:
- 京王線/調布駅 徒歩8分
- 東京都調布市調布ケ丘2丁目8-2
- TEL:
- 042-481-1211
- FAX:
- 042-488-6561
- 所属団体:
- (公社)東京都宅地建物取引業協会会員(公社)首都圏不動産公正取引協議会加盟
取引態様:仲介  - 00162444
|
- スマートフォンで
この不動産会社を見る

|
- 提携サイト等より掲載されている物件情報につきましては、不動産会社詳細情報にリンクされていないものがあります。
- 物件に関するお問合せは、物件詳細ページの「情報提供会社」に表示されている不動産会社へ直接お願いいたします。
- 間取図は、現況を優先させていただきます。
- 映像は物件の一部を撮影したものです。物件の契約にあたっての最終判断はご自身の判断に基づいて行ってください。
- 仲介手数料について

アットホームは物件情報の適正化に努めております。
内容に誤りがある場合にはこちらへご連絡ください。