東京都豊島区上池袋1丁目(北池袋駅)の貸店舗:物件詳細
交通 所在地 |
駅徒歩 |
賃料 管理費等 |
敷金/保証金 礼金 |
使用部分面積 坪数/坪単価 |
物件種目 築年月 |
|
東武東上線/北池袋
東京都豊島区上池袋1丁目
|
9分
|
55.88万円
なし
|
なし / 10ヶ月
2ヶ月
|
90.80m²
27.46坪/2.0345万円
|
貸店舗
1992年3月(築33年8ヶ月)
|
|
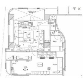
間取図
|
|
<
その他の画像
>
|
| 交通 | 東武東上線 北池袋駅 徒歩9分 |
|---|
| その他の交通 | 都電荒川線 巣鴨新田駅 徒歩11分 JR山手線 大塚駅 徒歩14分 |
| 所在地 |
東京都豊島区上池袋1丁目
|
| 物件種目 |
貸店舗 |
| 賃料 |
55.88万円 |
管理費等 |
なし |
| 敷金 / 保証金 |
なし / 10ヶ月 |
礼金 |
2ヶ月 |
| 敷引 |
- |
坪単価 |
2.0345万円 |
| 保証金償却 |
解約時20% |
権利金 |
- |
| 造作譲渡 |
- |
その他一時金 |
- |
| 維持費等 |
- |
保険等 |
要 3年 テナント総合 |
| 使用部分面積 |
90.80m² |
坪数 |
27.46坪 |
| 築年月 |
1992年3月(築33年8ヶ月)
|
階建 / 階 |
11階建 / 1階 |
| 駐車場 |
- |
バイク置き場 |
- |
| 駐輪場 |
- |
土地面積 |
- |
| 接道状況 |
-
|
用途地域 |
- |
| 間取り |
- |
建物構造 |
SRC |
| アピールポイント |
東武東上線「北池袋駅」から徒歩10分以内の好立地!重飲食も可能な店舗事務所物件です!業種お気軽にご相談ください! |
| 建物名・部屋番号 |
コスモス26ビル 101号室 |
| リフォーム履歴 |
- |
| リノベーション履歴 |
- |
| 特記事項 |
居抜き、スケルトン、土曜日利用可、土日・祝日利用可、飲食店可、耐震構造(新耐震基準) |
| 備考 |
管理形態/管理員の勤務形態:-/-
【税率10%算出。税率変動に準ず。】
居抜き相談
ダクト残置予定
裏手プロパン庫使用料16500円
|
| エネルギー消費性能 |
- |
| 断熱性能 |
- |
| 目安光熱費 |
- |
| バス・トイレ |
トイレ |
| キッチン |
- |
| 設備・サービス |
個別空調、エアコン、暖房、冷房 |
| その他 |
エレベーター |
| 契約期間 |
3年 |
条件等 |
- |
| 引渡可能時期 |
相談 |
現況 |
空 |
| 仲介手数料 |
1ヶ月 |
|
|
| 更新料 |
新賃料 1ヶ月 |
物件番号 |
6985031824 |
| 情報公開日 |
2025年1月31日 |
次回更新予定日 |
2025年11月10日 |
| ケータイ用バーコード |
- スマートフォンでこの物件を見る
- スマートフォンからもこの物件をご覧になれます。
|
※「-」と表示されている項目については、情報提供会社にご確認ください。
| 周辺施設 |
業務スーパー上池袋店 |
| 距離 |
70m |
写真を見る |
| 周辺施設 |
ファミリーマート上池袋三丁目店 |
| 距離 |
58m |
写真を見る |
| 周辺施設 |
ローソンストア100上池袋店 |
| 距離 |
140m |
写真を見る |
| 周辺施設 |
キッチンオリジン上池袋店 |
| 距離 |
2m |
写真を見る |
| 周辺施設 |
すき家上池袋二丁目店 |
| 距離 |
51m |
写真を見る |
| 周辺施設 |
ココカラファイン上池袋店 |
| 距離 |
64m |
写真を見る |
| 周辺施設 |
西巣鴨一郵便局 |
| 距離 |
301m |
写真を見る |
| 周辺施設 |
城北信用金庫巣鴨支店 |
| 距離 |
347m |
写真を見る |
ここから簡単にお問い合わせをすることができます。
(SSLでの暗号化での送信を希望されるお客さまは
こちら
よりお問い合わせください)
お問い合わせを行う前に
「個人情報の取り扱いについて」を必ずお読みください。
「個人情報の取り扱いについて」に同意いただいた場合は「上記にご同意の上 確認画面へ進む」のボタンをクリックしてください。
個人情報の取り扱いについて
皆さまが送付された個人情報はアットホーム(株)のサーバを経由し、お問い合わせ先の不動産会社にメールまたはFAXにて転送されるためアットホーム(株)にも保管されます。アットホーム(株)で保管された個人情報の取り扱いについては、【こちら】をご覧ください。
また、本画面でご記入いただいた個人情報は、お問い合わせ先の不動産会社でも保管します。 お問い合わせ先の不動産会社が保管する個人情報の取り扱いについては、不動産会社に直接お問い合わせください。
東京都知事免許(5)第79601号 |
|---|
- 交通:
- JR山手線/池袋駅 徒歩5分
- 東京都豊島区池袋2丁目53-13 ルート池袋第2ビル3F
- TEL:
- 03-5928-6666
- FAX:
- 03-5928-6667
- 所属団体:
- (一社)不動産協会会員(公社)全日本不動産協会会員(公社)首都圏不動産公正取引協議会加盟
取引態様:仲介  - 00276389
|
- スマートフォンで
この不動産会社を見る

|
- 提携サイト等より掲載されている物件情報につきましては、不動産会社詳細情報にリンクされていないものがあります。
- 物件に関するお問合せは、物件詳細ページの「情報提供会社」に表示されている不動産会社へ直接お願いいたします。
- 間取図は、現況を優先させていただきます。
- 映像は物件の一部を撮影したものです。物件の契約にあたっての最終判断はご自身の判断に基づいて行ってください。
- 仲介手数料について

アットホームは物件情報の適正化に努めております。
内容に誤りがある場合にはこちらへご連絡ください。