埼玉県さいたま市大宮区大門町2丁目(大宮駅)の貸店舗:物件詳細
交通 所在地 |
駅徒歩 |
賃料 管理費等 |
敷金/保証金 礼金 |
使用部分面積 坪数/坪単価 |
物件種目 築年月 |
JR京浜東北線/大宮
埼玉県さいたま市大宮区大門町2丁目
|
3分
|
142.3268万円
101,662円
|
6ヶ月 / なし
1ヶ月
|
152.79m²
46.21坪/3.0795万円
|
貸店舗・事務所
2025年11月(新築)
|
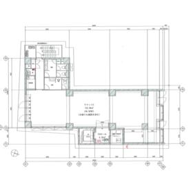
間取図
|
外観
|
その他の画像
|
交通 | JR京浜東北線 大宮駅 徒歩3分 |
所在地 |
埼玉県さいたま市大宮区大門町2丁目
|
物件種目 |
貸店舗・事務所 |
賃料 |
142.3268万円 |
管理費等 |
101,662円 |
敷金 / 保証金 |
6ヶ月 / なし |
礼金 |
1ヶ月 |
敷引 |
- |
坪単価 |
3.0795万円 |
保証金償却 |
- |
権利金 |
- |
造作譲渡 |
- |
その他一時金 |
- |
維持費等 |
- |
保険等 |
- |
使用部分面積 |
152.79m² |
坪数 |
46.21坪 |
築年月 |
2025年11月(新築)
|
階建 / 階 |
9階建 / 3階 |
駐車場 |
無 |
バイク置き場 |
- |
駐輪場 |
- |
土地面積 |
- |
接道状況 |
-
|
用途地域 |
商業地域 |
間取り |
- |
建物構造 |
SRC |
アピールポイント |
■事業用物件をお探しなら「オノテナ」へお任せ下さい■
■SNS(インスタ、LINE等)でのご紹介・募集もしております■
■売却相談・リフォーム相談・空室募集相談・物件管理相談etc
なんでも不動産に関わることでしたらお気軽にご相談下さい■
■新規開業の方への商業レポートも無料で提供可能です■
■内装工事業者のご紹介も可能です■
■ポータルサイトに掲載していないテナント情報など、
自社HPやインスタ等で情報公開している物件も多数ございます■
■本日もオノテナをよろしくお願い致します■ |
建物名・部屋番号 |
|
リフォーム履歴 |
- |
リノベーション履歴 |
- |
特記事項 |
土曜日利用可、土日・祝日利用可、飲食店可、1フロア1テナント、角部屋、24時間セキュリティー、耐震構造(新耐震基準)、天井高2.5M以上、都道府県道沿いに面する |
備考 |
賃貸保証等:加入要(指定保証会社、契約時:総賃料の100%、年間または月額保証料あり。連帯保証人1名など。)
管理形態/管理員の勤務形態:-/-
■事務所仕様での引き渡し予定です。
■電気・ガス・水道は子メーター検針、管理会社より請求となります。
■5年普通借、更新料1ヵ月、別途事務手数料有。
■機械警備(セコム)あり。
■管理費に1階看板掲載料含む。
■男女別トイレ、給湯室あり。
■計画段階の為、設備の使用が変更となる場合がございますのでご了承ください。
|
エネルギー消費性能 |
- |
断熱性能 |
- |
目安光熱費 |
- |
バス・トイレ |
トイレ2ヶ所、専有部分に男女別トイレあり |
キッチン |
- |
設備・サービス |
看板取付スペースあり、空調機あり
給湯、都市ガス、エアコン、暖房、冷房 |
その他 |
エレベーター |
契約期間 |
5年 |
条件等 |
- |
引渡可能時期 |
2025年11月下旬予定 |
現況 |
未完成 |
適格請求書発行 |
可
|
更新料 |
新賃料 1ヶ月 |
物件番号 |
6985253456 |
情報公開日 |
2025年10月3日 |
次回更新予定日 |
2025年10月17日 |
ケータイ用バーコード |
- スマートフォンでこの物件を見る
- スマートフォンからもこの物件をご覧になれます。
|
※「-」と表示されている項目については、情報提供会社にご確認ください。
ここから簡単にお問い合わせをすることができます。
(SSLでの暗号化での送信を希望されるお客さまは
こちら
よりお問い合わせください)
お問い合わせを行う前に
「個人情報の取り扱いについて」を必ずお読みください。
「個人情報の取り扱いについて」に同意いただいた場合は「上記にご同意の上 確認画面へ進む」のボタンをクリックしてください。
個人情報の取り扱いについて
皆さまが送付された個人情報はアットホーム(株)のサーバを経由し、お問い合わせ先の不動産会社にメールまたはFAXにて転送されるためアットホーム(株)にも保管されます。アットホーム(株)で保管された個人情報の取り扱いについては、【こちら】をご覧ください。
また、本画面でご記入いただいた個人情報は、お問い合わせ先の不動産会社でも保管します。 お問い合わせ先の不動産会社が保管する個人情報の取り扱いについては、不動産会社に直接お問い合わせください。
埼玉県知事免許(2)第23726号 |
---|
- 交通:
- JR京浜東北線/浦和駅 徒歩7分
- 埼玉県さいたま市浦和区高砂3丁目7-4 日建第二県庁前ビル1F
- TEL:
- 048-767-4710
- FAX:
- 048-767-4711
- 所属団体:
- (公社)埼玉県宅地建物取引業協会会員(公社)首都圏不動産公正取引協議会加盟
取引態様:仲介  - 00264597
|
- スマートフォンで
この不動産会社を見る

|
- 提携サイト等より掲載されている物件情報につきましては、不動産会社詳細情報にリンクされていないものがあります。
- 物件に関するお問合せは、物件詳細ページの「情報提供会社」に表示されている不動産会社へ直接お願いいたします。
- 間取図は、現況を優先させていただきます。
- 映像は物件の一部を撮影したものです。物件の契約にあたっての最終判断はご自身の判断に基づいて行ってください。
- 仲介手数料について

アットホームは物件情報の適正化に努めております。
内容に誤りがある場合にはこちらへご連絡ください。