京都府京都市下京区高材木町(烏丸駅)の貸店舗:物件詳細
交通 所在地 |
駅徒歩 |
賃料 管理費等 |
敷金/保証金 礼金 |
使用部分面積 坪数/坪単価 |
物件種目 築年月 |
阪急京都線/烏丸
京都府京都市下京区高材木町
|
1分
|
99万円
55,000円
|
なし / 6ヶ月
なし
|
149.73m²
45.29坪/2.1858万円
|
貸店舗
2022年5月(築3年6ヶ月)
|
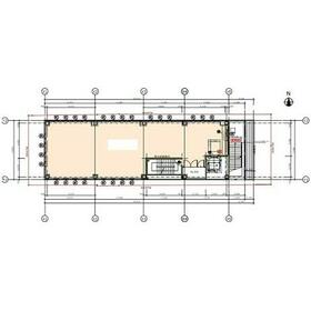
間取図
|
|
その他の画像
|
交通 | 阪急京都線 烏丸駅 徒歩1分 |
---|
その他の交通 | 地下鉄烏丸線 四条駅 徒歩5分 阪急京都線 京都河原町駅 徒歩9分 |
所在地 |
京都府京都市下京区高材木町
|
物件種目 |
貸店舗 |
賃料 |
99万円 |
管理費等 |
55,000円 |
敷金 / 保証金 |
なし / 6ヶ月 |
礼金 |
なし |
敷引 |
- |
坪単価 |
2.1858万円 |
保証金償却 |
- |
権利金 |
- |
造作譲渡 |
- |
その他一時金 |
- |
維持費等 |
- |
保険等 |
要 火災 |
使用部分面積 |
149.73m² |
坪数 |
45.29坪 |
築年月 |
2022年5月(築3年6ヶ月)
|
階建 / 階 |
5階建 / 2階 |
駐車場 |
無 |
バイク置き場 |
- |
駐輪場 |
- |
土地面積 |
- |
接道状況 |
-
|
用途地域 |
商業地域 |
間取り |
- |
建物構造 |
鉄骨造 |
アピールポイント |
阪急京都線「烏丸駅」近く!高倉通沿い築浅ビル!!
重飲食店可能、直接階段のある2階店舗♪
お問い合わせは担当:新名(にいな:090-3614-3041)まで! |
建物名・部屋番号 |
リリィビル高倉 2階 |
リフォーム履歴 |
- |
リノベーション履歴 |
- |
特記事項 |
スケルトン、飲食店可、天井高2.5M以上 |
備考 |
賃貸保証等:利用可(保証会社加入の場合あり)
管理形態/管理員の勤務形態:-/-
*契約期間:定期借家契約10年もしくは15年
*保証金の償却率については応相談
*重飲食可
*直接階段あり
物件の詳細等は、担当の携帯に直接連絡をお願い致します。
(担当:新名 090-3614-3041)
|
エネルギー消費性能 |
- |
断熱性能 |
- |
目安光熱費 |
- |
バス・トイレ |
- |
キッチン |
- |
設備・サービス |
- |
その他 |
エレベーター |
契約期間 |
10年 |
条件等 |
定期借家 |
引渡可能時期 |
即時 |
現況 |
空 |
更新料 |
- |
物件番号 |
6985286774 |
情報公開日 |
2025年10月20日 |
次回更新予定日 |
2025年11月3日 |
ケータイ用バーコード |
- スマートフォンでこの物件を見る
- スマートフォンからもこの物件をご覧になれます。
|
※「-」と表示されている項目については、情報提供会社にご確認ください。
周辺施設 |
ファミリーマート四条堺町店 |
距離 |
95m |
周辺施設 |
ファーストキッチン・ウェンディーズ京都大丸前店 |
距離 |
119m |
周辺施設 |
日邦レンタカー京洛営業所 |
距離 |
126m |
ここから簡単にお問い合わせをすることができます。
(SSLでの暗号化での送信を希望されるお客さまは
こちら
よりお問い合わせください)
お問い合わせを行う前に
「個人情報の取り扱いについて」を必ずお読みください。
「個人情報の取り扱いについて」に同意いただいた場合は「上記にご同意の上 確認画面へ進む」のボタンをクリックしてください。
個人情報の取り扱いについて
皆さまが送付された個人情報はアットホーム(株)のサーバを経由し、お問い合わせ先の不動産会社にメールまたはFAXにて転送されるためアットホーム(株)にも保管されます。アットホーム(株)で保管された個人情報の取り扱いについては、【こちら】をご覧ください。
また、本画面でご記入いただいた個人情報は、お問い合わせ先の不動産会社でも保管します。 お問い合わせ先の不動産会社が保管する個人情報の取り扱いについては、不動産会社に直接お問い合わせください。
国土交通大臣免許(3)第8239号 |
---|
- 交通:
- 地下鉄四つ橋線/西梅田駅 徒歩1分
- 大阪府大阪市北区梅田1丁目3-1-600号 大阪駅前第1ビル6F 12号
- TEL:
- 06-6451-6711
- FAX:
- 06-6451-6712
- 所属団体:
- (一社)大阪府宅地建物取引業協会会員不動産公正取引協議会加盟
取引態様:仲介  - 50027217
|
- スマートフォンで
この不動産会社を見る

|
- 提携サイト等より掲載されている物件情報につきましては、不動産会社詳細情報にリンクされていないものがあります。
- 物件に関するお問合せは、物件詳細ページの「情報提供会社」に表示されている不動産会社へ直接お願いいたします。
- 間取図は、現況を優先させていただきます。
- 映像は物件の一部を撮影したものです。物件の契約にあたっての最終判断はご自身の判断に基づいて行ってください。
- 仲介手数料について

アットホームは物件情報の適正化に努めております。
内容に誤りがある場合にはこちらへご連絡ください。