福井県鯖江市宮前1丁目(サンドーム西駅)の貸店舗:物件詳細
交通 所在地 |
駅徒歩 |
賃料 管理費等 |
敷金/保証金 礼金 |
使用部分面積 坪数/坪単価 |
物件種目 築年月 |
|
福井鉄道福武線/サンドーム西
福井県鯖江市宮前1丁目
|
12分
|
110万円
-
|
600万円 / なし
なし
|
1,280.91m²
387.47坪/0.2839万円
|
貸店舗(建物一括)
1996年6月(築29年7ヶ月)
|
|
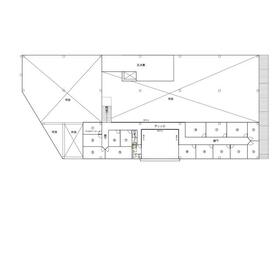
間取図
|
|
<
その他の画像
>
|
| 交通 | 福井鉄道福武線 サンドーム西駅 徒歩12分 |
|---|
| その他の交通 | ハピラインふくい 鯖江駅 徒歩12分 |
| 所在地 |
福井県鯖江市宮前1丁目
|
| 物件種目 |
貸店舗(建物一括) |
| 賃料 |
110万円 |
管理費等 |
- |
| 敷金 / 保証金 |
600万円 / なし |
礼金 |
なし |
| 敷引 |
- |
坪単価 |
0.2839万円 |
| 保証金償却 |
- |
権利金 |
- |
| 造作譲渡 |
- |
その他一時金 |
- |
| 維持費等 |
- |
保険等 |
要 |
| 使用部分面積 |
1,280.91m² |
坪数 |
387.47坪 |
| 築年月 |
1996年6月(築29年7ヶ月)
|
階建 / 階 |
2階建 |
| 駐車場 |
有 無料(空き225台) 北側71台・東側59台・西側95台(合計225台)パチンコ店と共有になります。北側駐車場はパチンコ店のお客様が多く利用されます。 |
バイク置き場 |
- |
| 駐輪場 |
- |
土地面積 |
5,029.05m²(公簿) |
| 接道状況 |
東
・
南
・
西
・
三方道路
|
用途地域 |
- |
| 間取り |
- |
建物構造 |
鉄骨造 |
| アピールポイント |
◆国道8号線ロードサイド店舗!
◆北陸自動車道「鯖江」ICより車で6分
◆北陸新幹線「越前たけふ」駅より車で11分
◆鯖江市と越前市の市境より約500m
地理的「丹南地域」商業エリアの中心地域
鯖江市(約6.8万人)越前市(約8万人)
◆サンドーム福井より徒歩10分
コンサート・大型イベント(約1万人収容可能)のホールより徒歩10分圏内です。
◆元ゲームセンター(1階)カラオケボックス(2階)
◆1階床面積 【1,000㎡以上店舗】(300坪以上)
◆天井吹抜部分が多く、開放感がある店内です☆ |
| 建物名・部屋番号 |
|
| リフォーム履歴 |
- |
| リノベーション履歴 |
- |
| 特記事項 |
24時間利用可、土日・祝日利用可、国道沿いに面する |
| 備考 |
管理形態/管理員の勤務形態:-/-
・定期建物賃貸借契約 10年 ※応相談
・工事中は契約締結後、営業開始まで賃料半額になります。
・エアコン、照明(照明照度が足りない時は撤去します。)
、トイレ1階・2階、流し台、防犯カメラ、火災警報器
|
| エネルギー消費性能 |
- |
| 断熱性能 |
- |
| 目安光熱費 |
- |
| バス・トイレ |
男女別トイレ、トイレ2ヶ所、トイレ |
| キッチン |
- |
| 設備・サービス |
空調機あり
エアコン2台以上 |
| その他 |
- |
| 契約期間 |
10年 |
条件等 |
- |
| 引渡可能時期 |
相談 |
現況 |
空 |
| 仲介手数料 |
1ヶ月 |
|
|
| 更新料 |
- |
物件番号 |
6985446834 |
| 情報公開日 |
2025年3月4日 |
次回更新予定日 |
2025年12月11日 |
| ケータイ用バーコード |
- スマートフォンでこの物件を見る
- スマートフォンからもこの物件をご覧になれます。
|
※「-」と表示されている項目については、情報提供会社にご確認ください。
| 周辺施設 |
ワイプラザグルメ館東鯖江店 |
| 距離 |
748m |
| 周辺施設 |
ファミリーマート鯖江宮前二丁目店 |
| 距離 |
117m |
ここから簡単にお問い合わせをすることができます。
(SSLでの暗号化での送信を希望されるお客さまは
こちら
よりお問い合わせください)
お問い合わせを行う前に
「個人情報の取り扱いについて」を必ずお読みください。
「個人情報の取り扱いについて」に同意いただいた場合は「上記にご同意の上 確認画面へ進む」のボタンをクリックしてください。
個人情報の取り扱いについて
皆さまが送付された個人情報はアットホーム(株)のサーバを経由し、お問い合わせ先の不動産会社にメールまたはFAXにて転送されるためアットホーム(株)にも保管されます。アットホーム(株)で保管された個人情報の取り扱いについては、【こちら】をご覧ください。
また、本画面でご記入いただいた個人情報は、お問い合わせ先の不動産会社でも保管します。 お問い合わせ先の不動産会社が保管する個人情報の取り扱いについては、不動産会社に直接お問い合わせください。
福井県知事免許(1)第1774号 |
|---|
- 交通:
- ハピラインふくい/鯖江駅 徒歩5分
- 福井県鯖江市柳町1丁目3-19
- TEL:
- 0778-52-2937
- 所属団体:
- (公社)福井県宅地建物取引業協会会員北陸不動産公正取引協議会加盟
取引態様:仲介  - 40411647
|
- スマートフォンで
この不動産会社を見る

|
- 提携サイト等より掲載されている物件情報につきましては、不動産会社詳細情報にリンクされていないものがあります。
- 物件に関するお問合せは、物件詳細ページの「情報提供会社」に表示されている不動産会社へ直接お願いいたします。
- 間取図は、現況を優先させていただきます。
- 映像は物件の一部を撮影したものです。物件の契約にあたっての最終判断はご自身の判断に基づいて行ってください。
- 仲介手数料について

アットホームは物件情報の適正化に努めております。
内容に誤りがある場合にはこちらへご連絡ください。