京都府京都市西京区大原野東境谷町2丁目(桂川駅)の貸店舗:物件詳細
交通 所在地 |
駅徒歩 |
賃料 管理費等 |
敷金/保証金 礼金 |
使用部分面積 坪数/坪単価 |
物件種目 築年月 |
|
JR東海道本線/桂川 【バス】15分 境谷大橋 停歩5分
京都府京都市西京区大原野東境谷町2丁目
|
−
|
75.42万円
604,544円
|
10ヶ月 / なし
なし
|
226.66m²
68.56坪/1.10万円
|
貸店舗
1982年4月(築43年9ヶ月)
|
|
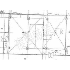
間取図
|
|
その他の画像
|
| 交通 | JR東海道本線 桂川駅 【バス】 15分 境谷大橋 停歩5分 |
|---|
| その他の交通 | 阪急京都線 桂駅 【バス】 20分 境谷大橋 停歩5分 |
| 所在地 |
京都府京都市西京区大原野東境谷町2丁目
|
| 物件種目 |
貸店舗 |
| 賃料 |
75.42万円 |
管理費等 |
604,544円 |
| 敷金 / 保証金 |
10ヶ月 / なし |
礼金 |
なし |
| 敷引 |
- |
坪単価 |
1.10万円 |
| 保証金償却 |
- |
権利金 |
- |
| 造作譲渡 |
- |
その他一時金 |
- |
| 維持費等 |
- |
保険等 |
- |
| 使用部分面積 |
226.66m² |
坪数 |
68.56坪 |
| 築年月 |
1982年4月(築43年9ヶ月)
|
階建 / 階 |
2階建 / 1階 |
| 駐車場 |
有 11,000円/月 従業員用 |
バイク置き場 |
- |
| 駐輪場 |
- |
土地面積 |
- |
| 接道状況 |
-
|
用途地域 |
- |
| 間取り |
- |
建物構造 |
SRC |
| アピールポイント |
◆ショッピングセンター内の1階飲食店エリア
◆2区画一括(68.56坪)
◆諸条件等、お気軽にご相談ください。 |
| 建物名・部屋番号 |
ラクセーヌ専門店 A-27・28一括 |
| リフォーム履歴 |
- |
| リノベーション履歴 |
- |
| 特記事項 |
飲食店可 |
| 備考 |
管理形態/管理員の勤務形態:-/-
*賃料・契約期間:ご相談
*スケルトン渡し/戻し
*営業時間規約あり
*来客駐車スペース:共用(500台以上)
*商店会費用別途要、ごみ処理費用別途要
※詳細は別途ご相談
物件の詳細等は、担当の携帯に直接連絡をお願い致します。
(担当:杉本 070-8551-7773)
|
| エネルギー消費性能 |
- |
| 断熱性能 |
- |
| 目安光熱費 |
- |
| バス・トイレ |
- |
| キッチン |
- |
| 設備・サービス |
看板取付スペースあり、空調機あり、排煙設備あり、グリストラップあり、排水設備あり
個別空調、動力あり、ビルトインエアコン |
| その他 |
- |
| 契約期間 |
10年 |
条件等 |
定期借家 |
| 引渡可能時期 |
相談 |
現況 |
空 |
| 更新料 |
- |
物件番号 |
6985466648 |
| 情報公開日 |
2025年7月23日 |
次回更新予定日 |
2025年12月12日 |
| ケータイ用バーコード |
- スマートフォンでこの物件を見る
- スマートフォンからもこの物件をご覧になれます。
|
※「-」と表示されている項目については、情報提供会社にご確認ください。
ここから簡単にお問い合わせをすることができます。
(SSLでの暗号化での送信を希望されるお客さまは
こちら
よりお問い合わせください)
お問い合わせを行う前に
「個人情報の取り扱いについて」を必ずお読みください。
「個人情報の取り扱いについて」に同意いただいた場合は「上記にご同意の上 確認画面へ進む」のボタンをクリックしてください。
個人情報の取り扱いについて
皆さまが送付された個人情報はアットホーム(株)のサーバを経由し、お問い合わせ先の不動産会社にメールまたはFAXにて転送されるためアットホーム(株)にも保管されます。アットホーム(株)で保管された個人情報の取り扱いについては、【こちら】をご覧ください。
また、本画面でご記入いただいた個人情報は、お問い合わせ先の不動産会社でも保管します。 お問い合わせ先の不動産会社が保管する個人情報の取り扱いについては、不動産会社に直接お問い合わせください。
国土交通大臣免許(3)第8239号 |
|---|
- 交通:
- 地下鉄四つ橋線/西梅田駅 徒歩1分
- 大阪府大阪市北区梅田1丁目3-1-600号 大阪駅前第1ビル6F 12号
- TEL:
- 06-6451-6711
- FAX:
- 06-6451-6712
- 所属団体:
- (一社)大阪府宅地建物取引業協会会員不動産公正取引協議会加盟
取引態様:仲介  - 50027217
|
- スマートフォンで
この不動産会社を見る

|
- 提携サイト等より掲載されている物件情報につきましては、不動産会社詳細情報にリンクされていないものがあります。
- 物件に関するお問合せは、物件詳細ページの「情報提供会社」に表示されている不動産会社へ直接お願いいたします。
- 間取図は、現況を優先させていただきます。
- 映像は物件の一部を撮影したものです。物件の契約にあたっての最終判断はご自身の判断に基づいて行ってください。
- 仲介手数料について

アットホームは物件情報の適正化に努めております。
内容に誤りがある場合にはこちらへご連絡ください。