東京都新宿区四谷3丁目(四谷三丁目駅)の貸店舗:物件詳細
交通 所在地 |
駅徒歩 |
賃料 管理費等 |
敷金/保証金 礼金 |
使用部分面積 坪数/坪単価 |
物件種目 築年月 |
|
東京メトロ丸ノ内線/四谷三丁目
東京都新宿区四谷3丁目
|
2分
|
105.6万円
なし
|
12ヶ月 / なし
なし
|
99.17m²
29.99坪/3.5202万円
|
貸店舗・事務所
1982年2月(築43年11ヶ月)
|
|
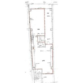
間取図
|
|
その他の画像
|
| 交通 | 東京メトロ丸ノ内線 四谷三丁目駅 徒歩2分 |
|---|
| その他の交通 | 都営新宿線 曙橋駅 徒歩7分 JR総武線 四ツ谷駅 徒歩10分 |
| 所在地 |
東京都新宿区四谷3丁目
|
| 物件種目 |
貸店舗・事務所 |
| 賃料 |
105.6万円 |
管理費等 |
なし |
| 敷金 / 保証金 |
12ヶ月 / なし |
礼金 |
なし |
| 敷引 |
- |
坪単価 |
3.5202万円 |
| 保証金償却 |
- |
権利金 |
- |
| 造作譲渡 |
- |
その他一時金 |
- |
| 維持費等 |
- |
保険等 |
要 業種により変動有 |
| 使用部分面積 |
99.17m² |
坪数 |
29.99坪 |
| 築年月 |
1982年2月(築43年11ヶ月)
|
階建 / 階 |
地上8階地下1階建 / 1階 |
| 駐車場 |
- |
バイク置き場 |
- |
| 駐輪場 |
- |
土地面積 |
- |
| 接道状況 |
-
|
用途地域 |
商業地域 |
| 間取り |
- |
建物構造 |
RC |
| アピールポイント |
区画を分けて使える為、物販店舗にオススメです。
奥を事務所兼倉庫にしたり、使い分けができるレイアウトになっております。 |
| 建物名・部屋番号 |
斉藤ビルディング |
| リフォーム履歴 |
- |
| リノベーション履歴 |
- |
| 特記事項 |
土曜日利用可、土日・祝日利用可、飲食店不可、角部屋、24時間セキュリティー、保証人不要、国道沿いに面する |
| 備考 |
賃貸保証等:加入要(総賃料100% 年次10%)
管理形態/管理員の勤務形態:-/-
定期借家3年(中途解約不可)再契約料新賃料1ヶ月。サービス店舗可能。新耐震基準且つ追加耐震補強実施済み。閉館時間月~土22時~7時。日祝は電気錠にセキュリティキーをかざして入館可能。
|
| エネルギー消費性能 |
- |
| 断熱性能 |
- |
| 目安光熱費 |
- |
| バス・トイレ |
専有部分にトイレあり、共用部分にトイレあり |
| キッチン |
- |
| 設備・サービス |
個別空調、エアコン2台以上、ビルトインエアコン、エアコン、火災警報器(報知機) |
| その他 |
エレベーター |
| 契約期間 |
3年 |
条件等 |
定期借家 |
| 引渡可能時期 |
相談 |
現況 |
空 |
| 仲介手数料 |
1ヶ月 |
適格請求書発行 |
可
|
| 更新料 |
- |
物件番号 |
6985685415 |
| 情報公開日 |
2025年3月29日 |
次回更新予定日 |
2025年12月23日 |
| ケータイ用バーコード |
- スマートフォンでこの物件を見る
- スマートフォンからもこの物件をご覧になれます。
|
※「-」と表示されている項目については、情報提供会社にご確認ください。
| 周辺施設 |
まいばすけっと四谷三丁目駅東店 |
| 距離 |
252m |
| 周辺施設 |
ミニストップ四谷3丁目店 |
| 距離 |
122m |
| 周辺施設 |
ファミリーマート四谷大通り店 |
| 距離 |
144m |
| 周辺施設 |
さわやか信用金庫四谷支店 |
| 距離 |
191m |
| 周辺施設 |
東京消防庁消防防災資料センター・消防博物館 |
| 距離 |
303m |
ここから簡単にお問い合わせをすることができます。
(SSLでの暗号化での送信を希望されるお客さまは
こちら
よりお問い合わせください)
お問い合わせを行う前に
「個人情報の取り扱いについて」を必ずお読みください。
「個人情報の取り扱いについて」に同意いただいた場合は「上記にご同意の上 確認画面へ進む」のボタンをクリックしてください。
個人情報の取り扱いについて
皆さまが送付された個人情報はアットホーム(株)のサーバを経由し、お問い合わせ先の不動産会社にメールまたはFAXにて転送されるためアットホーム(株)にも保管されます。アットホーム(株)で保管された個人情報の取り扱いについては、【こちら】をご覧ください。
また、本画面でご記入いただいた個人情報は、お問い合わせ先の不動産会社でも保管します。 お問い合わせ先の不動産会社が保管する個人情報の取り扱いについては、不動産会社に直接お問い合わせください。
東京都知事免許(4)第86028号 |
|---|
- 交通:
- 東京メトロ丸ノ内線/西新宿駅 徒歩1分
- 東京都新宿区西新宿8丁目1-2 PMO西新宿2F
- TEL:
- 03-5348-3311
- FAX:
- 03-5348-3322
- 所属団体:
- (公社)全日本不動産協会会員(公社)首都圏不動産公正取引協議会加盟
取引態様:仲介  - 00996300
|
- スマートフォンで
この不動産会社を見る

|
- 提携サイト等より掲載されている物件情報につきましては、不動産会社詳細情報にリンクされていないものがあります。
- 物件に関するお問合せは、物件詳細ページの「情報提供会社」に表示されている不動産会社へ直接お願いいたします。
- 間取図は、現況を優先させていただきます。
- 映像は物件の一部を撮影したものです。物件の契約にあたっての最終判断はご自身の判断に基づいて行ってください。
- 仲介手数料について

アットホームは物件情報の適正化に努めております。
内容に誤りがある場合にはこちらへご連絡ください。