大阪府大阪市都島区大東町1丁目(城北公園通駅)の貸店舗:物件詳細
交通 所在地 |
駅徒歩 |
賃料 管理費等 |
敷金/保証金 礼金 |
使用部分面積 坪数/坪単価 |
物件種目 築年月 |
|
JRおおさか東線/城北公園通
大阪府大阪市都島区大東町1丁目
|
4分
|
49.5万円
なし
|
1ヶ月 / なし
2ヶ月
|
232.58m²
70.35坪/0.7036万円
|
貸店舗・事務所
1980年2月(築45年11ヶ月)
|
|
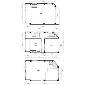
間取図
|
|
その他の画像
|
| 交通 | JRおおさか東線 城北公園通駅 徒歩4分 |
|---|
| その他の交通 | 地下鉄谷町線 都島駅 徒歩22分 地下鉄谷町線 関目高殿駅 徒歩26分 |
| 所在地 |
大阪府大阪市都島区大東町1丁目
|
| 物件種目 |
貸店舗・事務所 |
| 賃料 |
49.5万円 |
管理費等 |
なし |
| 敷金 / 保証金 |
1ヶ月 / なし |
礼金 |
2ヶ月 |
| 敷引 |
- |
坪単価 |
0.7036万円 |
| 保証金償却 |
- |
権利金 |
- |
| 造作譲渡 |
- |
その他一時金 |
- |
| 維持費等 |
- |
保険等 |
要 火災 |
| 使用部分面積 |
232.58m² |
坪数 |
70.35坪 |
| 築年月 |
1980年2月(築45年11ヶ月)
|
階建 / 階 |
3階建 / 1階~3階部分 |
| 駐車場 |
有 無料(空き3台) 駐車場2台分、3台分 その他バイク置場あり |
バイク置き場 |
- |
| 駐輪場 |
有 |
土地面積 |
- |
| 接道状況 |
-
|
用途地域 |
- |
| 間取り |
- |
建物構造 |
鉄骨造 |
| アピールポイント |
駅3分で駐車場完備のため便利です。角地で視認性があります。内装は相談可能 引渡しも相談になります。建物内にリフト有 倉庫・作業所におすすめです。 |
| 建物名・部屋番号 |
都島区大東町1丁目 3階建1棟貸 城北公園通駅3分 角地 |
| リフォーム履歴 |
- |
| リノベーション履歴 |
- |
| 特記事項 |
土曜日利用可、土日・祝日利用可、駐車場3台分以上、最上階 |
| 備考 |
賃貸保証等:加入要(49.5万円)
管理形態/管理員の勤務形態:-/-
2015年4月駐車場増築 検査済証無し 建物横に2.5台分の駐車場有、倉庫として使用可(別途条件相談可能)
|
| エネルギー消費性能 |
- |
| 断熱性能 |
- |
| 目安光熱費 |
- |
| バス・トイレ |
トイレ2ヶ所、専有部分にトイレあり |
| キッチン |
- |
| 設備・サービス |
都市ガス、エアコン、火災警報器(報知機)、インターネット対応 |
| その他 |
- |
| 契約期間 |
2年 |
条件等 |
- |
| 引渡可能時期 |
相談 |
現況 |
居住中 |
| 更新料 |
- |
物件番号 |
6985759878 |
| 情報公開日 |
2025年4月1日 |
次回更新予定日 |
2025年12月31日 |
| ケータイ用バーコード |
- スマートフォンでこの物件を見る
- スマートフォンからもこの物件をご覧になれます。
|
※「-」と表示されている項目については、情報提供会社にご確認ください。
ここから簡単にお問い合わせをすることができます。
(SSLでの暗号化での送信を希望されるお客さまは
こちら
よりお問い合わせください)
お問い合わせを行う前に
「個人情報の取り扱いについて」を必ずお読みください。
「個人情報の取り扱いについて」に同意いただいた場合は「上記にご同意の上 確認画面へ進む」のボタンをクリックしてください。
個人情報の取り扱いについて
皆さまが送付された個人情報はアットホーム(株)のサーバを経由し、お問い合わせ先の不動産会社にメールまたはFAXにて転送されるためアットホーム(株)にも保管されます。アットホーム(株)で保管された個人情報の取り扱いについては、【こちら】をご覧ください。
また、本画面でご記入いただいた個人情報は、お問い合わせ先の不動産会社でも保管します。 お問い合わせ先の不動産会社が保管する個人情報の取り扱いについては、不動産会社に直接お問い合わせください。
大阪府知事免許(2)第58763号 |
|---|
- 交通:
- 地下鉄御堂筋線/なかもず駅 徒歩1分
- 大阪府堺市北区中百舌鳥町5丁723 大西ビル2F
- TEL:
- 072-246-3337
- FAX:
- 072-246-3338
- 所属団体:
- (公社)全日本不動産協会会員(公社)近畿地区不動産公正取引協議会加盟
取引態様:仲介  - 50108757
|
- スマートフォンで
この不動産会社を見る

|
- 提携サイト等より掲載されている物件情報につきましては、不動産会社詳細情報にリンクされていないものがあります。
- 物件に関するお問合せは、物件詳細ページの「情報提供会社」に表示されている不動産会社へ直接お願いいたします。
- 間取図は、現況を優先させていただきます。
- 映像は物件の一部を撮影したものです。物件の契約にあたっての最終判断はご自身の判断に基づいて行ってください。
- 仲介手数料について

アットホームは物件情報の適正化に努めております。
内容に誤りがある場合にはこちらへご連絡ください。