大阪府東大阪市長堂1丁目(布施駅)の貸店舗:物件詳細
交通 所在地 |
駅徒歩 |
賃料 管理費等 |
敷金/保証金 礼金 |
使用部分面積 坪数/坪単価 |
物件種目 築年月 |
|
近鉄大阪線/布施
大阪府東大阪市長堂1丁目
|
9分
|
22万円
8,800円
|
なし / なし
2ヶ月
|
53.72m²
16.25坪/1.3539万円
|
貸店舗・事務所
2026年3月(新築)
|
| 交通 | 近鉄大阪線 布施駅 徒歩9分 |
|---|
| その他の交通 | 地下鉄千日前線 新深江駅 徒歩10分 地下鉄中央線 深江橋駅 徒歩20分 |
| 所在地 |
大阪府東大阪市長堂1丁目
|
| 物件種目 |
貸店舗・事務所 |
| 賃料 |
22万円 |
管理費等 |
8,800円 |
| 敷金 / 保証金 |
なし / なし |
礼金 |
2ヶ月 |
| 敷引 |
- |
坪単価 |
1.3539万円 |
| 保証金償却 |
- |
権利金 |
- |
| 造作譲渡 |
- |
その他一時金 |
- |
| 維持費等 |
- |
保険等 |
要 |
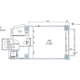
| 使用部分面積 |
53.72m² |
坪数 |
16.25坪 |
| 築年月 |
2026年3月(新築)
|
階建 / 階 |
10階建 / 1階 |
| 駐車場 |
無 |
バイク置き場 |
無 |
| 駐輪場 |
- |
土地面積 |
- |
| 接道状況 |
-
|
用途地域 |
- |
| 間取り |
- |
建物構造 |
RC |
| アピールポイント |
ブランドリーふせ商店街隣接の新築物件です。
事務所・店舗利用におすすめ |
| 建物名・部屋番号 |
|
| リフォーム履歴 |
- |
| リノベーション履歴 |
- |
| 特記事項 |
スケルトン、土曜日利用可、土日・祝日利用可、飲食店不可、1フロア1テナント |
| 備考 |
賃貸保証等:加入要(加入要 プラン例:初回保証委託料月額総賃料100%、年間更新料月額総賃料の10%(最低保証料20,000円))
管理形態/管理員の勤務形態:-/-
|
| エネルギー消費性能 |
- |
| 断熱性能 |
- |
| 目安光熱費 |
- |
| バス・トイレ |
- |
| キッチン |
- |
| 設備・サービス |
- |
| その他 |
- |
| 契約期間 |
2年 |
条件等 |
- |
| 引渡可能時期 |
2026年3月下旬予定 |
現況 |
未完成 |
| 仲介手数料 |
1ヶ月 |
|
|
| 更新料 |
なし |
物件番号 |
6986186540 |
| 情報公開日 |
2025年11月28日 |
次回更新予定日 |
2025年12月12日 |
| ケータイ用バーコード |
- スマートフォンでこの物件を見る
- スマートフォンからもこの物件をご覧になれます。
|
※「-」と表示されている項目については、情報提供会社にご確認ください。
| 周辺施設 |
ワークマンプラス東大阪布施店 |
| 距離 |
522m |
| 周辺施設 |
セブンイレブン東大阪長堂1丁目店 |
| 距離 |
388m |
| 周辺施設 |
幼保連携型認定こども園進修幼稚園 |
| 距離 |
280m |
| 周辺施設 |
社会福祉法人竹井病院竹井医院介護医療院 |
| 距離 |
145m |
ここから簡単にお問い合わせをすることができます。
(SSLでの暗号化での送信を希望されるお客さまは
こちら
よりお問い合わせください)
お問い合わせを行う前に
「個人情報の取り扱いについて」を必ずお読みください。
「個人情報の取り扱いについて」に同意いただいた場合は「上記にご同意の上 確認画面へ進む」のボタンをクリックしてください。
個人情報の取り扱いについて
皆さまが送付された個人情報はアットホーム(株)のサーバを経由し、お問い合わせ先の不動産会社にメールまたはFAXにて転送されるためアットホーム(株)にも保管されます。アットホーム(株)で保管された個人情報の取り扱いについては、【こちら】をご覧ください。
また、本画面でご記入いただいた個人情報は、お問い合わせ先の不動産会社でも保管します。 お問い合わせ先の不動産会社が保管する個人情報の取り扱いについては、不動産会社に直接お問い合わせください。
国土交通大臣免許(7)第5338号 |
|---|
- 交通:
- 地下鉄御堂筋線/淀屋橋駅 徒歩1分
- 大阪府大阪市北区堂島1丁目2-6 シーサXⅡ4F
- TEL:
- 06-6361-8211
- FAX:
- 06-6361-8127
取引態様:仲介  - 50025958
|
- スマートフォンで
この不動産会社を見る

|
- 提携サイト等より掲載されている物件情報につきましては、不動産会社詳細情報にリンクされていないものがあります。
- 物件に関するお問合せは、物件詳細ページの「情報提供会社」に表示されている不動産会社へ直接お願いいたします。
- 間取図は、現況を優先させていただきます。
- 映像は物件の一部を撮影したものです。物件の契約にあたっての最終判断はご自身の判断に基づいて行ってください。
- 仲介手数料について

アットホームは物件情報の適正化に努めております。
内容に誤りがある場合にはこちらへご連絡ください。