東京都調布市緑ケ丘1丁目(仙川駅)の貸店舗:物件詳細
交通 所在地 |
駅徒歩 |
賃料 管理費等 |
敷金/保証金 礼金 |
使用部分面積 坪数/坪単価 |
物件種目 築年月 |
京王線/仙川
東京都調布市緑ケ丘1丁目
|
9分
|
16.5万円
なし
|
3ヶ月 / なし
1ヶ月
|
33.53m²
10.14坪/1.6268万円
|
貸店舗・事務所
2008年3月(築17年8ヶ月)
|
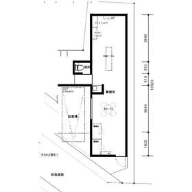
間取図
|
|
その他の画像
|
交通 | 京王線 仙川駅 徒歩9分 |
---|
その他の交通 | 京王線 つつじヶ丘駅 徒歩17分 京王線 柴崎駅 徒歩27分 |
所在地 |
東京都調布市緑ケ丘1丁目
|
物件種目 |
貸店舗・事務所 |
賃料 |
16.5万円 |
管理費等 |
なし |
敷金 / 保証金 |
3ヶ月 / なし |
礼金 |
1ヶ月 |
敷引 |
1ヶ月 |
坪単価 |
1.6268万円 |
保証金償却 |
- |
権利金 |
- |
造作譲渡 |
- |
その他一時金 |
- |
維持費等 |
- |
保険等 |
要 |
使用部分面積 |
33.53m² |
坪数 |
10.14坪 |
築年月 |
2008年3月(築17年8ヶ月)
|
階建 / 階 |
3階建 / 1階 |
駐車場 |
有 無料(空き1台) |
バイク置き場 |
有 無料 |
駐輪場 |
有 無料 |
土地面積 |
- |
接道状況 |
-
|
用途地域 |
- |
間取り |
- |
建物構造 |
木造 |
アピールポイント |
【仙川駅徒歩9分☆1階部分!店舗事務所☆軽飲食相談!】街道沿いの1階路面店になります☆33㎡(約10坪)の大きさになります。トイレ・ミニキッチンあり!ガスはありません。業種ご相談下さい!
テナント・事務所探しはリモート賃貸株式会社へ!
内見は物件現地集合可能です!内装工事のご相談も可能です♪
リモート賃貸の自社ホームページには
武蔵野市・三鷹市・調布市・小金井市・世田谷区・杉並区の
現在募集が出ている物件を掲載中です☆
未公開物件も掲載しているので是非チェックしてみてください♪
「リモート賃貸」で検索してください☆
メールでお問い合わせくださいませ!
市場に出ているほとんどの物件がご紹介可能です!
気になる物件は弊社にまとめてお問い合わせくださいませ♪
※店舗開業の為の特定行政庁・消防・保健所・用途地域等の調査はご自身で行っていただきますよう
お願いいたします。 |
建物名・部屋番号 |
緑ケ丘店舗事務所 1F |
リフォーム履歴 |
- |
リノベーション履歴 |
- |
特記事項 |
土曜日利用可、土日・祝日利用可、飲食店可、1フロア1テナント、角部屋 |
備考 |
賃貸保証等:加入要(初回保証料:賃料総額の100%)
管理形態/管理員の勤務形態:-/-
※駐車場1台家賃込み
※電気・水道料家賃込み
※ガス引き込み無し
※トイレ・キッチンは設備です。
※カーテン・照明・エアコンは残置物になります。
|
エネルギー消費性能 |
- |
断熱性能 |
- |
目安光熱費 |
- |
バス・トイレ |
専有部分にトイレあり |
キッチン |
- |
設備・サービス |
- |
その他 |
- |
契約期間 |
2年 |
条件等 |
- |
引渡可能時期 |
即時 |
現況 |
空 |
仲介手数料 |
1ヶ月 |
|
|
更新料 |
新賃料 1ヶ月 |
物件番号 |
6986315830 |
情報公開日 |
2025年6月5日 |
次回更新予定日 |
2025年10月20日 |
ケータイ用バーコード |
- スマートフォンでこの物件を見る
- スマートフォンからもこの物件をご覧になれます。
|
※「-」と表示されている項目については、情報提供会社にご確認ください。
ここから簡単にお問い合わせをすることができます。
(SSLでの暗号化での送信を希望されるお客さまは
こちら
よりお問い合わせください)
お問い合わせを行う前に
「個人情報の取り扱いについて」を必ずお読みください。
「個人情報の取り扱いについて」に同意いただいた場合は「上記にご同意の上 確認画面へ進む」のボタンをクリックしてください。
個人情報の取り扱いについて
皆さまが送付された個人情報はアットホーム(株)のサーバを経由し、お問い合わせ先の不動産会社にメールまたはFAXにて転送されるためアットホーム(株)にも保管されます。アットホーム(株)で保管された個人情報の取り扱いについては、【こちら】をご覧ください。
また、本画面でご記入いただいた個人情報は、お問い合わせ先の不動産会社でも保管します。 お問い合わせ先の不動産会社が保管する個人情報の取り扱いについては、不動産会社に直接お問い合わせください。
東京都知事免許(2)第105139号 |
---|
- 交通:
- 京王線/千歳烏山駅 徒歩2分
- 東京都世田谷区南烏山6丁目7-19 千野ビル3階
- TEL:
- 03-6823-2623
- FAX:
- 03-6770-4259
- 所属団体:
- (公社)東京都宅地建物取引業協会会員(公社)首都圏不動産公正取引協議会加盟
取引態様:仲介  - 00268876
|
- スマートフォンで
この不動産会社を見る

|
- 提携サイト等より掲載されている物件情報につきましては、不動産会社詳細情報にリンクされていないものがあります。
- 物件に関するお問合せは、物件詳細ページの「情報提供会社」に表示されている不動産会社へ直接お願いいたします。
- 間取図は、現況を優先させていただきます。
- 映像は物件の一部を撮影したものです。物件の契約にあたっての最終判断はご自身の判断に基づいて行ってください。
- 仲介手数料について

アットホームは物件情報の適正化に努めております。
内容に誤りがある場合にはこちらへご連絡ください。