栃木県宇都宮市東宿郷2丁目(宇都宮駅)の貸店舗:物件詳細
交通 所在地 |
駅徒歩 |
賃料 管理費等 |
敷金/保証金 礼金 |
使用部分面積 坪数/坪単価 |
物件種目 築年月 |
|
JR東北本線/宇都宮
栃木県宇都宮市東宿郷2丁目
|
8分
|
16.5万円
なし
|
2ヶ月 / なし
1ヶ月
|
63.60m²
19.23坪/0.8577万円
|
貸店舗
1999年5月(築26年8ヶ月)
|
|
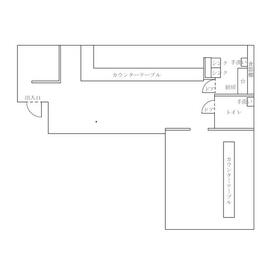
間取図
|
外観
十字路交差点角地
|
<
その他の画像
>
|
| 交通 | JR東北本線 宇都宮駅 徒歩8分 |
|---|
| その他の交通 | 宇都宮芳賀ライトレール線 東宿郷駅 徒歩5分 湘南新宿ライン(宇都宮〜逗子) 宇都宮駅 徒歩8分 |
| 所在地 |
栃木県宇都宮市東宿郷2丁目
|
| 物件種目 |
貸店舗 |
| 賃料 |
16.5万円 |
管理費等 |
なし |
| 敷金 / 保証金 |
2ヶ月 / なし |
礼金 |
1ヶ月 |
| 敷引 |
- |
坪単価 |
0.8577万円 |
| 保証金償却 |
- |
権利金 |
- |
| 造作譲渡 |
- |
その他一時金 |
- |
| 維持費等 |
- |
保険等 |
要 2年 |
| 使用部分面積 |
63.60m² |
坪数 |
19.23坪 |
| 築年月 |
1999年5月(築26年8ヶ月)
|
階建 / 階 |
3階建 / 3階 |
| 駐車場 |
- |
バイク置き場 |
- |
| 駐輪場 |
- |
土地面積 |
- |
| 接道状況 |
-
|
用途地域 |
- |
| 間取り |
- |
建物構造 |
鉄骨造 |
| アピールポイント |
大きなカウンターテーブルが2つありますので、バーやガールズバーなどお勧めです。
交差点の角地で目立つ立地!現地案内も可能です! |
| 建物名・部屋番号 |
BRIDGE21 3階 |
| リフォーム履歴 |
- |
| リノベーション履歴 |
- |
| 特記事項 |
24時間利用可、飲食店可、1フロア1テナント、最上階、保証人不要 |
| 備考 |
賃貸保証等:加入要(初回保証委託料:賃料等合計金額の100% 継続保証委託料:賃料等合計金額の10%/年)
管理形態/管理員の勤務形態:-/-
※現状有姿での引渡しになります。
|
| エネルギー消費性能 |
- |
| 断熱性能 |
- |
| 目安光熱費 |
- |
| バス・トイレ |
トイレ |
| キッチン |
オープンキッチン |
| 設備・サービス |
エアコン |
| その他 |
- |
| 契約期間 |
2年 |
条件等 |
- |
| 引渡可能時期 |
即時 |
現況 |
空 |
| 仲介手数料 |
1.1ヶ月 |
|
|
| 更新料 |
新賃料 1ヶ月 |
物件番号 |
6986363717 |
| 情報公開日 |
2025年11月30日 |
次回更新予定日 |
2025年12月14日 |
| ケータイ用バーコード |
- スマートフォンでこの物件を見る
- スマートフォンからもこの物件をご覧になれます。
|
※「-」と表示されている項目については、情報提供会社にご確認ください。
ここから簡単にお問い合わせをすることができます。
(SSLでの暗号化での送信を希望されるお客さまは
こちら
よりお問い合わせください)
お問い合わせを行う前に
「個人情報の取り扱いについて」を必ずお読みください。
「個人情報の取り扱いについて」に同意いただいた場合は「上記にご同意の上 確認画面へ進む」のボタンをクリックしてください。
個人情報の取り扱いについて
皆さまが送付された個人情報はアットホーム(株)のサーバを経由し、お問い合わせ先の不動産会社にメールまたはFAXにて転送されるためアットホーム(株)にも保管されます。アットホーム(株)で保管された個人情報の取り扱いについては、【こちら】をご覧ください。
また、本画面でご記入いただいた個人情報は、お問い合わせ先の不動産会社でも保管します。 お問い合わせ先の不動産会社が保管する個人情報の取り扱いについては、不動産会社に直接お問い合わせください。
栃木県知事免許(1)第5447号 |
|---|
- 交通:
- JR東北本線/宇都宮駅 徒歩34分 【バス】11分 竹林 停歩1分
- 栃木県宇都宮市竹林町550-1
- TEL:
- 028-627-8850
- FAX:
- 028-627-8851
- 所属団体:
- (公社)栃木県宅地建物取引業協会会員(公社)首都圏不動産公正取引協議会加盟
取引態様:仲介  - 00278338
|
- スマートフォンで
この不動産会社を見る

|
- 提携サイト等より掲載されている物件情報につきましては、不動産会社詳細情報にリンクされていないものがあります。
- 物件に関するお問合せは、物件詳細ページの「情報提供会社」に表示されている不動産会社へ直接お願いいたします。
- 間取図は、現況を優先させていただきます。
- 映像は物件の一部を撮影したものです。物件の契約にあたっての最終判断はご自身の判断に基づいて行ってください。
- 仲介手数料について

アットホームは物件情報の適正化に努めております。
内容に誤りがある場合にはこちらへご連絡ください。