東京都渋谷区松濤2丁目(渋谷駅)の貸店舗:物件詳細
交通 所在地 |
駅徒歩 |
賃料 管理費等 |
敷金/保証金 礼金 |
使用部分面積 坪数/坪単価 |
物件種目 築年月 |
|
京王井の頭線/渋谷
東京都渋谷区松濤2丁目
|
9分
|
55万円
33,000円
|
なし / 8ヶ月
1ヶ月
|
42.54m²
12.86坪/4.2741万円
|
貸店舗
1969年3月(築56年10ヶ月)
|
|
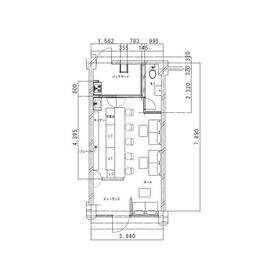
間取図
|
|
その他の画像
|
| 交通 | 京王井の頭線 渋谷駅 徒歩9分 |
|---|
| その他の交通 | 京王井の頭線 神泉駅 徒歩4分 東急田園都市線 渋谷駅 徒歩9分 |
| 所在地 |
東京都渋谷区松濤2丁目
|
| 物件種目 |
貸店舗 |
| 賃料 |
55万円 |
管理費等 |
33,000円 |
| 敷金 / 保証金 |
なし / 8ヶ月 |
礼金 |
1ヶ月 |
| 敷引 |
- |
坪単価 |
4.2741万円 |
| 保証金償却 |
解約時3ヶ月 |
権利金 |
- |
| 造作譲渡 |
98万円 |
その他一時金 |
- |
| 維持費等 |
- |
保険等 |
不要 |
| 使用部分面積 |
42.54m² |
坪数 |
12.86坪 |
| 築年月 |
1969年3月(築56年10ヶ月)
|
階建 / 階 |
8階建 / 1階 |
| 駐車場 |
- |
バイク置き場 |
- |
| 駐輪場 |
- |
土地面積 |
- |
| 接道状況 |
-
|
用途地域 |
- |
| 間取り |
- |
建物構造 |
RC |
| アピールポイント |
【インフラ】電灯:有 動力:有 ガス:6号メーター 水道:25㎜
【厨房排気】有 /換気扇
【空調】有 / 業務用
【グリスト】無
【席数】カウンター4席 テーブル5席
【トイレ】有 /ウォシュレット
【閉店理由】人材不足
【営業年数】約2年
【営業時間制限】24時まで
【不可業態】カラオケ等の音出し不可
【引渡状態】居抜き
【間口】約3.3m
【天高】2700㎜
※記載の店舗情報は正確性を保証するものではございません。
指定火災保険:加入必須(三井住友海上火災保険)
指定賃貸保証:加入必須(初回保証料100%、年間更新料10%)
定期借家契約:7年 (契約満了日:2033年6月30日)
中途礼金:契約開始日から2年毎に賃料の1.25ヶ月分
造作譲渡手数料:売却金額×10%+10万円(別途消費税) |
| 建物名・部屋番号 |
シャンボール松濤 1階104号室 |
| リフォーム履歴 |
- |
| リノベーション履歴 |
- |
| 特記事項 |
居抜き、飲食店可 |
| 備考 |
賃貸保証等:加入要((指定保証会社有))
管理形態/管理員の勤務形態:-/-
【営業時間制限】24時まで
【不可業態】カラオケ等の音出し不可
・指定火災保険:加入必須(三井住友海上火災保険)
・指定賃貸保証:加入必須(初回保証料100%、年間更新料10%)
・中途礼金:契約開始日から2年毎に賃料の1.25ヶ月分
・造作譲渡手数料:売却金額×10%+10万円(別途消費税)
|
| エネルギー消費性能 |
- |
| 断熱性能 |
- |
| 目安光熱費 |
- |
| バス・トイレ |
- |
| キッチン |
- |
| 設備・サービス |
- |
| その他 |
- |
| 契約期間 |
2033年6月30日まで |
条件等 |
定期借家 |
| 引渡可能時期 |
相談 |
現況 |
使用中 |
| 更新料 |
- |
物件番号 |
6986382624 |
| 情報公開日 |
2025年5月21日 |
次回更新予定日 |
2025年12月22日 |
| ケータイ用バーコード |
- スマートフォンでこの物件を見る
- スマートフォンからもこの物件をご覧になれます。
|
※「-」と表示されている項目については、情報提供会社にご確認ください。
| 周辺施設 |
コメダ珈琲店渋谷道玄坂上店 |
| 距離 |
575m |
| 周辺施設 |
モスバーガー渋谷円山町店 |
| 距離 |
602m |
| 周辺施設 |
ガスト渋谷道玄坂店(から好し取扱店) |
| 距離 |
538m |
| 周辺施設 |
タリーズコーヒー渋谷道玄坂店 |
| 距離 |
438m |
ここから簡単にお問い合わせをすることができます。
(SSLでの暗号化での送信を希望されるお客さまは
こちら
よりお問い合わせください)
お問い合わせを行う前に
「個人情報の取り扱いについて」を必ずお読みください。
「個人情報の取り扱いについて」に同意いただいた場合は「上記にご同意の上 確認画面へ進む」のボタンをクリックしてください。
個人情報の取り扱いについて
皆さまが送付された個人情報はアットホーム(株)のサーバを経由し、お問い合わせ先の不動産会社にメールまたはFAXにて転送されるためアットホーム(株)にも保管されます。アットホーム(株)で保管された個人情報の取り扱いについては、【こちら】をご覧ください。
また、本画面でご記入いただいた個人情報は、お問い合わせ先の不動産会社でも保管します。 お問い合わせ先の不動産会社が保管する個人情報の取り扱いについては、不動産会社に直接お問い合わせください。
東京都知事免許(3)第92957号 |
|---|
- 交通:
- JR山手線/渋谷駅 徒歩5分
- 東京都渋谷区桜丘町4-23 渋谷桜丘ビル5階
- TEL:
- 03-5468-3550
- FAX:
- 03-5468-3553
- 所属団体:
- (公社)東京都宅地建物取引業協会会員(公社)首都圏不動産公正取引協議会加盟
取引態様:代理  - 00105020
|
- スマートフォンで
この不動産会社を見る

|
- 提携サイト等より掲載されている物件情報につきましては、不動産会社詳細情報にリンクされていないものがあります。
- 物件に関するお問合せは、物件詳細ページの「情報提供会社」に表示されている不動産会社へ直接お願いいたします。
- 間取図は、現況を優先させていただきます。
- 映像は物件の一部を撮影したものです。物件の契約にあたっての最終判断はご自身の判断に基づいて行ってください。
- 仲介手数料について

アットホームは物件情報の適正化に努めております。
内容に誤りがある場合にはこちらへご連絡ください。