不動産 賃貸 マンション等の住宅情報:埼玉住まい情報


愛知県安城市相生町(南安城駅)の貸店舗:物件詳細

  • 物件詳細
  • 情報の見方
  • 印刷用画面
交通
所在地
駅徒歩 賃料
管理費等
敷金/保証金
礼金
使用部分面積
坪数/坪単価
物件種目
築年月

名鉄西尾線/南安城

愛知県安城市相生町

8分

16.94万円

なし / 100万円

なし

47.32m²

14.31坪/1.1835万円

貸店舗

2010年10月(築15年1ヶ月)

おすすめコメント

居抜きラウンジ・カウンターもあります。カラオケOK。

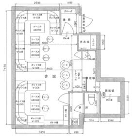
間取図

間取図

その他の画像
    • とりあえず保存
    • お問い合わせ
    交通

    名鉄西尾線 南安城駅 徒歩8分

    その他の交通

    東海道本線 安城駅 徒歩10分

    所在地 愛知県安城市相生町
    物件種目 貸店舗
    賃料 16.94万円 管理費等
    敷金 / 保証金 なし / 100万円 礼金 なし
    敷引 坪単価 1.1835万円
    保証金償却 解約時50% 権利金
    造作譲渡 造作譲渡無償 その他一時金
    維持費等 保険等 要 火災
    使用部分面積 47.32m² 坪数 14.31坪
    築年月 2010年10月(築15年1ヶ月) 階建 / 階 2階建 / 2階
    駐車場 有 11,000円/月(空き1台)
    共益費+駐車場1台分
    バイク置き場
    駐輪場 土地面積
    接道状況 用途地域 商業地域
    間取り 建物構造 鉄骨造
    アピールポイント 居抜きラウンジ・カウンターもあります。カラオケOK。
    建物名・部屋番号 花見小路ビル 2階
    リフォーム履歴
    リノベーション履歴
    特記事項 居抜き、24時間利用可、土曜日利用可、土日・祝日利用可、飲食店可、1フロア1テナント、角部屋、最上階
    備考
    管理形態/管理員の勤務形態:-/-
    居抜きラウンジ・カウンターもあります。カラオケOK。
    エネルギー消費性能
    断熱性能
    目安光熱費
    バス・トイレ トイレ
    キッチン
    設備・サービス 看板取付スペースあり、空調機あり
    エアコン2台以上、給湯、都市ガス
    その他
    契約期間 4年 条件等
    引渡可能時期 相談 現況
    適格請求書発行 不可
    更新料 新賃料 0.5ヶ月 物件番号 6986412922
    情報公開日 2025年5月26日 次回更新予定日 2025年10月31日
    ケータイ用バーコード

    QRコード

    スマートフォンでこの物件を見る
    スマートフォンからもこの物件をご覧になれます。
    ※「-」と表示されている項目については、情報提供会社にご確認ください。

    この物件の周辺情報

    周辺施設 バロー安城日の出店
    距離 451m
    周辺施設 安城フランテ館
    距離 774m
    周辺施設 デイリーヤマザキ安城相生町店
    距離 56m
    周辺施設 セブンイレブン安城南町店
    距離 271m
    周辺施設 コメダ珈琲店安城店
    距離 331m
    周辺施設 スギドラッグ安城錦町店
    距離 303m
    周辺施設 西尾信用金庫安城支店
    距離 157m

    クイックお問い合わせ

    ここから簡単にお問い合わせをすることができます。
    (SSLでの暗号化での送信を希望されるお客さまは こちら よりお問い合わせください)

    お問い合わせ内容(必須)
    物件のお問い合わせ理由(必須)
    お名前・ご担当者様名(必須) 姓  名 
    メールアドレス(必須)
    ※携帯電話のメールアドレスをご入力される方はこちらをご確認ください
    電話番号(必須)
    - -

    ※入力いただいた電話番号へSMSまたは音声でパスワードをご連絡します。

    携帯電話の番号をご入力の方へ

    携帯電話の番号をご入力の方へ
    確認画面にて送信ボタンをクリックするとSMSが携帯電話に届きます。
    そのSMSに記載のパスワード(認証番号)を入力し、お問い合わせを完了してください。
    尚、SMSの送信者番号は 0005 202 760 となります。
    これはアットホームの固定番号です。

    備考欄 希望条件、物件案内希望日、質問などがございましたらご記入ください。
    お問い合わせを行う前に「個人情報の取り扱いについて」を必ずお読みください。
    「個人情報の取り扱いについて」に同意いただいた場合は「上記にご同意の上 確認画面へ進む」のボタンをクリックしてください。

    個人情報の取り扱いについて

    皆さまが送付された個人情報はアットホーム(株)のサーバを経由し、お問い合わせ先の不動産会社にメールまたはFAXにて転送されるためアットホーム(株)にも保管されます。アットホーム(株)で保管された個人情報の取り扱いについては、【こちら】をご覧ください。
    また、本画面でご記入いただいた個人情報は、お問い合わせ先の不動産会社でも保管します。 お問い合わせ先の不動産会社が保管する個人情報の取り扱いについては、不動産会社に直接お問い合わせください。

    情報提供会社

    情報提供会社

    緑不動産(株)

    愛知県知事免許(12)第10730号

    交通:
    東海道本線/安城駅 徒歩1分
    愛知県安城市昭和町1-16 
    TEL:
    0566-76-6485
    FAX:
    0566-76-9645
    所属団体:
    (公社)愛知県宅地建物取引業協会会員
    東海不動産公正取引協議会加盟

    取引態様:仲介

    • 会社情報
    • 40007111
    スマートフォンで
    この不動産会社を見る
    QRコード
    • とりあえず保存
    • お問い合わせ
    • 提携サイト等より掲載されている物件情報につきましては、不動産会社詳細情報にリンクされていないものがあります。
    • 物件に関するお問合せは、物件詳細ページの「情報提供会社」に表示されている不動産会社へ直接お願いいたします。
    • 間取図は、現況を優先させていただきます。
    • 映像は物件の一部を撮影したものです。物件の契約にあたっての最終判断はご自身の判断に基づいて行ってください。
    • 仲介手数料について仲介手数料

    アットホームは物件情報の適正化に努めております。 内容に誤りがある場合にはこちらへご連絡ください。

    【埼玉住まい情報】では、日本全国の物件から賃貸マンションや賃貸アパート・賃貸一戸建て等の賃貸住宅情報、新築マンション・分譲マンションや中古マンション等の売買マンション情報、新築一戸建てや中古一戸建てなどの戸建住宅、 土地など、総合的な不動産住宅情報検索サービスを提供致します。
    【埼玉住まい情報】から、選りすぐりの不動産物件を探してみましょう。

    【免責事項】
    このコーナーの運営はアットホーム株式会社(https://www.athome.co.jp/)が行っています。
    このコーナーに掲載している物件情報は、「アットホーム不動産情報ネットワーク」に加盟する不動産会社等(情報提供元)から提供されています。信頼性の高い情報提供が行えるよう、最大限の努力をしておりますが、その内容を保証するものではありません。 利用者のみなさまと各情報提供元との取引に起因する損害および情報が掲載されたことに起因する損害等については、株式会社イーシティ埼玉、およびアットホームは一切責任を負いません。
    各物件情報の内容や画像等はすべて現況を優先させていただきます。
    お取引等(お取引の準備、資金調達等を含みます)の際には、内容や契約条件等について、各情報提供元より十分な説明を受け、ご自身でご確認の上、判断してください。
    このコーナーへの物件情報のご掲載、その他不動産業務ソリューション等についての不動産会社様のお問合せはこちらからお願いいたします。

    物件画像: