東京都台東区浅草橋1丁目(浅草橋駅)の貸店舗:物件詳細
交通 所在地 |
駅徒歩 |
賃料 管理費等 |
敷金/保証金 礼金 |
使用部分面積 坪数/坪単価 |
物件種目 築年月 |
|
JR総武線/浅草橋
東京都台東区浅草橋1丁目
|
1分
|
55万円
-
|
なし / 3ヶ月
1ヶ月
|
91.93m²
27.80坪/1.9778万円
|
貸店舗・事務所
1989年9月(築36年4ヶ月)
|
|
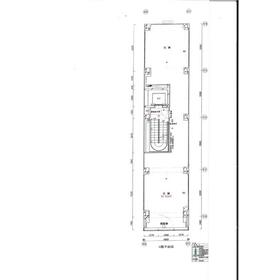
間取図
|
|
その他の画像
|
| 交通 | JR総武線 浅草橋駅 徒歩1分 |
|---|
| その他の交通 | 都営浅草線 浅草橋駅 徒歩1分 JR総武本線 馬喰町駅 徒歩8分 |
| 所在地 |
東京都台東区浅草橋1丁目
|
| 物件種目 |
貸店舗・事務所 |
| 賃料 |
55万円 |
管理費等 |
- |
| 敷金 / 保証金 |
なし / 3ヶ月 |
礼金 |
1ヶ月 |
| 敷引 |
- |
坪単価 |
1.9778万円 |
| 保証金償却 |
解約時1ヶ月 |
権利金 |
- |
| 造作譲渡 |
- |
その他一時金 |
- |
| 維持費等 |
- |
保険等 |
要 |
| 使用部分面積 |
91.93m² |
坪数 |
27.80坪 |
| 築年月 |
1989年9月(築36年4ヶ月)
|
階建 / 階 |
8階建 / 4階 |
| 駐車場 |
- |
バイク置き場 |
- |
| 駐輪場 |
- |
土地面積 |
- |
| 接道状況 |
-
|
用途地域 |
- |
| 間取り |
- |
建物構造 |
SRC |
| アピールポイント |
JR総武線浅草橋駅から徒歩30秒の立地です。
乗降客数はJRと都営合わせて約8.3万人。
ビルの立地は、国道6号(江戸通り)沿い、
浅草方向で昼夜問わず人通りが多いです。 |
| 建物名・部屋番号 |
サントミ浅草橋駅前ビル 4F |
| リフォーム履歴 |
- |
| リノベーション履歴 |
- |
| 特記事項 |
スケルトン、土日・祝日利用可、1フロア1テナント、国道沿いに面する |
| 備考 |
賃貸保証等:加入要(初回保証料:総賃料の100%~)
管理形態/管理員の勤務形態:-/-
主要採光面:東向き
店舗の場合、保証金6ヶ月
業務用エアコン4基(マルチ)は残置物扱い。
|
| エネルギー消費性能 |
- |
| 断熱性能 |
- |
| 目安光熱費 |
- |
| バス・トイレ |
- |
| キッチン |
- |
| 設備・サービス |
エアコン2台以上、暖房、冷房 |
| その他 |
エレベーター |
| 契約期間 |
5年 |
条件等 |
定期借家 |
| 引渡可能時期 |
即時 |
現況 |
空 |
| 更新料 |
新賃料 1ヶ月 |
物件番号 |
6986469199 |
| 情報公開日 |
2025年5月28日 |
次回更新予定日 |
2025年12月28日 |
| ケータイ用バーコード |
- スマートフォンでこの物件を見る
- スマートフォンからもこの物件をご覧になれます。
|
※「-」と表示されている項目については、情報提供会社にご確認ください。
ここから簡単にお問い合わせをすることができます。
(SSLでの暗号化での送信を希望されるお客さまは
こちら
よりお問い合わせください)
お問い合わせを行う前に
「個人情報の取り扱いについて」を必ずお読みください。
「個人情報の取り扱いについて」に同意いただいた場合は「上記にご同意の上 確認画面へ進む」のボタンをクリックしてください。
個人情報の取り扱いについて
皆さまが送付された個人情報はアットホーム(株)のサーバを経由し、お問い合わせ先の不動産会社にメールまたはFAXにて転送されるためアットホーム(株)にも保管されます。アットホーム(株)で保管された個人情報の取り扱いについては、【こちら】をご覧ください。
また、本画面でご記入いただいた個人情報は、お問い合わせ先の不動産会社でも保管します。 お問い合わせ先の不動産会社が保管する個人情報の取り扱いについては、不動産会社に直接お問い合わせください。
東京都知事免許(3)第92625号 |
|---|
- 交通:
- 都営新宿線/岩本町駅 徒歩3分
- 東京都千代田区岩本町2丁目11-2 イトーピア岩本町2丁目ビル 3階
- TEL:
- 03-5835-5291
- FAX:
- 03-5835-5292
- 所属団体:
- (公社)東京都宅地建物取引業協会会員(公社)首都圏不動産公正取引協議会加盟
取引態様:代理  - 00104256
|
- スマートフォンで
この不動産会社を見る

|
- 提携サイト等より掲載されている物件情報につきましては、不動産会社詳細情報にリンクされていないものがあります。
- 物件に関するお問合せは、物件詳細ページの「情報提供会社」に表示されている不動産会社へ直接お願いいたします。
- 間取図は、現況を優先させていただきます。
- 映像は物件の一部を撮影したものです。物件の契約にあたっての最終判断はご自身の判断に基づいて行ってください。
- 仲介手数料について

アットホームは物件情報の適正化に努めております。
内容に誤りがある場合にはこちらへご連絡ください。