東京都渋谷区渋谷2丁目(渋谷駅)の貸店舗:物件詳細
交通 所在地 |
駅徒歩 |
賃料 管理費等 |
敷金/保証金 礼金 |
使用部分面積 坪数/坪単価 |
物件種目 築年月 |
JR山手線/渋谷
東京都渋谷区渋谷2丁目
|
5分
|
93.225万円
なし
|
10ヶ月 / なし
2ヶ月
|
93.40m²
28.25坪/3.2997万円
|
貸店舗
1984年12月(築40年11ヶ月)
|
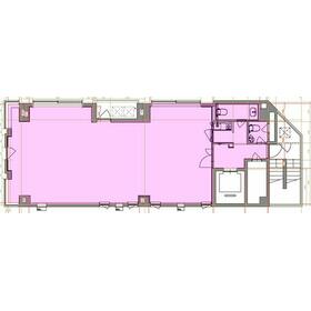
間取図
|
|
<
その他の画像
>
|
交通 | JR山手線 渋谷駅 徒歩5分 |
---|
その他の交通 | 東京メトロ千代田線 表参道駅 徒歩7分 東京メトロ半蔵門線 表参道駅 徒歩7分 |
所在地 |
東京都渋谷区渋谷2丁目
|
物件種目 |
貸店舗 |
賃料 |
93.225万円 |
管理費等 |
なし |
敷金 / 保証金 |
10ヶ月 / なし |
礼金 |
2ヶ月 |
敷引 |
- |
坪単価 |
3.2997万円 |
保証金償却 |
- |
権利金 |
- |
造作譲渡 |
- |
その他一時金 |
- |
維持費等 |
- |
保険等 |
要 |
使用部分面積 |
93.40m² |
坪数 |
28.25坪 |
築年月 |
1984年12月(築40年11ヶ月)
|
階建 / 階 |
地上8階地下1階建 / 3階 |
駐車場 |
- |
バイク置き場 |
- |
駐輪場 |
- |
土地面積 |
- |
接道状況 |
-
|
用途地域 |
- |
間取り |
- |
建物構造 |
SRC |
アピールポイント |
【物件名】AidiA Shibuya 3F
【所在地】東京都渋谷区渋谷2丁目
■物件詳細
【内見可能!】
■青山通り!
■1フロア1テナント
●JR【渋谷駅】徒歩5分、青山通り沿いのわかりやすい立地
●使いやすい1フロア1テナント
●スケルトン引き渡しとなります
※備考※
■事務所利用の場合、敷金6ヶ月
■スケルトン
AidiA Shibuyaのお問い合わせは、
事業用不動産専門の株式会社エンジンテラスまで!
※お問い合わせの際は業種をご入力いただくとスムーズにご案内できます! |
建物名・部屋番号 |
|
リフォーム履歴 |
- |
リノベーション履歴 |
- |
特記事項 |
スケルトン、飲食店不可、1フロア1テナント、24時間セキュリティー、耐震構造(新耐震基準) |
備考 |
賃貸保証等:加入要(プランに基づく)
管理形態/管理員の勤務形態:-/-
■事務所利用の場合、敷金6ヶ月
■スケルトン
|
エネルギー消費性能 |
- |
断熱性能 |
- |
目安光熱費 |
- |
バス・トイレ |
- |
キッチン |
- |
設備・サービス |
エアコン |
その他 |
エレベーター |
契約期間 |
5年 |
条件等 |
定期借家 |
引渡可能時期 |
即時 |
現況 |
空 |
仲介手数料 |
1ヶ月 |
|
|
更新料 |
新賃料 1ヶ月 |
物件番号 |
6986484773 |
情報公開日 |
2025年5月29日 |
次回更新予定日 |
2025年10月28日 |
ケータイ用バーコード |
- スマートフォンでこの物件を見る
- スマートフォンからもこの物件をご覧になれます。
|
※「-」と表示されている項目については、情報提供会社にご確認ください。
周辺施設 |
セブンイレブン渋谷2丁目店 |
距離 |
113m |
周辺施設 |
ファミリーマート宮益坂上店 |
距離 |
120m |
周辺施設 |
スターバックスコーヒー渋谷2丁目店 |
距離 |
92m |
周辺施設 |
NBパーキング渋谷1丁目 |
距離 |
353m |
ここから簡単にお問い合わせをすることができます。
(SSLでの暗号化での送信を希望されるお客さまは
こちら
よりお問い合わせください)
お問い合わせを行う前に
「個人情報の取り扱いについて」を必ずお読みください。
「個人情報の取り扱いについて」に同意いただいた場合は「上記にご同意の上 確認画面へ進む」のボタンをクリックしてください。
個人情報の取り扱いについて
皆さまが送付された個人情報はアットホーム(株)のサーバを経由し、お問い合わせ先の不動産会社にメールまたはFAXにて転送されるためアットホーム(株)にも保管されます。アットホーム(株)で保管された個人情報の取り扱いについては、【こちら】をご覧ください。
また、本画面でご記入いただいた個人情報は、お問い合わせ先の不動産会社でも保管します。 お問い合わせ先の不動産会社が保管する個人情報の取り扱いについては、不動産会社に直接お問い合わせください。
東京都知事免許(3)第94555号 |
---|
- 交通:
- JR山手線/渋谷駅 徒歩3分
- 東京都渋谷区道玄坂1丁目15-3 プリメーラ道玄坂312
- TEL:
- 03-5784-3015
- FAX:
- 03-5784-3016
- 所属団体:
- (公社)全日本不動産協会会員(公社)首都圏不動産公正取引協議会加盟
取引態様:仲介  - 00268550
|
- スマートフォンで
この不動産会社を見る

|
- 提携サイト等より掲載されている物件情報につきましては、不動産会社詳細情報にリンクされていないものがあります。
- 物件に関するお問合せは、物件詳細ページの「情報提供会社」に表示されている不動産会社へ直接お願いいたします。
- 間取図は、現況を優先させていただきます。
- 映像は物件の一部を撮影したものです。物件の契約にあたっての最終判断はご自身の判断に基づいて行ってください。
- 仲介手数料について

アットホームは物件情報の適正化に努めております。
内容に誤りがある場合にはこちらへご連絡ください。