静岡県浜松市中央区板屋町(第一通り駅)の貸店舗:物件詳細
交通 所在地 |
駅徒歩 |
賃料 管理費等 |
敷金/保証金 礼金 |
使用部分面積 坪数/坪単価 |
物件種目 築年月 |
|
遠州鉄道/第一通り
静岡県浜松市中央区板屋町
|
3分
|
48.4万円
-
|
5ヶ月 / なし
1ヶ月
|
188.66m²
57.06坪/0.8481万円
|
貸店舗・事務所(一括)
2000年8月(築25年7ヶ月)
|
|
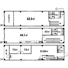
間取図
|
|
その他の画像
|
| 交通 | 遠州鉄道 第一通り駅 徒歩3分 |
|---|
| その他の交通 | 遠州鉄道 遠州病院駅 徒歩5分 東海道本線 浜松駅 徒歩7分 |
| 所在地 |
静岡県浜松市中央区板屋町
|
| 物件種目 |
貸店舗・事務所(一括) |
| 賃料 |
48.4万円 |
管理費等 |
- |
| 敷金 / 保証金 |
5ヶ月 / なし |
礼金 |
1ヶ月 |
| 敷引 |
- |
坪単価 |
0.8481万円 |
| 保証金償却 |
- |
権利金 |
- |
| 造作譲渡 |
- |
その他一時金 |
なし |
| 維持費等 |
24時間サポート費用:2,200円/月 |
保険等 |
要 |
| 使用部分面積 |
188.66m² |
坪数 |
57.06坪 |
| 築年月 |
2000年8月(築25年7ヶ月)
|
階建 / 階 |
3階建 |
| 駐車場 |
無 |
バイク置き場 |
無 |
| 駐輪場 |
無 |
土地面積 |
90.25m²(公簿) |
| 接道状況 |
-
|
用途地域 |
商業地域 |
| 間取り |
- |
建物構造 |
鉄骨造 |
| 建物名・部屋番号 |
カルディアビル |
| リフォーム履歴 |
- |
| リノベーション履歴 |
- |
| 特記事項 |
土日・祝日利用可 |
| 備考 |
賃貸保証等:加入要(Jリース株式会社)
管理形態/管理員の勤務形態:-/-
|
| エネルギー消費性能 |
- |
| 断熱性能 |
- |
| 目安光熱費 |
- |
| バス・トイレ |
- |
| キッチン |
- |
| 設備・サービス |
看板取付スペースあり、空調機あり
エアコン2台以上、室内洗濯機置場、給湯、都市ガス、ビルトインエアコン、火災警報器(報知機) |
| その他 |
- |
| 契約期間 |
5年 |
条件等 |
- |
| 引渡可能時期 |
2026年4月上旬予定 |
現況 |
使用中 |
| 仲介手数料 |
1ヶ月 |
|
|
| 更新料 |
なし |
物件番号 |
6986486359 |
| 情報公開日 |
2025年7月1日 |
次回更新予定日 |
2026年2月17日 |
| ケータイ用バーコード |
- スマートフォンでこの物件を見る
- スマートフォンからもこの物件をご覧になれます。
|
※「-」と表示されている項目については、情報提供会社にご確認ください。
| 周辺施設 |
マックスバリュエクスプレス浜松中央店 |
| 距離 |
202m |
| 周辺施設 |
セブンイレブン浜松板屋町店 |
| 距離 |
190m |
| 周辺施設 |
浜松いわた信用金庫板屋町支店 |
| 距離 |
55m |
ここから簡単にお問い合わせをすることができます。
(SSLでの暗号化での送信を希望されるお客さまは
こちら
よりお問い合わせください)
お問い合わせを行う前に
「個人情報の取り扱いについて」を必ずお読みください。
「個人情報の取り扱いについて」に同意いただいた場合は「上記にご同意の上 確認画面へ進む」のボタンをクリックしてください。
個人情報の取り扱いについて
皆さまが送付された個人情報はアットホーム(株)のサーバを経由し、お問い合わせ先の不動産会社にメールまたはFAXにて転送されるためアットホーム(株)にも保管されます。アットホーム(株)で保管された個人情報の取り扱いについては、【こちら】をご覧ください。
また、本画面でご記入いただいた個人情報は、お問い合わせ先の不動産会社でも保管します。 お問い合わせ先の不動産会社が保管する個人情報の取り扱いについては、不動産会社に直接お問い合わせください。
静岡県知事免許(3)第13370号 |
|---|
- 交通:
- 遠州鉄道/第一通り駅 徒歩5分
- 静岡県浜松市中央区板屋町536
- TEL:
- 053-450-5678
- FAX:
- 053-450-5679
- 所属団体:
- (公社)静岡県宅地建物取引業協会会員東海不動産公正取引協議会加盟
取引態様:仲介  - 40406238
|
- スマートフォンで
この不動産会社を見る

|
- 提携サイト等より掲載されている物件情報につきましては、不動産会社詳細情報にリンクされていないものがあります。
- 物件に関するお問合せは、物件詳細ページの「情報提供会社」に表示されている不動産会社へ直接お願いいたします。
- 間取図は、現況を優先させていただきます。
- 映像は物件の一部を撮影したものです。物件の契約にあたっての最終判断はご自身の判断に基づいて行ってください。
- 仲介手数料について

アットホームは物件情報の適正化に努めております。
内容に誤りがある場合にはこちらへご連絡ください。