埼玉県さいたま市南区南浦和2丁目(南浦和駅)の貸店舗:物件詳細
交通 所在地 |
駅徒歩 |
賃料 管理費等 |
敷金/保証金 礼金 |
使用部分面積 坪数/坪単価 |
物件種目 築年月 |
|
JR京浜東北線/南浦和
埼玉県さいたま市南区南浦和2丁目
|
4分
|
44万円
33,000円
|
なし / 6ヶ月
1ヶ月
|
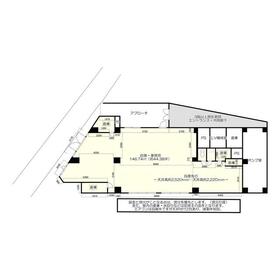
146.74m²
44.38坪/0.9913万円
|
貸店舗・事務所
1987年7月(築38年8ヶ月)
|
|
間取図
|
外観
|
その他の画像
|
| 交通 | JR京浜東北線 南浦和駅 徒歩4分 |
| 所在地 |
埼玉県さいたま市南区南浦和2丁目
|
| 物件種目 |
貸店舗・事務所 |
| 賃料 |
44万円 |
管理費等 |
33,000円 |
| 敷金 / 保証金 |
なし / 6ヶ月 |
礼金 |
1ヶ月 |
| 敷引 |
- |
坪単価 |
0.9913万円 |
| 保証金償却 |
更新時20% 定期借家契約3年 再契約相談 |
権利金 |
- |
| 造作譲渡 |
- |
その他一時金 |
西側入口シリンダー交換2カ所:44,000円、北側入口シリンダー下交換:27,500円 |
| 維持費等 |
- |
保険等 |
要 2年 22,500円 安心保険プラスⅢスーパー |
| 使用部分面積 |
146.74m² |
坪数 |
44.38坪 |
| 築年月 |
1987年7月(築38年8ヶ月)
|
階建 / 階 |
5階建 / 1階 |
| 駐車場 |
無 |
バイク置き場 |
無 |
| 駐輪場 |
無 |
土地面積 |
- |
| 接道状況 |
-
|
用途地域 |
商業地域 |
| 間取り |
ワンルーム |
建物構造 |
RC |
| 建物名・部屋番号 |
ハイグレード南浦和 101 |
| リフォーム履歴 |
- |
| リノベーション履歴 |
- |
| 特記事項 |
土日・祝日利用可、飲食店不可 |
| 備考 |
賃貸保証等:加入要(全保連㈱ 初回100%、1年毎1.3万円)
管理形態/管理員の勤務形態:-/-
主要採光面:西向き
・テナント駐輪場無し(店舗前敷地内は可能)
・電動シャッターあり
・外看板取付相談可
・飲食店はお断りします。
・業種業態により火災保険料は異なります。
・ミニキッチン、トイレ、倉庫は前テナントの造作物です。
・エアコン天井付け2台あり(設備外)
|
| エネルギー消費性能 |
- |
| 断熱性能 |
- |
| 目安光熱費 |
- |
| バス・トイレ |
専有部分にトイレあり |
| キッチン |
- |
| 設備・サービス |
都市ガス |
| その他 |
- |
| 契約期間 |
3年 |
条件等 |
定期借家 |
| 引渡可能時期 |
相談 |
現況 |
空 |
| 仲介手数料 |
1.1ヶ月 |
|
|
| 更新料 |
新賃料 1ヶ月 |
物件番号 |
6986500994 |
| 情報公開日 |
2025年7月13日 |
次回更新予定日 |
2026年2月14日 |
| ケータイ用バーコード |
- スマートフォンでこの物件を見る
- スマートフォンからもこの物件をご覧になれます。
|
※「-」と表示されている項目については、情報提供会社にご確認ください。
ここから簡単にお問い合わせをすることができます。
(SSLでの暗号化での送信を希望されるお客さまは
こちら
よりお問い合わせください)
お問い合わせを行う前に
「個人情報の取り扱いについて」を必ずお読みください。
「個人情報の取り扱いについて」に同意いただいた場合は「上記にご同意の上 確認画面へ進む」のボタンをクリックしてください。
個人情報の取り扱いについて
皆さまが送付された個人情報はアットホーム(株)のサーバを経由し、お問い合わせ先の不動産会社にメールまたはFAXにて転送されるためアットホーム(株)にも保管されます。アットホーム(株)で保管された個人情報の取り扱いについては、【こちら】をご覧ください。
また、本画面でご記入いただいた個人情報は、お問い合わせ先の不動産会社でも保管します。 お問い合わせ先の不動産会社が保管する個人情報の取り扱いについては、不動産会社に直接お問い合わせください。
埼玉県知事免許(11)第10379号 |
|---|
- 交通:
- JR京浜東北線/南浦和駅 徒歩3分
- 埼玉県さいたま市南区文蔵1丁目17-1 宮川ビル1F
- TEL:
- 048-861-1237
- FAX:
- 048-861-1238
- 所属団体:
- (公社)埼玉県宅地建物取引業協会会員(公社)首都圏不動産公正取引協議会加盟
取引態様:仲介  - 00620453
|
- スマートフォンで
この不動産会社を見る

|
- 提携サイト等より掲載されている物件情報につきましては、不動産会社詳細情報にリンクされていないものがあります。
- 物件に関するお問合せは、物件詳細ページの「情報提供会社」に表示されている不動産会社へ直接お願いいたします。
- 間取図は、現況を優先させていただきます。
- 映像は物件の一部を撮影したものです。物件の契約にあたっての最終判断はご自身の判断に基づいて行ってください。
- 仲介手数料について

アットホームは物件情報の適正化に努めております。
内容に誤りがある場合にはこちらへご連絡ください。