神奈川県横浜市中区若葉町2丁目(関内駅)の貸店舗:物件詳細
交通 所在地 |
駅徒歩 |
賃料 管理費等 |
敷金/保証金 礼金 |
使用部分面積 坪数/坪単価 |
物件種目 築年月 |
|
JR京浜東北線/関内
神奈川県横浜市中区若葉町2丁目
|
13分
|
61.2万円
-
|
8ヶ月 / なし
なし
|
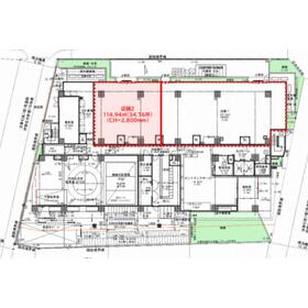
114.94m²
34.76坪/1.7602万円
|
貸店舗
2026年3月(新築)
|
|
間取図
|
|
その他の画像
|
| 交通 | JR京浜東北線 関内駅 徒歩13分 |
|---|
| その他の交通 | ブルーライン 伊勢佐木長者町駅 徒歩6分 京急本線 日ノ出町駅 徒歩6分 |
| 所在地 |
神奈川県横浜市中区若葉町2丁目
|
| 物件種目 |
貸店舗 |
| 賃料 |
61.2万円 |
管理費等 |
- |
| 敷金 / 保証金 |
8ヶ月 / なし |
礼金 |
なし |
| 敷引 |
- |
坪単価 |
1.7602万円 |
| 保証金償却 |
- |
権利金 |
- |
| 造作譲渡 |
- |
その他一時金 |
- |
| 維持費等 |
- |
保険等 |
要 |
| 使用部分面積 |
114.94m² |
坪数 |
34.76坪 |
| 築年月 |
2026年3月(新築)
|
階建 / 階 |
10階建 / 1階 |
| 駐車場 |
無 |
バイク置き場 |
無 |
| 駐輪場 |
有 |
土地面積 |
1,300.00m² |
| 接道状況 |
北東
・
南西
・
南西
・
三方道路
|
用途地域 |
商業地域 |
| 間取り |
- |
建物構造 |
RC |
| 建物名・部屋番号 |
中区若葉町2丁目PJ(仮称) 店舗2区画 |
| リフォーム履歴 |
- |
| リノベーション履歴 |
- |
| 特記事項 |
スケルトン、飲食店可、天井高2.5M以上、24時間換気システム |
| 備考 |
管理形態/管理員の勤務形態:-/-
※保証会社:個人の場合は保証会社加入が条件
※入居可能時期:2026年4月以降
※契約期間:応相談
※来客者用駐輪場10台
※竣工時期・入居可能時期については予定時期とする。
※募集内容と現況に相違がある場合は、現況優先とします。
|
| エネルギー消費性能 |
- |
| 断熱性能 |
- |
| 目安光熱費 |
- |
| バス・トイレ |
- |
| キッチン |
- |
| 設備・サービス |
シャッター付き、天井高2,800m、換気口あり、電気容量(電灯)24KVA、電気容量(動力)25KW |
| その他 |
- |
| 契約期間 |
10年 |
条件等 |
定期借家 |
| 引渡可能時期 |
2026年4月上旬予定 |
現況 |
完成済 |
| 仲介手数料 |
1.1ヶ月 |
|
|
| 更新料 |
- |
物件番号 |
6986583945 |
| 情報公開日 |
2025年6月6日 |
次回更新予定日 |
2025年11月13日 |
| ケータイ用バーコード |
- スマートフォンでこの物件を見る
- スマートフォンからもこの物件をご覧になれます。
|
※「-」と表示されている項目については、情報提供会社にご確認ください。
| 周辺施設 |
ガスト伊勢佐木町店(から好し取扱店) |
| 距離 |
77m |
| 周辺施設 |
パークリンク横浜若葉町第2 |
| 距離 |
55m |
| 周辺施設 |
Dパーキング中区若葉町第1 |
| 距離 |
54m |
| 周辺施設 |
セブンイレブン横浜伊勢佐木町4丁目店 |
| 距離 |
119m |
| 周辺施設 |
キッチンオリジン伊勢佐木町店 |
| 距離 |
126m |
ここから簡単にお問い合わせをすることができます。
(SSLでの暗号化での送信を希望されるお客さまは
こちら
よりお問い合わせください)
お問い合わせを行う前に
「個人情報の取り扱いについて」を必ずお読みください。
「個人情報の取り扱いについて」に同意いただいた場合は「上記にご同意の上 確認画面へ進む」のボタンをクリックしてください。
個人情報の取り扱いについて
皆さまが送付された個人情報はアットホーム(株)のサーバを経由し、お問い合わせ先の不動産会社にメールまたはFAXにて転送されるためアットホーム(株)にも保管されます。アットホーム(株)で保管された個人情報の取り扱いについては、【こちら】をご覧ください。
また、本画面でご記入いただいた個人情報は、お問い合わせ先の不動産会社でも保管します。 お問い合わせ先の不動産会社が保管する個人情報の取り扱いについては、不動産会社に直接お問い合わせください。
神奈川県知事免許(2)第30640号 |
|---|
- 交通:
- ブルーライン/阪東橋駅 徒歩4分
- 神奈川県横浜市南区真金町1丁目11番地3 ジュネス伊勢佐木106号室
- TEL:
- 045-883-0101
- FAX:
- 045-516-3204
- 所属団体:
- (公社)神奈川県宅地建物取引業協会会員(公社)首都圏不動産公正取引協議会加盟
取引態様:仲介  - 00266974
|
- スマートフォンで
この不動産会社を見る

|
- 提携サイト等より掲載されている物件情報につきましては、不動産会社詳細情報にリンクされていないものがあります。
- 物件に関するお問合せは、物件詳細ページの「情報提供会社」に表示されている不動産会社へ直接お願いいたします。
- 間取図は、現況を優先させていただきます。
- 映像は物件の一部を撮影したものです。物件の契約にあたっての最終判断はご自身の判断に基づいて行ってください。
- 仲介手数料について

アットホームは物件情報の適正化に努めております。
内容に誤りがある場合にはこちらへご連絡ください。